查看完整案例

收藏

下载
世界有360度,
何必局限于直线?
——扎哈·哈迪德(Zaha Hadid)
住进艺术馆般的家是一种什么样的体验?本次的案例或许可以告诉你答案。
这是一栋2层楼的独栋小别墅,1层室内面积115㎡花园66㎡,2层面积有125㎡。整个1楼都是公区,2楼则是1间主卧套房和2间为偶尔来的家人准备的次卧。
以「圆」作为灵感核心,空间内充满了[圆]的设计,甚至基本所有阳角都做了[圆弧]的处理。
材质上,空间里墙、地、顶面使用的几乎都是微水泥材质, 铺开成一幅艺术馆般的景象。
「圆」
的概念从玄关就开始展现。
一进门,入户门框的三边,就被赋予了[圆]润的线条 。左侧是整面墙的玄关柜,右手边的[圆]角立方体则是储藏室,同时也把入户之后的动线分为两条,往右来到餐厨,向前则去往客厅。
沿着第1条动线,来到的就是也充满[圆]的餐厨区;可以看到一整块的[圆]形窗洞、天花上的两块椭[圆]镜面吊顶和经过[圆]弧处理的空调出风口。
改造前餐厨区的位置,其实是原来的客厅,所以整个空间的纵深非常长,岛台+餐桌和厨房操作台都有6米的长度。
餐桌和厨房柜体选了同款的木色,岛台通体包裹进口岩板,搭配Carl Hansen和Knoll两套实木餐椅,和米白色的微水泥格外协调。
在餐厨区的尽头,通往花园的地方,我们做了一个可以相连人、自然和空间的吧台。
右手边就是家中的咖啡角,每天早晨萃取一杯咖啡,打开推拉窗,坐上Edra的Ella花瓣吧台椅,享受的呼吸第一口来自自然的气息。
从餐厨向客厅的方向望去,有3根粗细不同的[圆]柱体。偏细的两根,是被包裹成[圆]柱的承重柱,而中间的最大的那一根,内部则大有乾坤。
1楼的尽头就是客厅,墙角的[圆]弧展示壁龛碰撞卡洛斯卡帕经典的直角造型。
平时只有业主小姐姐一个人居住,所以在有了一间兼具影音和健身的房间后,客厅就只放了一组Edra的On the Rocks 岩石组合沙发和Isamu Noguchi野口勇茶几。
沙发的对面就是刚才留了悬念的巨大[圆]柱,如果我不说,应该没人会想到它其实是卫生间。
虽然是一间暗卫,但在一个纯[圆]的空间里,上厕所这件事都莫名有一种变圣神的氛围,头顶的光都好像变成了圣光。
圆形的旋转楼梯的最后两层阶梯用胡桃木色跳脱出来,圆叠加半圆的造型,温暖柔和的同时,也把概念再一次展现。
打开墙上TomDixon的后现代风熔岩壁灯,也会把微水泥接近天然石材的原生美感凸显,营造出高级的氛围感。
沿着旋转楼梯拾级而上,来到2楼的私区空间。
[圆]的形态也继续出现在二楼,不仅是楼梯间和被包裹的沉重住,所有的墙面也都和波浪一般绵延不断。
2楼次卫的浴室,开了一扇特别的[圆]形天窗, 每当在白天淋浴的时候,同时还有阳光从头顶洒下,沐浴真正的阳光,名副其实的“真日光浴”。
主卧的落地窗拱门的半[圆]弧的顶部线条,经典的造型,舒适耐看;深沉的胡桃木色柜门稳重优雅,还给房间增添了些许复古韵味。
右手边打开的偏轴门内,藏着的就是女主人独享的衣帽间,在这也放了一把和楼下吧台同款的Edra花瓣高脚凳。
梵几的落地书架也呼应柜门选择了质感沉稳的黑胡桃木色,像是一块丝滑的巧克力,摆放着女主人精心收藏的黑胶唱片和专辑。
主卧的厕所设计沉了干湿分离,干区外放,结合梳妆台背靠床头,湿区则被长虹玻璃隐藏在背后;黄铜+胡桃木的组合雅中见质,散发出内敛的复古奢华气息。
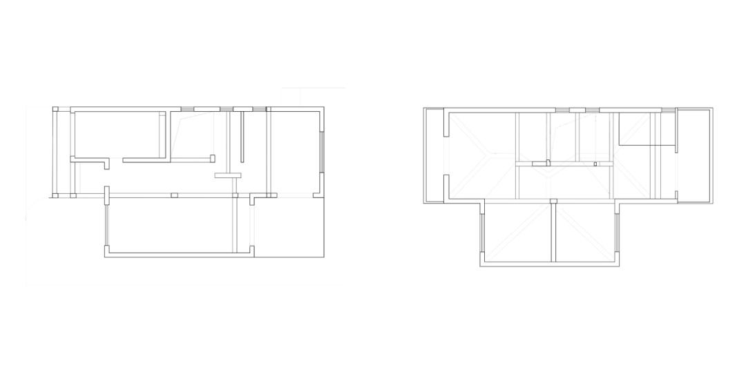
FLOOR PLAN
原始户型图/ORIGINAL HOUSE PLAN
平面方案 / DESIGN FLAT PLAN
INFO
项目名称:[ 圆 ] 的世界
项目地址:上海 · 浦东
项目类型:住宅设计
项目面积:240㎡
设计公司:FF DESIGN
完成时间:2023年06月
客服
消息
收藏
下载
最近


![[ 圆 ] 的世界丨中国上海丨FF DESIGN-0](https://image.linggan.znzmo.com/case/img/e79ab8d47df3d8207d7370df6adcb0b65ca63ced.png?x-oss-process=image/auto-orient,1/watermark,text_55-l5pyr5qGI5L6L,size_20,rotate_45,fill_1,t_5,x_200,y_200/resize,m_mfit,w_880,h_2662,limit_0)
![[ 圆 ] 的世界丨中国上海丨FF DESIGN-4](https://image.linggan.znzmo.com/case/img/a98c0d45bb06cb2f2e9279b8bbc151bef99414a7.jpg?x-oss-process=image/auto-orient,1/watermark,text_55-l5pyr5qGI5L6L,size_20,rotate_45,fill_1,t_5,x_200,y_200/resize,m_mfit,w_880,h_1262,limit_0)
![[ 圆 ] 的世界丨中国上海丨FF DESIGN-7](https://image.linggan.znzmo.com/case/img/6a16309455727d7f6a36beae1f1ddad1e730bceb.jpg?x-oss-process=image/auto-orient,1/watermark,text_55-l5pyr5qGI5L6L,size_20,rotate_45,fill_1,t_5,x_200,y_200/resize,m_mfit,w_880,h_541,limit_0)
![[ 圆 ] 的世界丨中国上海丨FF DESIGN-8](https://image.linggan.znzmo.com/case/img/3beabc3b9273d4b9d88aee3c2f45e242a5d93614.jpg?x-oss-process=image/auto-orient,1/watermark,text_55-l5pyr5qGI5L6L,size_20,rotate_45,fill_1,t_5,x_200,y_200/resize,m_mfit,w_880,h_1286,limit_0)
![[ 圆 ] 的世界丨中国上海丨FF DESIGN-11](https://image.linggan.znzmo.com/case/img/14d74c75ac8e7f1592bebdaca9e423bdcc8792ce.jpg?x-oss-process=image/auto-orient,1/watermark,text_55-l5pyr5qGI5L6L,size_20,rotate_45,fill_1,t_5,x_200,y_200/resize,m_mfit,w_880,h_1183,limit_0)
![[ 圆 ] 的世界丨中国上海丨FF DESIGN-12](https://image.linggan.znzmo.com/case/img/7cdd62a8900dba7a424ae1914c01bc0245ff5429.jpg?x-oss-process=image/auto-orient,1/watermark,text_55-l5pyr5qGI5L6L,size_20,rotate_45,fill_1,t_5,x_200,y_200/resize,m_mfit,w_880,h_1249,limit_0)
![[ 圆 ] 的世界丨中国上海丨FF DESIGN-13](https://image.linggan.znzmo.com/case/img/89fcb73d84de144cbfab39a435387e54d41da599.jpg?x-oss-process=image/auto-orient,1/watermark,text_55-l5pyr5qGI5L6L,size_20,rotate_45,fill_1,t_5,x_200,y_200/resize,m_mfit,w_880,h_1286,limit_0)
![[ 圆 ] 的世界丨中国上海丨FF DESIGN-17](https://image.linggan.znzmo.com/case/img/3b46aa7c27438f9ff4d5f8db155fb5af95c913a5.jpg?x-oss-process=image/auto-orient,1/watermark,text_55-l5pyr5qGI5L6L,size_20,rotate_45,fill_1,t_5,x_200,y_200/resize,m_mfit,w_880,h_1284,limit_0)
![[ 圆 ] 的世界丨中国上海丨FF DESIGN-18](https://image.linggan.znzmo.com/case/img/07c9252d0f73d6aaa984a8102a0c5eac0f58b027.jpg?x-oss-process=image/auto-orient,1/watermark,text_55-l5pyr5qGI5L6L,size_20,rotate_45,fill_1,t_5,x_200,y_200/resize,m_mfit,w_880,h_1286,limit_0)
![[ 圆 ] 的世界丨中国上海丨FF DESIGN-19](https://image.linggan.znzmo.com/case/img/24317f59b85a51219c5483a9567b584924cf82cb.jpg?x-oss-process=image/auto-orient,1/watermark,text_55-l5pyr5qGI5L6L,size_20,rotate_45,fill_1,t_5,x_200,y_200/resize,m_mfit,w_880,h_1286,limit_0)
![[ 圆 ] 的世界丨中国上海丨FF DESIGN-21](https://image.linggan.znzmo.com/case/img/f23829e40f23353ad45dc4b2f8863a1c08d8f553.jpg?x-oss-process=image/auto-orient,1/watermark,text_55-l5pyr5qGI5L6L,size_20,rotate_45,fill_1,t_5,x_200,y_200/resize,m_mfit,w_880,h_1285,limit_0)
![[ 圆 ] 的世界丨中国上海丨FF DESIGN-22](https://image.linggan.znzmo.com/case/img/4d37d3bb2d7dbafa174c687d10e9c93dde499ac4.jpg?x-oss-process=image/auto-orient,1/watermark,text_55-l5pyr5qGI5L6L,size_20,rotate_45,fill_1,t_5,x_200,y_200/resize,m_mfit,w_880,h_1286,limit_0)
![[ 圆 ] 的世界丨中国上海丨FF DESIGN-23](https://image.linggan.znzmo.com/case/img/5bff705fc5daef94ef3fa9b6668f14c51d95ad58.jpg?x-oss-process=image/auto-orient,1/watermark,text_55-l5pyr5qGI5L6L,size_20,rotate_45,fill_1,t_5,x_200,y_200/resize,m_mfit,w_880,h_1285,limit_0)
![[ 圆 ] 的世界丨中国上海丨FF DESIGN-24](https://image.linggan.znzmo.com/case/img/9bb4946bf76d7772ccd8be2891815bb86da85490.jpg?x-oss-process=image/auto-orient,1/watermark,text_55-l5pyr5qGI5L6L,size_20,rotate_45,fill_1,t_5,x_200,y_200/resize,m_mfit,w_880,h_1267,limit_0)
![[ 圆 ] 的世界丨中国上海丨FF DESIGN-27](https://image.linggan.znzmo.com/case/img/a369a7b31fb43a622f18ce5b7420a35ae5afbb51.jpg?x-oss-process=image/auto-orient,1/watermark,text_55-l5pyr5qGI5L6L,size_20,rotate_45,fill_1,t_5,x_200,y_200/resize,m_mfit,w_880,h_1286,limit_0)
![[ 圆 ] 的世界丨中国上海丨FF DESIGN-28](https://image.linggan.znzmo.com/case/img/1db31b104814dd060cd8263483cdcc07c3684c13.jpg?x-oss-process=image/auto-orient,1/watermark,text_55-l5pyr5qGI5L6L,size_20,rotate_45,fill_1,t_5,x_200,y_200/resize,m_mfit,w_880,h_1531,limit_0)
![[ 圆 ] 的世界丨中国上海丨FF DESIGN-31](https://image.linggan.znzmo.com/case/img/73876a7e5ec18a1e541b068d435c9e2140f2ed04.jpg?x-oss-process=image/auto-orient,1/watermark,text_55-l5pyr5qGI5L6L,size_20,rotate_45,fill_1,t_5,x_200,y_200/resize,m_mfit,w_880,h_1285,limit_0)
![[ 圆 ] 的世界丨中国上海丨FF DESIGN-32](https://image.linggan.znzmo.com/case/img/aa971cf7666f670c52906e8de3c4b7720a961e70.jpg?x-oss-process=image/auto-orient,1/watermark,text_55-l5pyr5qGI5L6L,size_20,rotate_45,fill_1,t_5,x_200,y_200/resize,m_mfit,w_880,h_1286,limit_0)
![[ 圆 ] 的世界丨中国上海丨FF DESIGN-33](https://image.linggan.znzmo.com/case/img/fdeed7d294531ae3911356af47d12783062f37a6.jpg?x-oss-process=image/auto-orient,1/watermark,text_55-l5pyr5qGI5L6L,size_20,rotate_45,fill_1,t_5,x_200,y_200/resize,m_mfit,w_880,h_1227,limit_0)
![[ 圆 ] 的世界丨中国上海丨FF DESIGN-35](https://image.linggan.znzmo.com/case/img/4d6775e78f459147c9693261e8768c2ed044c4a3.jpg?x-oss-process=image/auto-orient,1/watermark,text_55-l5pyr5qGI5L6L,size_20,rotate_45,fill_1,t_5,x_200,y_200/resize,m_mfit,w_880,h_1286,limit_0)
![[ 圆 ] 的世界丨中国上海丨FF DESIGN-36](https://image.linggan.znzmo.com/case/img/36d656f332d9da0ebed743db3d2d40462b80b16e.jpg?x-oss-process=image/auto-orient,1/watermark,text_55-l5pyr5qGI5L6L,size_20,rotate_45,fill_1,t_5,x_200,y_200/resize,m_mfit,w_880,h_1286,limit_0)
![[ 圆 ] 的世界丨中国上海丨FF DESIGN-37](https://image.linggan.znzmo.com/case/img/b1a9de21a30426e00c7f2d7bb12c9c14385ccbca.jpg?x-oss-process=image/auto-orient,1/watermark,text_55-l5pyr5qGI5L6L,size_20,rotate_45,fill_1,t_5,x_200,y_200/resize,m_mfit,w_880,h_585,limit_0)
![[ 圆 ] 的世界丨中国上海丨FF DESIGN-40](https://image.linggan.znzmo.com/case/img/419bf4af1dba887899d5b659225e2114d0b365cb.jpg?x-oss-process=image/auto-orient,1/watermark,text_55-l5pyr5qGI5L6L,size_20,rotate_45,fill_1,t_5,x_200,y_200/resize,m_mfit,w_880,h_1286,limit_0)
![[ 圆 ] 的世界丨中国上海丨FF DESIGN-41](https://image.linggan.znzmo.com/case/img/d6e78ee6b0a9a167756c36156b2f5526026fbbb5.jpg?x-oss-process=image/auto-orient,1/watermark,text_55-l5pyr5qGI5L6L,size_20,rotate_45,fill_1,t_5,x_200,y_200/resize,m_mfit,w_880,h_1286,limit_0)
![[ 圆 ] 的世界丨中国上海丨FF DESIGN-42](https://image.linggan.znzmo.com/case/img/344e9efa8f9c21bf2c2abf358fc0f609523c3916.gif)
![[ 圆 ] 的世界丨中国上海丨FF DESIGN-45](https://image.linggan.znzmo.com/case/img/c719de2dc918cabfc940afda4f3d4fcc2d11612e.jpg?x-oss-process=image/auto-orient,1/watermark,text_55-l5pyr5qGI5L6L,size_20,rotate_45,fill_1,t_5,x_200,y_200/resize,m_mfit,w_880,h_1286,limit_0)
![[ 圆 ] 的世界丨中国上海丨FF DESIGN-46](https://image.linggan.znzmo.com/case/img/de324e20b32e84751c1cda714dc4f91d4c1af9bf.jpg?x-oss-process=image/auto-orient,1/watermark,text_55-l5pyr5qGI5L6L,size_20,rotate_45,fill_1,t_5,x_200,y_200/resize,m_mfit,w_880,h_1291,limit_0)
![[ 圆 ] 的世界丨中国上海丨FF DESIGN-47](https://image.linggan.znzmo.com/case/img/41fffa6d3d463ea1f509cbb154340f075742d7ba.jpg?x-oss-process=image/auto-orient,1/watermark,text_55-l5pyr5qGI5L6L,size_20,rotate_45,fill_1,t_5,x_200,y_200/resize,m_mfit,w_880,h_1286,limit_0)
![[ 圆 ] 的世界丨中国上海丨FF DESIGN-48](https://image.linggan.znzmo.com/case/img/dec9e5799fc7f87f983258865063e75ada1d07eb.gif)
![[ 圆 ] 的世界丨中国上海丨FF DESIGN-51](https://image.linggan.znzmo.com/case/img/ee5694aaf797d6cb7cdad31482466c44deee9f36.jpg?x-oss-process=image/auto-orient,1/watermark,text_55-l5pyr5qGI5L6L,size_20,rotate_45,fill_1,t_5,x_200,y_200/resize,m_mfit,w_880,h_1285,limit_0)
![[ 圆 ] 的世界丨中国上海丨FF DESIGN-52](https://image.linggan.znzmo.com/case/img/7a750d94acc27af58f69252160379c1a2c0cb49a.jpg?x-oss-process=image/auto-orient,1/watermark,text_55-l5pyr5qGI5L6L,size_20,rotate_45,fill_1,t_5,x_200,y_200/resize,m_mfit,w_880,h_1286,limit_0)
![[ 圆 ] 的世界丨中国上海丨FF DESIGN-54](https://image.linggan.znzmo.com/case/img/a8850f13c6004cf05556d986371eb4a423428220.jpg?x-oss-process=image/auto-orient,1/watermark,text_55-l5pyr5qGI5L6L,size_20,rotate_45,fill_1,t_5,x_200,y_200/resize,m_mfit,w_880,h_1285,limit_0)
![[ 圆 ] 的世界丨中国上海丨FF DESIGN-56](https://image.linggan.znzmo.com/case/img/7481a7e4117ef5f3ac389b6da9c999bfb2cecf67.jpg?x-oss-process=image/auto-orient,1/watermark,text_55-l5pyr5qGI5L6L,size_20,rotate_45,fill_1,t_5,x_200,y_200/resize,m_mfit,w_880,h_1285,limit_0)
![[ 圆 ] 的世界丨中国上海丨FF DESIGN-58](https://image.linggan.znzmo.com/case/img/936145c8307e0b6d05d8595d8566361251137fdb.jpg?x-oss-process=image/auto-orient,1/watermark,text_55-l5pyr5qGI5L6L,size_20,rotate_45,fill_1,t_5,x_200,y_200/resize,m_mfit,w_880,h_1285,limit_0)
![[ 圆 ] 的世界丨中国上海丨FF DESIGN-60](https://image.linggan.znzmo.com/case/img/381b6bba5055e7156687c8ad2a1f2ec36a87ee58.jpg?x-oss-process=image/auto-orient,1/watermark,text_55-l5pyr5qGI5L6L,size_20,rotate_45,fill_1,t_5,x_200,y_200/resize,m_mfit,w_880,h_554,limit_0)
![[ 圆 ] 的世界丨中国上海丨FF DESIGN-61](https://image.linggan.znzmo.com/case/img/1e5c1733dd3c44c4acae0b514d5bdcf6fe1424f2.jpg?x-oss-process=image/auto-orient,1/watermark,text_55-l5pyr5qGI5L6L,size_20,rotate_45,fill_1,t_5,x_200,y_200/resize,m_mfit,w_880,h_1285,limit_0)
![[ 圆 ] 的世界丨中国上海丨FF DESIGN-62](https://image.linggan.znzmo.com/case/img/a0f6788e8073f15e550fcfeb16f500f0bbd5aa95.jpg?x-oss-process=image/auto-orient,1/watermark,text_55-l5pyr5qGI5L6L,size_20,rotate_45,fill_1,t_5,x_200,y_200/resize,m_mfit,w_880,h_1286,limit_0)
![[ 圆 ] 的世界丨中国上海丨FF DESIGN-64](https://image.linggan.znzmo.com/case/img/8f0acbea632bc682f3c8bf70def21cea7ad2f688.jpg?x-oss-process=image/auto-orient,1/watermark,text_55-l5pyr5qGI5L6L,size_20,rotate_45,fill_1,t_5,x_200,y_200/resize,m_mfit,w_880,h_572,limit_0)
![[ 圆 ] 的世界丨中国上海丨FF DESIGN-65](https://image.linggan.znzmo.com/case/img/3a9ace31b28ef00bd14bc5f032cfb25ff8aed63d.jpg?x-oss-process=image/auto-orient,1/watermark,text_55-l5pyr5qGI5L6L,size_20,rotate_45,fill_1,t_5,x_200,y_200/resize,m_mfit,w_880,h_1286,limit_0)
![[ 圆 ] 的世界丨中国上海丨FF DESIGN-67](https://image.linggan.znzmo.com/case/img/908e66d4dd44b1a08128e437802f1a9a349d7d27.jpg?x-oss-process=image/auto-orient,1/watermark,text_55-l5pyr5qGI5L6L,size_20,rotate_45,fill_1,t_5,x_200,y_200/resize,m_mfit,w_880,h_1378,limit_0)
![[ 圆 ] 的世界丨中国上海丨FF DESIGN-68](https://image.linggan.znzmo.com/case/img/e9fe9fa72ece01ea30901bccf638a337439ac344.jpg?x-oss-process=image/auto-orient,1/watermark,text_55-l5pyr5qGI5L6L,size_20,rotate_45,fill_1,t_5,x_200,y_200/resize,m_mfit,w_880,h_1307,limit_0)
![[ 圆 ] 的世界丨中国上海丨FF DESIGN-69](https://image.linggan.znzmo.com/case/img/54fce3efe7f796b47bd13c7aeb9eace5c002d364.jpg?x-oss-process=image/auto-orient,1/watermark,text_55-l5pyr5qGI5L6L,size_20,rotate_45,fill_1,t_5,x_200,y_200/resize,m_mfit,w_880,h_1276,limit_0)
![[ 圆 ] 的世界丨中国上海丨FF DESIGN-70](https://image.linggan.znzmo.com/case/img/cccdb6a6c639e89bf2894e151faf1702602711e2.jpg?x-oss-process=image/auto-orient,1/watermark,text_55-l5pyr5qGI5L6L,size_20,rotate_45,fill_1,t_5,x_200,y_200/resize,m_mfit,w_880,h_1286,limit_0)
![[ 圆 ] 的世界丨中国上海丨FF DESIGN-73](https://image.linggan.znzmo.com/case/img/3c1f9254c896afe05cbad5fbf9aef575d41c92d8.jpg?x-oss-process=image/auto-orient,1/watermark,text_55-l5pyr5qGI5L6L,size_20,rotate_45,fill_1,t_5,x_200,y_200/resize,m_mfit,w_880,h_462,limit_0)
![[ 圆 ] 的世界丨中国上海丨FF DESIGN-75](https://image.linggan.znzmo.com/case/img/2cd8f74f48cb420d87264c1cb5d9efb3f439c7b9.jpg?x-oss-process=image/auto-orient,1/watermark,text_55-l5pyr5qGI5L6L,size_20,rotate_45,fill_1,t_5,x_200,y_200/resize,m_mfit,w_880,h_462,limit_0)
