查看完整案例

收藏

下载
“最好的建筑是这样的:我们深处在其中,却不知道自然在哪里终了,艺术在哪里开始。”——林语堂
一层客厅
秉持设计师的视角审视室内空间,“Ta”应是生活的承载。设计师探讨界面色彩搭配并追求协调,无非是从颜色入手对使用者的心理情绪进行潜移默化地正面引导。
不经意的灵光闪现,片刻的思绪放空。色彩之外,空间当中,还存在着另一个值得玩味且充满魅力的要素;它无形物质,却又真实无比——光!
二层起居室
二层主卧套间
因“光”的存在,视觉感知得以发生。没有“光”,我们将身处一片孤寂的黑暗当中。舍弃色彩固有的冷暖倾向,“黑”与“白”透过单纯的形式概括造型变化。
“白”的容纳性暗含“虚”的语义;“黑”的真实感强调“实”的存在。空间的色彩,在自然“光”的抚慰下流露出暖调微醺、或冷调通透的变幻感受。
三层主卧
光在黑白基调的空间内游走,功能区域划分与穿插得以被悄无声息地联接贯通。把回旋的楼梯作为空间“主轴”,创造一种牵引向上的轻盈动势。
石、木、金属、皮革等多元材质保留固有质地,黑白的“无彩色”将情绪地激发交由“光”来完成。
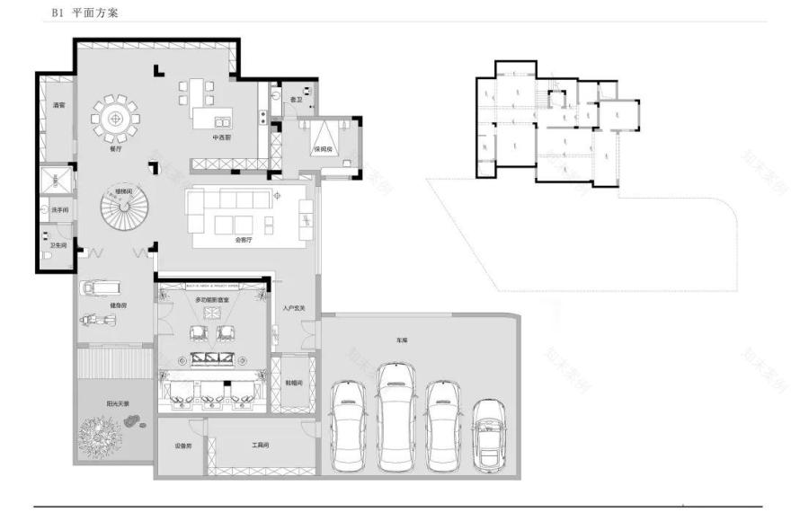
负一层会客厅
负一层餐厅
最终,“艺”的理念渗透其间,“黑”与“白”不再仅仅是设计要素;它们更像是一种手段——铭记“光”的模样,唤醒空间生命……
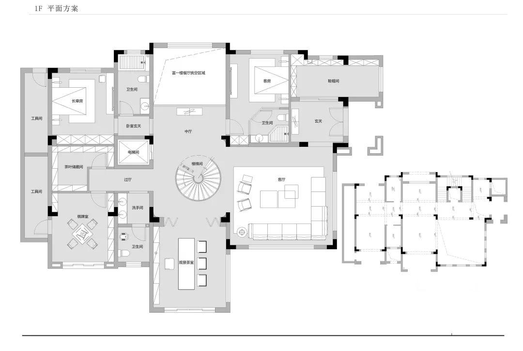
平面设计图
项目名称:枫溪壹号
项目地址:湖南株洲
建筑面积:1000㎡
项目造价:1000w
完工时间:2022.01
项目类别:别墅空间
选用品牌:芒果瓷砖、ICC、特灵中央空调、中赛照明、高仪卫浴
毛晓翌
翌墅设计主理人
空间设计师,翌墅空间设计主理人。毕业于湖南工业大学,从业经验逾十年,历年多次国内外各地学术考察深造。致力于为精英人群定制独有的个性住宅空间。主张无风格设计,研究空间设计底层逻辑,为空间注入灵魂与文化内涵,让空间设计具有多变性与创新性。
客服
消息
收藏
下载
最近





















