查看完整案例

收藏

下载
把一切非宇宙性的东西摧毁
星光的幻灭和草木的眷恋不可抵挡
只留夕阳彻照
我们俩于万千落日之外
静观交错的飞鸟迎着誓言流转
此案是年轻的男女主人,留学归来的婚房。相识十年,相恋七年。在学校的青涩时光,在国外的相互照顾,步入社会后的忙碌日常……一路走来,时光并没有让这段感情褪色,反而历久弥新,愈发动人。
那一天,聚光灯下,男孩对女孩说,始于欣悦,合于三观,成于相惜,久于岁月。这个世上有很多种爱情,但我相信在没有任何爱情能比我所得到的更好。爱在黄昏日落时,虽然没有一起见过黎明破晓的震撼,却让爱意在一个个日落中渐浓。
女孩说,日落之后,家的温馨感就更加浓郁了。携黄昏之暖意,邀落霞入窗来,设计师将其融入家宅之设计,为男女主人的生活,融入万千光华。
回忆炽热的爱情,开启慢行的生活。
当空间不再审视风格,一道光的存在,让艺术质感随着生活的渐进叠加了情绪与乐趣,让家不再冷硬,充满温度与故事。
通过建筑比例的充分运用,在纯黑的背景墙与纯粹空间的层叠交错中寻找到现代摩登的平衡与美感。降低明度的中性色作为空间的主色调,阳光透过全景的落地玻璃,抚摸着枝条的倒影,别有一番生机。
在此间家宅中,形、线、光和材料都延续了低调奢华的质感,在静谧的基调中不乏趣味,让人静享美味,感受生活的恬静。
空间呈现出一种内敛的艺术基调。无论是嵌入墙壁的落地灯,还是纯粹黑色的楼梯道,都以华美的场景感和材质的肌理美,令空间由内而外释放着纯粹的美学质感。
为寻求内心关于“日落生活”的答案,以开放宽容的视野及空间表达手法,刻画了一个温暖而柔软的现代空间,脱离传统的空间桎梏,营造生活的美好。
空间将不同材料质感的结合,搭配黑灰的底色,用颜色的界限串联,将仪式感做到极致。实与虚的对弈在岩石与实木之间展开,每一寸空间都似乎在传递着“爱在黄昏日落时”的台词。
▼团队合影 | GROUP PHOTO
▼图纸呈现 | DRAWING PRESENTATION
负一层原始结构图
负一层空间规划图
一层原始结构图
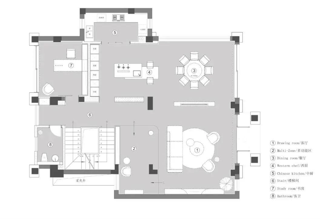
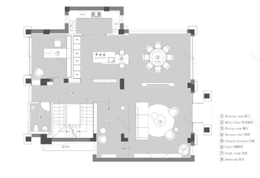
一层空间规划图
二层原始结构图
二层空间规划图
三层原始结构图
三层空间规划图
项目名称:日落之后
设计师:张湖杰 姜克文
团队:陈锞 何金铭 石园园 胡烈刚
项目地点:浙江·宁波
项目面积:428㎡
项目竣工时间:2022.9.26
客服
消息
收藏
下载
最近















































