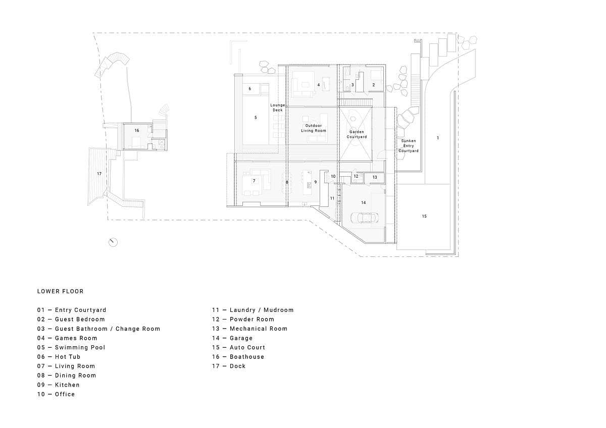
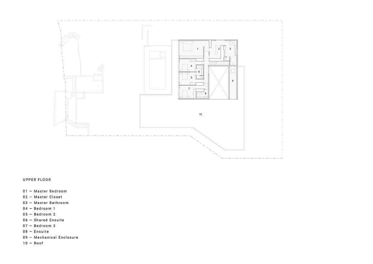
An amazing luxury house overlooking the sea in West Vancouver Canada
2023/03/09 00:00:00
查看完整案例

收藏

下载

分享

翻译



























南京喵熊网络科技有限公司 苏ICP备18050492号-4知末 © 2018—2020 . All photos and trademark graphics are copyrighted by their owners.增值电信业务经营许可证(ICP)苏B2-20201444
苏公网安备 32011302321234号
苏公网安备 32011302321234号客服
消息
收藏
下载
最近
