查看完整案例

收藏

下载
上海,蓬勃生长的都市,在它西南一隅,田园中的中华村也在悄悄发生改变。一系列富有质量的公共服务建筑与活动空间将让这个村庄在未来充满活力。在乡村小学旧址新建的文化中心正是这一振兴计划的重要引擎。在我们的构思中,村落、田园、村民与基地历史再次的紧密连接将成为激发中华村活力的关键。
Zhonghua Village, located in the southwest corner of the thriving metropolis of Shanghai, is undergoing subtle transformations. This village is anticipated to be infused with rows upon rows of newly constructed, high-quality community service buildings and public spaces. The Villager’s Cultural Activity Center, newly constructed on the former site of a rural primary school, is a significant driving force behind this revitalization program. Our design aims to reconnect the village, the fields, the villagers, and the legacy of this land, making the center key to revitalizing the village.
▼鸟瞰,aerial view© 申强
连接:村落与田园
Connection: Village and Fields
中华村依水而生,但在过去的建设中,村庄内部连接两岸的传统小桥,被沿外部道路布局的机动车桥梁取代,村落与田野的联系不再紧密。在我们的构思中,文化中心将重建村落与田园亲密的连接性。文化中心将是富于连接性的,简洁与层叠的体量让建筑主体有机的嵌入现有村落肌理中。北侧相对封闭的体量隔绝外部道路的干扰,围绕院落的廊与跨越河流的桥不分彼此,向南自然的生长。跨越河流延伸的建筑将村落与田野再次紧密的连接到一起。
▼轴测,axon
Built by water, the village was connected with the fields by traditional bridges. However, they are now replaced with modern motor vehicle bridges constructed to match the road layout outside the village. As a consequence, the village-field link has been broken. The cultural center was constructed to restore this link between the village and the fields. Its concise and layered buildings are naturally incorporated into the existing village’s environment. The relatively closed north side isolates disturbance from external roads. The corridor around the courtyard blends with the bridge spanning the river, extending naturally to the south. The architecture spanning the river reconnects the village with the fields.
▼正立面,front facade©申强
▼外观概览,appearance overview©申强
村庄建筑的传统赋予了主体建筑的白。田野中油菜花与稻谷的颜色赋予了廊与桥的黄。黄色的廊与桥起伏交错的穿插在白色的建筑之间,形成“q”字形的结构。不断变化的视角与空间体验让村落与田野的相遇更加富有戏剧性。
The main building is given a white color for the tradition of village architecture, while the corridor and bridge are colored yellow inspired by the rapeseed flowers and rice fields. The yellow corridor and bridge intersect among the white buildings, forming a q-shaped structure. With constantly changing perspectives and spatial experiences, the integration of the village and fields becomes more dramatic.
▼黄色的廊与白色的建筑,yellow corridor and whit buildings©申强
▼立面局部,facade detail©申强
开放:村民与院落 Openness: Villager and Courtyard
文化中心是开放而富有孔隙的,开放的格局让缺乏公共空间的村民走出家门再次汇集,交互的活动让社区获得新的活力。对此,村民感到亲切的院落再次成为设计主题。1500 平米建筑的体量被拆分成三个宜人的单体,不同氛围的院落穿插其间:开放的前院、宁静的边院、舒展的廊院、向河的树院。开放性的院落结构吸引着村民进入文化中心。建筑与庭院的相互渗透,为村民的游憩与社区活动提供了更加丰富的空间可能。
Open and spaced, the cultural center allows villagers, who lack public spaces, to come out of their homes and gather together again. Interactive activities inside infuse new life into the community. For this reason, the familiar courtyard has once again become a design theme. The 1500-square-meter complex is divided into three pleasant units, with courtyards designed in various atmospheres: an open front courtyard, a peaceful side courtyard, a stretched corridor courtyard, and a tree courtyard facing the river. This open courtyard structure attracts villagers to enter the cultural center. The interweaving of buildings and courtyards provides villagers with richer space for recreation and community activities.
▼跨越河流的桥,the bridge spanning the river©申强
▼跨越河流的桥,the bridge spanning the river©申强
▼庭院概览,courtyard overview©申强
▼围廊,ambulatory©申强
▼建筑与庭院的相互渗透,the interweaving of buildings and courtyards©申强
交织:新与旧
Interweaving: Future and History
原有小学的建筑基址与基地边界两套格网形成了有趣夹角,引导着建筑形体的交错变化。横向带状起伏变化的建筑体量记录着基地变化的历程,也赋予了文化中心可识别的特征。基地上的古树得到保留,建筑与廊桥围绕树展开布局,村民与游客可以在不同高度亲近树木。延续的绿色成为了文化中心南部空间的焦点与场所精神的象征。
The original primary school and the two grids at the boundary of the site form an interesting angle, leading to the staggered and changing appearance of the buildings. The horizontally undulating buildings record the site’s evolving history, giving the cultural center a distinctive character. The ancient trees have been preserved, with the buildings, corridor and bridge arranged around them, allowing villagers and tourists to get close to the trees at different heights. The enduring greenery has become the focal point of the southern space of the cultural center, symbolizing its spirit.
▼一角,a corner©申强
▼露台,terrace©申强
▼临河立面,facade facing the river©申强
▼立面局部,facade detail©申强
▼湖面上的廊桥,bridge over the river©申强
▼观景平台,watchtower©申强
▼总平面图,site plan
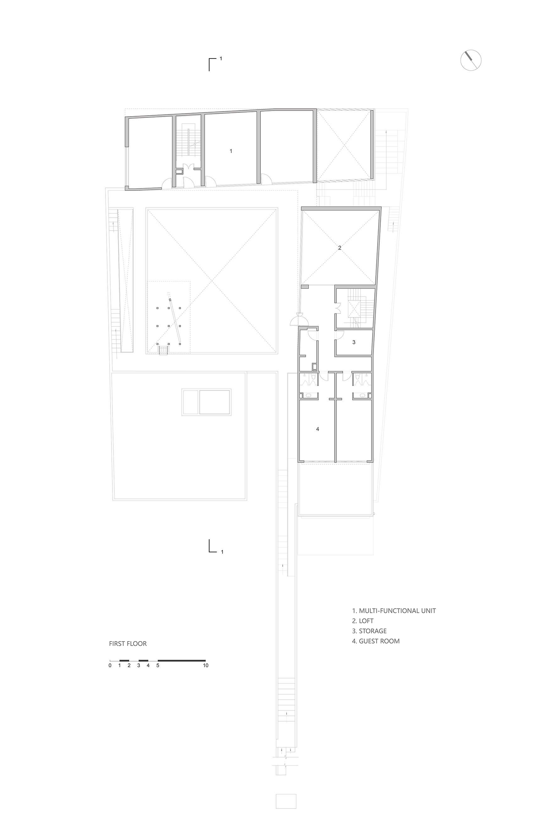
▼一层平面,ground floor plan
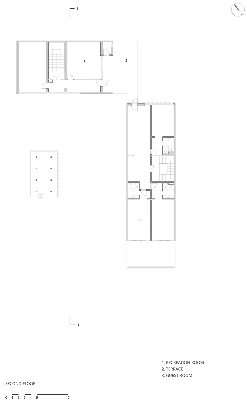
▼二层平面,first floor plan
▼三层平面,second floor plan
▼屋顶平面,roof floor plan
▼立面图,elevations
▼剖面图,sections
▼剖面大样,detailed section
业主:廊下镇中华村村委会
设计单位:ppas 德国珮帕施规划建筑设计事务所+Atelier tf
项目地点:上海·廊下
设计完成时间:2022.6
建造完成时间:2023.02
用地面积:1165㎡
建筑面积:1511㎡
主创设计师(人名):张宁
设计团队(人名): 严阵,李振国,王洪,ANDREAS FERNANDEZ,胡云涛
项目管理(人名):束钰萍,唐颖
景观设计(人名):刘晋鹏,成铭芸,葛晓君,王思怡,易婉璐,张玥
灯光设计咨询(人名):刘晓光,张鹏飞、钟盈韵
木结构顾问(人名):朱亚鼎
摄影师:申强
客服
消息
收藏
下载
最近






































