查看完整案例

收藏

下载

翻译
Architects:Hebra Arquitectos
Area:217m²
Year:2023
Photographs:Marcos Zegers
Manufacturers:Neolith,Boch,Bosch,FDV,Hbt,MK,Teka
Lead Architects:Esteban Cubillos, Simón Pérez, Vicente Cubillos
Structural Engineering:Pedro Valenzuela
City:Futrono
Country:Chile
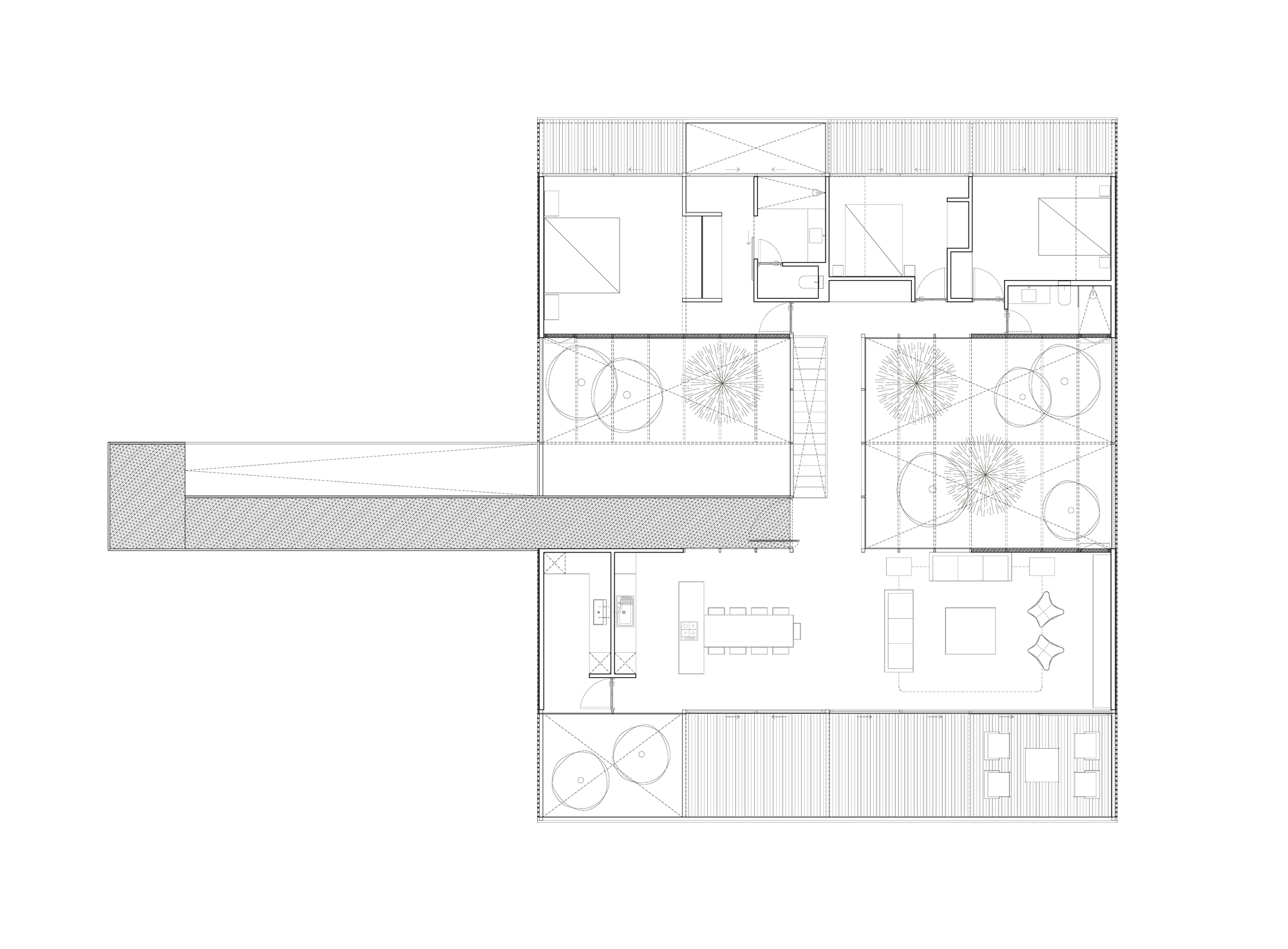
Text description provided by the architects. The commission was for a second residence in the middle of the forest for a married couple, a sculptor and a psychologist, where they would have a place to receive their two visiting children. The initial idea of the owners was that this project would be carried out in two phases for an eventual future expansion. Therefore, a regular grid with two levels was proposed to plan an order for the growth of the house. The first stage would be elevated, then the expansion would be done below ground level, forming a plinth.
After starting this project during the pandemic, the clients finally decided to transform this house into their first home. Therefore, both stages were built simultaneously. Given this initial situation, the challenge of the project was to create an architecture different from the existing in the area, functional and warm at the same time, seeking as a premise the direct relationship with the forest, but without losing interior comfort. For this, a metal structure on concrete cores allowed an area “under” the house to be achieved, which serves as a reception area to protect from the rain. Then, on a second level, a warm and luminous interior is understood as a space of containment and, at the same time, of contemplation. For this, large sliding panels were opened to a deck facing the trees, and the roof was “detached” from the walls on a reticulated beam. Its expression was to be light, with the roof beams stacked at the ends.
Three main objectives led us to elevate the house: to avoid humidity, to get more light, and to obtain views of the three surrounding areas. The exterior walls are formed by cypress wood screens, seeking to generate intimacy towards the faces facing the more public exteriors and large expanses of glass towards the interior courtyards, to let in natural light.
Tres eran los objetivos principales nos llevaron a elevar la casa: evitar la humedad, conseguir más luz y obtener vistas a lo alto de los tres alrededores. Los paramentos exteriores están formados por pantallas de madera de ciprés, buscando generar intimidad hacia las caras que dan a los exteriores más públicos y grandes extensiones de cristal hacia los patios interiores, con el objetivo de dejar entrar la luz natural.
Project gallery
客服
消息
收藏
下载
最近
















































