查看完整案例

收藏

下载

翻译
Architects:Architecture Architecture
Year:2022
Photographs:Tom Ross
Landscape Designers:Renata Fairhall Garden Designs
City:Albert Park
Country:Australia
Text description provided by the architects. Skygarden has its genesis in tessellated ornament, the color fields of abstract art, the hanging gardens of Babylon, and James Turrell’s immersive installations, where sensory deprivations eventually give rise to figments (and pigments) of imagination.
In some cultures, certain geometries are thought to be a bridge to the spiritual world, a window to the infinite above. Similarly, practitioners of abstract art seek to liberate composition and color from the realms of the known. A lifelong pilot, Turrell has cultivated a fascination with light, atmospheres, and their unearthly effects.
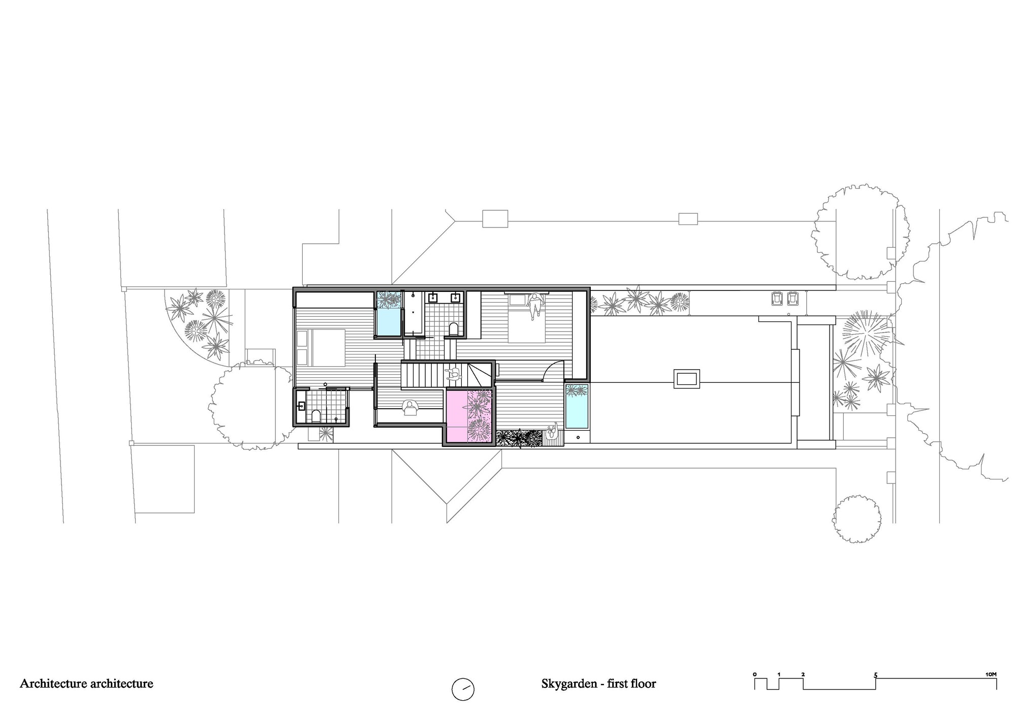
Sandwiched between two terraces, Skygarden is punctuated by three pigmented light shafts lined in tessellated tiles, drawing sunlight and color deep into its chambers. In the course of a day, each shaft passes through phases of luminance and shadow, bathing the house in an ever-changing wash of mixed hues.
Momentarily suspended, a single dropletwarmed by sun, draws light into its prism:fanning whites into greens, into pinks and blues -once a wave / a particle, now a symphonyof colour; a delicate songblossoms in the sky.
Project gallery
客服
消息
收藏
下载
最近























