查看完整案例

收藏

下载

翻译
Architects:Delia Teschendorff Architecture
Area:187m²
Year:2023
Photographs:Trevor Mein
Lead Architects:Delia Teschendorff
General Contractors:Silverstream Constructions
Structural Engineering:TGA Engineers
Landscape Architecture:Mcnuttndorff Landscapes
City:Melbourne
Country:Australia
Text description provided by the architects. Located in an established suburb of Melbourne, The Courtyard and Garden House has a compact, modest footprint and has been sensitively sited to retain existing trees. This approach is the antithesis of many large new developments in the area that erase important existing ‘backyard’ ecologies.
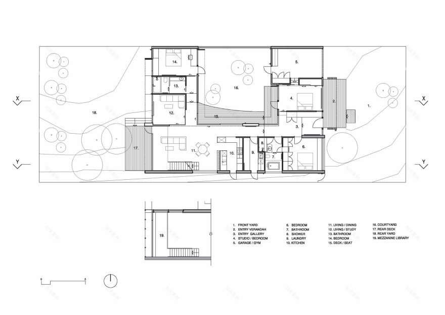
The new family home prioritizes longevity and sustainability. It caters to their needs both now and in the future and can adapt from a two-bedroom house with separate studies to a four-bedroom dwelling. This has been achieved by carefully organizing the space around a north-facing courtyard, allowing for a variety of flexible, separate living areas and open-space zones. It creates a series of serene, light-filled spaces with a strong connection to the landscape.
Local and sustainable materials were specified, from the Victorian Ash floorboards to the birch plywood joinery and the silver top ash-clad ceiling. FCS-certified Australian hardwood timbers have been used throughout the home, and visual site lines are created towards the double-height living area and mezzanine library, with a sculptural timber-lined ceiling to strengthen this visual connection. This mezzanine adjacent to the main space is accessed via the folded perforated – steel staircase. Honed concrete brickwork was employed in the double-height space to meet structural requirements and complement the timber. Materials were chosen for their warmth and enduring qualities, ensuring longevity for my client's forever home.
“Delia transformed five dot points from an initial brief into an exquisite, nurturing space that connects us fundamentally to our environment. There are the things we asked for, all rendered with a meticulous, assured beauty: the northern light, the accommodation of an old and cherished maple tree, a mezzanine library, a courtyard, and living spaces that can be used flexibly. And there are the things beyond the dot points that continue to delight and surprise: the reflections, the angles, hidden views that are gradually revealed, and the shadow-play across the walls. It’s an amazing space to live in.” - Client perspective.
Project gallery
客服
消息
收藏
下载
最近
















