查看完整案例

收藏

下载

翻译
Year: 2019Type: hotelLocation: Bukovel, UkraineMaterials: concrete tile, concrete, metal
Architecture: Stanislav YefVisualization: ATAO
Materials used in this project are concrete tile, concrete, metal panels, glass.
The main design idea is having unique сladding material in this project. Сoncrete hexagon tile is the hurt of this project.
On the roof, there are white sun panels Solaxess
which allows to save up to 100% of the cost of electricity
TYPICAL FLOOR:
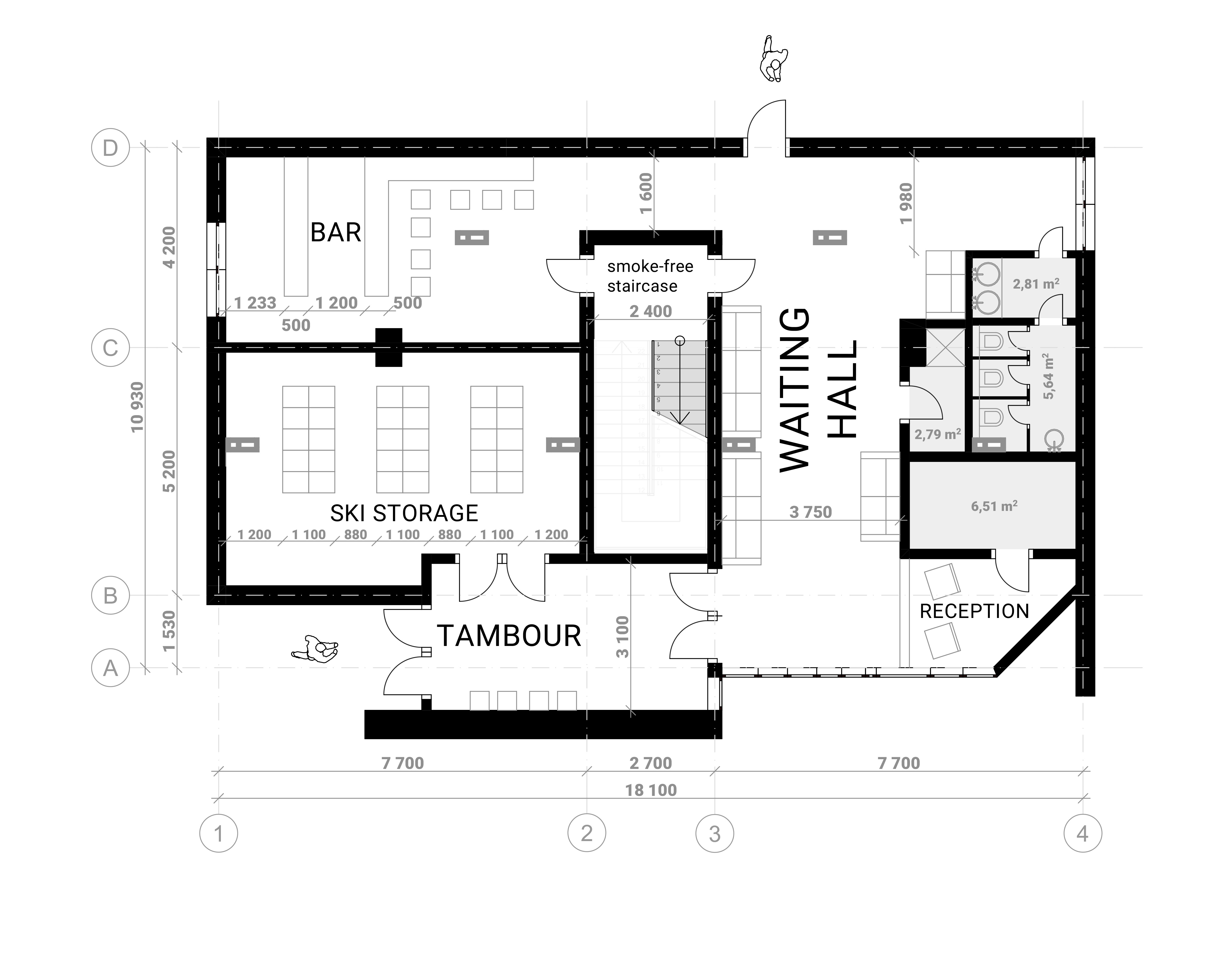
GROUND FLOOR:
客服
消息
收藏
下载
最近











