查看完整案例

收藏

下载
受业主的信任和委托,辰佑设计呈现杭州 800㎡别墅大宅。
一径幽山,宅第间见万象新。下沉庭院绿意盎然,寻得悠然。室内与自然融合,光影流转,灵动空间。旋转楼梯下的室内水景,涟漪荡漾,酒香茶韵,成就一方自在天地。空间通透阔达,现代手法与艺术张力兼具,中古艺术装置与功能并存。
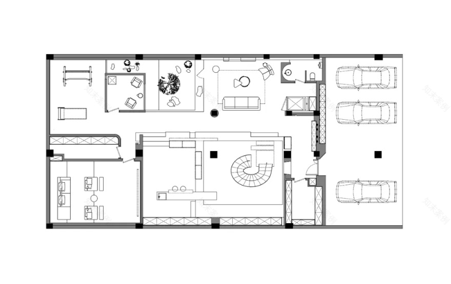
本案方案效果图
一径抱幽山,居然宅第间
{ Sunken Courtyard }
以方寸之地,见万象新生。下沉式庭院绿意造景,山水寸境在理想中落成。觅一份悠然性情,起承转折处,皆是言有尽意无穷的内敛格局。“闹”中取静,以一室禅意侘寂与古朴雅致,定义纯粹诗境,回归内心本初。
空间似有无限趣味横生,蜿蜒迂回的曲线在娓娓道来的节奏感以及横竖错落层次中,流动生发出更多灵气,浑融与典雅。规则与不规则的艺术,在绰约的自然光影下,空间的体块与楼层之间,建立出自在的尺度。
打通室内外空间关系,室内与建筑景观进行融合表达,让人与空间,人与自然间展开更多对话。会客厅与品酒休闲区以景相对,而窗外生机绵延,与室内气韵缱绻相融,共得一方自在天地。
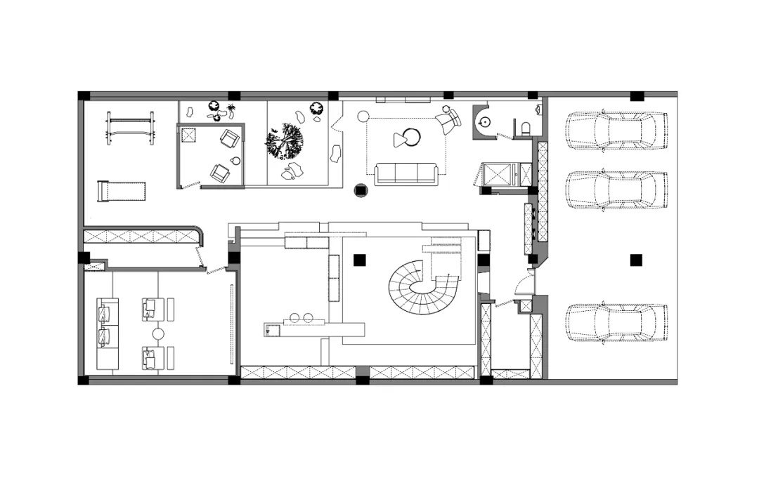
#02 一方框景映云绵,坐看粼波戏空间 { A Water Feature }
光与影,是自然及人为的艺术。天井的大小尺度将光影进行适当的裁剪,楼梯下的空间造出一方水景,倒映出水光粼粼,随时间游移变化,带给空间更多的灵动性。
近水围坐,与酒言欢,兴意而聚,说地谈天。天井、水景、酒柜、吧台设置在一处,非一致的线性语言,视觉上独立又交织,勾勒灵活多变的空间尺度。
吧台一侧,一根细长的金属水管悬空而挂,滴水声清悦,慢慢荡起水面涟漪,空间一下子生动起来。沿着一侧水景设置卡座,或静坐小酌,或杯盏满座,独影情调与狂欢喧嚣皆怡情可得。
地下层空间由于光线不足,设计师在一些造型上适当增加空间的氛围光源,如酒柜背景的整片灯膜设计,随楼梯蜿蜒而上的灯线,以及卡座下的灯光。
#03 茶烟清心,意托山石 { Tea-table space }
在半遮半明、半实半虚之间,延续茶中沉静幽娴之深味。
洄游之间绿意延伸,一方茶台围合一隅悠然,侧边墙面另留长条窗口,渐有凿壁透景之意,两者之间分而不隔。而两侧纳入室内的景致,不仅是视野的拓展,也成为天然的装饰点缀。
#04 调墨写意,清染淡绿疏影
Transparent and Tranquil Space
空间格局破而立新,塑通透阔达,主张以现代手法,缀以中古之意。在顶面及立面,通过材质、造型、曲线的组合变化多元落笔,排比叠加着秩序,生长古雅气息的艺术张力,消解了每一个俗常里的平淡。
艺趣盛放间窥见有趣的型格,不到顶的简意“盒子”落在客厅后方,既可以是艺术装置,也是将原卫生间的功能移至此处。
格局的颠覆,获得公区南北通透的开间尺度。将原本的厨房和卫生间区域拆除并入餐厅,窗口的位置打通做成开门,从餐厅的位置可以看到外面花园的景致。
几何折叠,旋转,翻转,以线、面切割重塑空间,多面婉转和立体动态,衍生出大开大合的现代主义结构张力,犹如植入空间中的艺术雕塑。
#05 如木之馨然,如素纸之渲染,如自然之沉静
{ Wood and Light }
生命情调与自然景象相互交融,既有鲜活的生活气息,也带着幽幽的禅意,简素里的淡雅藏匿由心舒适的尺度,以润物细无声的形式悄然融入日常记忆。
日常里的有序与无序在空间中相互渗透,将琐碎的细枝末节潜藏在温润调性之下。弧面造型柔化了视觉里的棱角,在沉静与暖意间渗透平衡。
在藏书里构建独处的自由维度,展一卷书墨,淡一世心境。半开放式的书房沉浸一隅休闲阅读角,木色与光影陈情,与书香一同陈酿起时间里的哲意。
项目信息
项目地址丨浙江杭州
设计面积丨800㎡
室内设计丨杭州辰佑设计
项目设计丨郦潘刚、陈龙飞、胡智慧
施工单位丨梵品筑匠
项目摄影丨瀚墨视觉-小四
主要材料
涂料丨连年家居
水磨石丨杭州瑞克瓷砖
全屋智能丨萤石
卫浴丨汉斯格雅(百年翠丽)、卡斯科
木饰面丨梵品
道具装置丨展亿定制
淋浴房丨MAENS 麦恩仕
美缝丨瑞海美逢
壁炉丨Moloney 莫洛尼
如需委托
辰佑设计
为
很震撼的楼梯和空间
辰佑的大宅居然这么棒
666 看了方案图 是两年前
大宅不容易啊
周期老长了
能出这么好的落地效果 非常不错了
客服
消息
收藏
下载
最近


















































