查看完整案例

收藏

下载
墨西哥城中心的亚洲风味小酒馆
An Asian bistro in the heart of Mexico city
在新加坡,“makan”一词意为一种邀请:分享食物意味着培育一种亲密,温暖和充满关怀的氛围。这也是厨师Maryann Yong和Mario Malváez决定将他们的餐厅命名为Makan的原因。
In Singapore, the term “makan” is an invitation: sharing food is about fostering intimacy, warmth, and care. This is why chefs Maryann Yong and Mario Malváez decided to name their culinary project *Makan*.
▼项目概览,Overall view of the project©Rafael Gamo
从一开始,Maryann Yong和Mario Malváez就将Makan视为可以唤起熟悉感和信任感的空间,这种熟悉感和信任感来源于为他人烹饪和在同一张桌子上分享食物的故事。Makan借鉴了亚洲烹饪的精密和创造性,以及承诺供应毋庸置疑的优质产品的墨西哥供应商。Makan的菜单展现了东南亚各民族的烹饪传统。在这里,Maryann Yong和Mario Malváez发现菜肴的口味、质地和配料时而和谐共存,时而形成鲜明对比。都遵循一个核心观点:在一道菜肴中提供简约与品质。
▼餐厅平面,plan©LOCUS
From the beginning, both envisioned Makan as a space capable of evoking the familiarity and trust that come with cooking for someone and sharing food and stories at the same table. Makan draws on the precision and creativity of Asian cuisine and the indisputable quality products offered by committed and rigorous Mexican suppliers. The Makan menu is a showcase of culinary traditions from the multitude of ethnicities that make up Southeast Asia. In it, we discover dishes with flavors, textures, and ingredients that sometimes coexist in harmony and other times in contrast, all governed by a central idea: to offer simplicity and quality in a single dish.
▼室内空间概览,Overall view of the interior space©Rafael Gamo
▼柜台,counter ©Rafael Gamo
▼吧台,bar ©Rafael Gamo
▼用餐区,dining area©Rafael Gamo
餐厅采用50%的可循环材料
A restaurant made with 50% recycled materials.
对于项目落地来说,承担对环境的责任感是至关重要的部分。从概念设计阶段开始,使用可持续材料是重中之重,尤其是在室内设计中使用了大量当地的白橡木。这种选择不仅仅强调了周围环境的自然之美,也保证了对自然资源的合理管理,推动了对环境的保护和对当地产业持续性的支持。
Environmental responsibility was a crucial aspect in the realization of the project. From the conception stage, the use of sustainable materials was prioritized, particularly the use of national white oak wood in much of the interior design. This choice not only highlights the natural beauty of the surroundings but also ensures proper management of natural resources, promoting environmental conservation and supporting the local industry sustainably.
▼用餐空间,dining area©Rafael Gamo
不仅如此,设计还实施了各种策略来最大化利用自然光和自然通风,以此来降低对空调系统的依赖和降低能耗。这些措施不仅有助于对环境的保护,也为使用者提供了健康舒适的室内环境,有助于他们的身心健康和工作效率。
Additionally, strategies were implemented to maximize the use of natural light during the day and natural ventilation, thereby reducing the dependence on air conditioning systems and minimizing energy consumption.These measures not only contribute to environmental preservation but also promote a healthy and comfortable indoor environment for the occupants, enhancing their well-being and productivity.
▼最大化利用自然光和自然通风,
maximize the use of natural light during the day and natural ventilation©Rafael Gamo
为了增添一丝独特和对比,在一些家具的细部设计中融入了炭化木。这一技术不仅仅增添了一种视觉上的吸引力,还确保了耐用性和耐久性,避免了对环境和健康有伤害性的化学处理。
To add a touch of distinction and contrast, charred wood was integrated into some furniture details. This technique not only adds a visually appealing element but also ensures durability and resistance, eliminating the need for harmful chemical treatments to the environment and health.
▼家具细部, furniture detail©Rafael Gamo
▼卫生间, washroom ©Rafael Gamo
综合这些考量,餐厅的设计降低了对环境的影响以及和自然环境的和谐共处,体现出设计对可持续性和环境责任感的承诺。
Altogether, these design decisions result in a project with a lower environmental impact and greater harmony with its natural surroundings, reflecting a commitment to sustainability and environmental responsibility.
▼餐厅入口,entrance©Rafael Gamo
▼平面图, plan©LOCUS
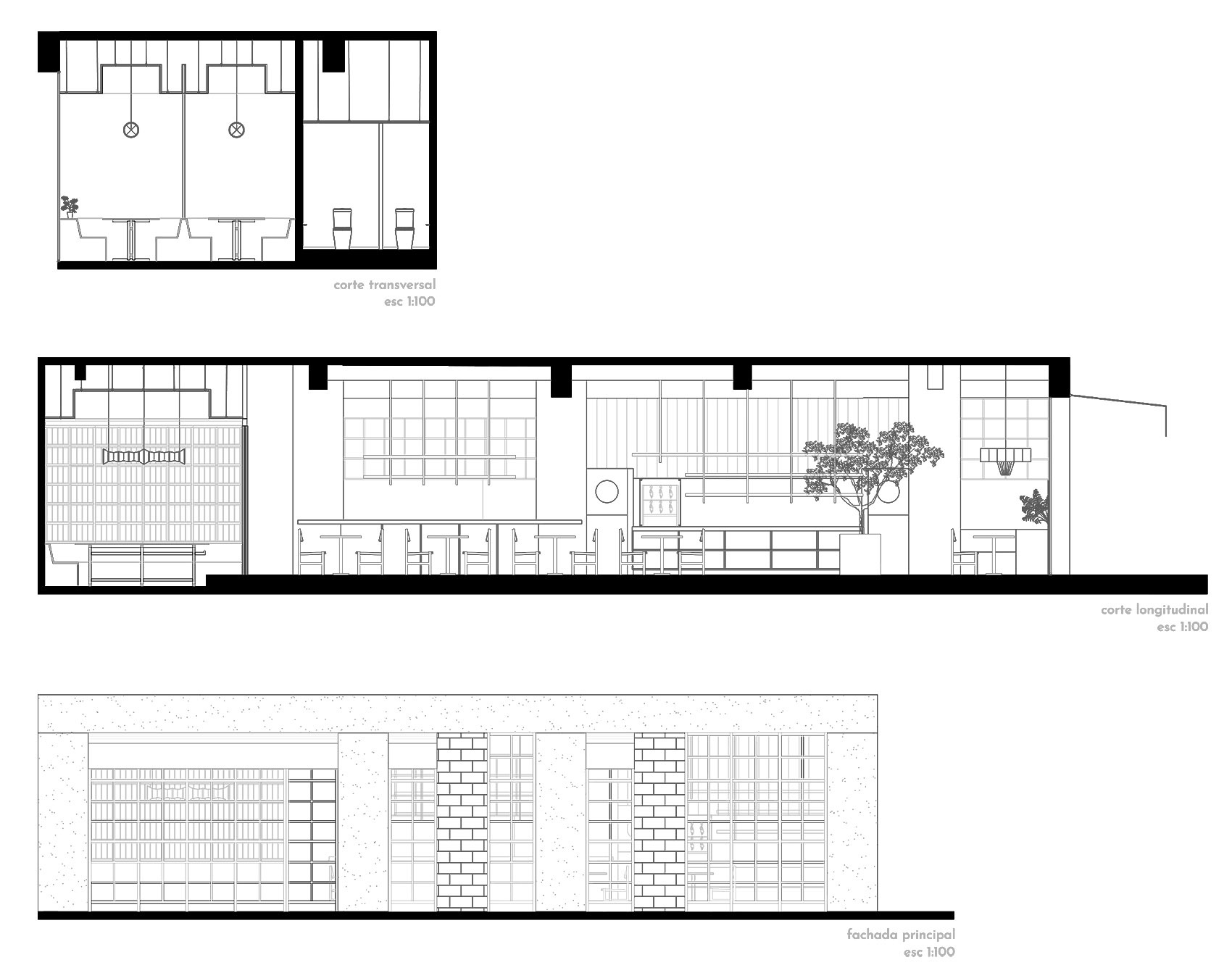
▼剖面/立面, section & elevation©LOCUS
Credits: Locus, Jachen Schleich, Sana Frini
Design Team: Santiago Sitten, Ruy Berumen, Eduardo Silva.
Lighting: Locus X Estudio Nuumbra
Sinks: Locus X Mdc (Muebles De Concreto)
Chairs: Locus X Taller Nacional
Art: It’S A Living, Sindrome De Clerambault
Graphic Design: Foreing Policy Design
客服
消息
收藏
下载
最近























