查看完整案例

收藏

下载
90,
一个关注文化、生活、创意的自媒体,致力于筛选出一系列优质的内容,给希望遇见有趣的人们带来最有质感的线下体验。
90,
A self-media platform focusing on culture, life, and creativity. Committed to curating a series of high-quality content. Bringing the most textured offline experiences to those who seek to encounter interesting people.
▼门店概览,storefront overview© Sanif
聚落
Settlement
店铺通常要求一个完整的大体量展陈空间,然后在周边留下附属功能及漫游动线。由于项目的特殊性以及呈现的“混沌”的状态,我们对空间的操作进行了反转,将“混沌未知”的功能收纳在几个盒子中,而将路径作为展陈的主动线。通过置入和扭转,最终将大的场地划分为五个小的展区,构建出不同的聚落组团。
▼空间生成示意图,space forming diagram©Ruhaus Studio
Shops typically require a large, cohesive display space, with ancillary functions areas and roaming pathways around it. Due to the unique nature of the project and its presentation of a “chaotic” state, we reversed our approach to spatial design by containing the functions of “chaotic uncertainty” within several boxes, while making the pathways the active lines of exhibition. By inserting and twisting spaces, we eventually divided the large site into five smaller exhibition areas, creating distinct settlement clusters.
▼“混沌未知”的盒子,”chaotic uncertainty” within several boxes© Sanif
▼展陈架,display shelves© Sanif
瞬·间
Instant Moment
通过内部和外部两个对比鲜明的空间环境构成,形成独特的空间体验。不同的空间体块通过定期的布景展现不同的气息,成为不可再生的瞬间记忆。而聚落之间的“间隙”尺度控制便于建立“漫游路径”,让消费者产生一种漫游在街巷的熟悉感觉,同时由于路径的交错,碰撞出感官的奇遇。
▼“漫游”概念图解,concept diagram©Ruhaus Studio
Through two distinctly contrasting internal and external spatial environments, a unique spatial experience is created. Different spatial elements, showcased through regular set changes, emit varying atmospheres, becoming irreplaceable moments of memories. The scale control of “gaps” between settlements facilitates the establishment of “roaming paths,” allowing consumers to experience a familiar feeling of wandering through streets and alleys. Meanwhile, the intersection of these paths create sensory encounters and surprises for individuals within the space.
▼“漫游路径”,”roaming paths”© Sanif
▼展陈架局部,part of display shelves© Sanif
▼空间概览,space overview© Sanif
竹架 Bamboo Scaffold
通过采用香港建筑工地仍沿用的竹质脚手架去构建整个空间和陈列体系,以近似的元素去统合视觉系统,以统一的视觉概念统筹不同品牌盒子之间的差异。
▼竹质脚手架单元,bamboo scaffold unit©Ruhaus Studio
By employing bamboo scaffolding commonly used in Hong Kong construction sites to build the entire spatial and display system, we aim to unify the visual system with similar elements, and manage the differences between various brand boxes under a cohesive visual concept.
▼竹质脚手架,bamboo scaffolding © Sanif
▼竹质脚手架细部,bamboo scaffolding details© Sanif
利旧 Reutilization 最大限度的利用旧有的设备设施,通过材料更替和装置的附着,去制造新的视觉体验。节省施工和材料成本的同时,也避免了拆除和清理垃圾带来的时间损耗。将 Oasiz 深业快闪店的黑色木板拆除,重新利用作为现有竹架的搁板。
Maximizing the use of existing equipment and facilities, we create new visual experiences through material replacement and the attachment of new installations. This approach saves construction and material costs while also avoiding the time loss associated with demolition and waste removal. The black wooden boards from the Oasiz ShenYe pop-up store were removed and reused as shelves for the new bamboo scaffolding.
▼材料更替,material replacement© Sanif
▼一瞥,a glimpse© Sanif
▼桌子,desk© Sanif
高效搭建 Efficient Setup 通过游牧系列项目不断打磨出的更成熟和高效的落地流程,七天便完成整个场地的更替和道具搭建工作。
Through the more refined and efficient implementation processes honed by the Nomadic Series projects, the entire site replacement and prop setup were completed in just seven days.
▼展陈空间,display space© Sanif
关于游牧系列
About Nomad Series
游牧系列是如室为了应对消费主义破灭而开发的设计语言,是如室会持续推进的设计线之一。以先期推进研发,后与品牌共同落地的形式开展项目;通过调整设计程序,以保证设计时间和精度,取得设计质量与施工成本之间的平衡。设计的最大作用并不仅仅是创造商业价值,也不仅仅是包装和风格方面的竞争,而是一种适当的社会变革过程中的元素。永续设计,它不一定是单就产品本身,也可能是一种新的消费模式,从各方面去尽力达到永续循环的目的,这也是我们持续学习和进步的方向。
The nomadic series is a design language developed by Ruhaus Studio in response to the disintegration of consumerism, and it is one of the design paths that Ruhaus Studio will continue to promote. Carry out the project in the form of promoting research and development in advance and then cooperating with the brand. Ensuring the design time and accuracy, we adjusted the design procedure and achieved a balance between design quality and construction cost. The greatest role of design is not to create commercial value, nor is it a competition in trends, but an element in the process of social change. Sustainable design does not necessarily refer to the product itself, but may also be a new consumption pattern. Trying to achieve the goal of sustainable circulation from all aspects, which is also the direction of our continuous learning and progress.
▼细部,details© Sanif
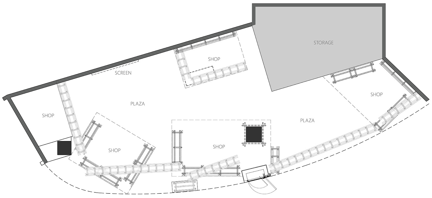
▼平面图,floor plan©Ruhaus Studio
▼立面图,elevation©Ruhaus Studio
项目名称:90 后海汇快闪店
项目类型:零售,展览
设计方:Ruhaus Studio
项目设计:2024
完成年份:2024
设计团队:王艺儒,朱丹丹,李安
项目地址:广东省深圳市后海汇 B1 层
建筑面积:170㎡
摄影版权:Sanif
合作方:色度:谢工
客户:90 Space
材料:阳光板 竹子 利旧刷黑欧松板
Project name: 90 HouHaiHui Pop-up Store
Project type: Retail,Exhibition
Design: Ruhaus Studio
Design year: 2024
Completion Year: 2024
Leader designer & Team: Yiru Wang, Dandan Zhu, An Li
Project location: Floor B1, Houhaihui, Shenzhen, Guangdong Province, China
Gross built area: 170㎡
Photo credit: Sanif
Partner: Se Du: Mr Xie
Clients: 90 Space
Materials: Polycarbonate Sheet, Bamboo, Re-utilized Black Paint Oriented Strand Board
客服
消息
收藏
下载
最近





























