查看完整案例

收藏

下载
Carr 事务所看到了 Collingwood 城市工业基地的潜力,在与一位目光长远的客户的紧密合作下,以本项目推动了商业建筑和室内的可持续性、生命周期以及创新的新方向。Rokeby 街 11 号坐落于不断发展的 Collingwood 地区,设计从分散在当地的工业产业中汲取灵感,采用了严格的可持续性方法。
Seeing the potential of an urban industrial site in Collingwood and working alongside a progressive client, Carr has designed a project that pushes in a new direction of sustainability, longevity and innovation in commercial architecture and interiors. Set within the ever-evolving pocket of Collingwood, 116 Rokeby by Carr takes cues from the fragmented industrial materiality of Collingwood with a rigorous approach to sustainability.
▼项目概览,overall of the project© Rory Gardiner
坚实的建筑形式与丰富的肌理塑造了建筑的外观印象,立面彰显出规律重复的建筑语言,进而营造出统一的、由内而外的整体印象。开发商,作为本项目名义上的领导者,既扮演了业主的角色同时又是建造者。他们对设计创新和可持续发展的热情,高度影响了建筑形式和材料的选择,同时促使建筑以一系列被动生态策略融入到周围环境中。
▼分析图,analysis diagram© Carr
The form is robust and tactile, expressing strong architectural repetition on the façade while bringing a holistic, inside-out approach. The developer – Figurehead – is both the client and builder. Through their passion for longevity in design innovation and sustainability, the project is robust in form and materiality while being imbued with extensive environmental passive measures.
▼项目与周边环境,
the project and surrounding environment© Rory Gardiner
该设计旨在创造一个“呼吸空间”,这代表了我们对未来办公室的愿景。它建立在塑造空间的愿望之上,将丰富的自然光、可控的新鲜空气、空间适应性和环境可持续性的基本原则整合在一个强大的建筑形式中。在建筑方面,设计通过相似的比例、节奏、材料和重复性表达,使塔楼和裙楼形式响应场地的气候条件,同时,以巧妙的施工方法,为建筑赋予了丰富的肌理触感。
The design is conceived to create a ‘breathing space’, which represents our vision for this future office. It is founded on the desire to shape spaces that harness the fundamental characteristics of abundant natural light, controlled fresh air, adaptability in space, and environmental sustainability – all set within a strong built form. Architecturally, the tower and podium forms of the building respond to the climatic conditions of the site, which are expressed through similar proportions, rhythm, materiality and repetition in the design. Through the construction methodology, there is a tactile sensibility that comes through in this building.
▼街道视角,street view© Rory Gardiner
建筑的东西立面呈现出强大的形式感,呼应了 Collingwood 市碎片化的城市肌理和工业色调,旨在以良好的热工性能保持室内的体感舒适,同时保证良好的景观视野与自然采光。建筑的北立面采用了双层表皮的设计,具有大面积的可打开的通透玻璃幕墙,体现出了建筑在环境可持续性方面的创新。双层立面也作为调节建筑内部环境的元素,以控制热量的增加、日光、眩光和空气质量,同时为楼层引入自然通风。
The architectural form is strong on the western and eastern facades, akin to the fragmented and industrial palette of Collingwood, and designed to combat heat gain while maintaining views and daylight. This is complemented by a diaphanous, operable double-skin façade to the north, where environmental sustainability innovation is the focus. The double-skin façade is also used as an architectural device to control heat gain, daylight, glare and air quality while naturally ventilating the floor plates.
▼西立面,west facade© Rory Gardiner
▼近景,closer view© Rory Gardiner
南立面作为原住民艺术的画布,旨在向 Rokeby 街 11 好所在土地的传统所有者——Wurundjeri Woi Wurrung 人致敬。形式与材料的巧妙结合,使触觉超越了视觉。
The southern façade acts as a canvas for a commissioned First Nations artwork that respectfully acknowledges the Traditional Owners of the land on which 116 Rokeby sits, the Wurundjeri Woi Wurrung people. Arriving at a more holistic approach with form and materiality working in tandem, the tactile surpasses the visual.
▼裙楼,podium©Rory Gardiner
▼街道近景,closer street view© Rory Gardiner
Rokeby 街 11 号以可持续发展为核心,获得了澳大利亚政府“气候活跃碳中和”的认证,拥有 WELL 白金认证和 5.5 NABERS 能源评级。该项目采用了被动的建筑策略和构造方法,包括双层立面、高效照明、智能控制、光伏发电、景观美化以及全电动建筑技术。所有这些策略都确保了空间对最终使用者的福祉产生积极影响。
With a core focus on sustainability, 116 Rokeby has ’Climate Active Carbon Neutral’ status, which is certified by the Australian Government, with a Platinum WELL Certification and 5.5 NABERS Energy Rating. The project incorporates a passive approach to the building massing and articulation, a double skin façade, efficient lighting, smart controls, photovoltaics, significant landscaping, and an all-electric building approach. All these initiatives ensure the spaces positively impact the well-being of the end user.
▼北立面细部,details of the north facade© Rory Gardiner
▼双层立面系统,double-facade system© Rory Gardiner
建筑中遍布可操控的设施,使空间具有极高的适应性与灵活性,满足了使用者的不同需求。屋顶空间设有室外会议区,会议区旁是大型公共厨房和供租户使用的可预订灵活空间。建筑底层包含了小型但高度灵活的可租赁零售空间,可回应无论是日间营业还是夜间营业的商家的需求。底层还设有通勤服务设施,包括更衣室、淋浴室、自行车和包裹存放处。
A range of amenities are located throughout the building, adding to the desirability and flexible functionality for the end user. A rooftop space with outdoor meeting areas, alongside a large communal kitchen and bookable flexi-space for tenants. The ground floor includes a small but highly flexible retail tenancy that will have the ability to adapt from day to night. Also situated on the ground floor is an end-of-trip facility housing changing rooms, showers, bicycle and parcel storage.
▼内部概览,overall of interior© Rory Gardiner
▼可滑动开阖的玻璃立面,sliding glass facade© Rory Gardiner
规划的关键旨在确保建筑与 Rokeby 街高度融合,使建筑通透的立面与可观的高度不会破坏 Rokeby 街道景观。合理的规划确保了建筑于街道上的能见度,食品和饮料区采用了可操作可移动的设施,可以在一天中根据不同的用途进行改变,”项目负责人 Stephen McGarry 说道。
“Key to our planning was ensuring the building did not turn its back to Rokeby Street, as such a highly porous ground plane has been created. Rational planning ensures great visibility through the site from the street, with a food and beverage offering to have operable and moveable elements to change throughout the day and for different uses,” says Director Stephen McGarry.
▼细部,details
© Rory Gardiner
将光线和空气引入建筑是设计的关键。底部裙楼中的天井庭院,创造出了一系列的采光井,使自然光线能够渗透到底层空间。景观策略是本项目中另一个重要的考虑因素,由 Carr 事务所与 Eckersley Garden Architecture 合作设计。尽管由于场地的限制,采用深层土壤种植的机会很少,但设计师们还是建议在地面层、裙楼和屋顶层进行重要的景观美化,包括一系列凸起的混凝土花盆、置入式花池以及分层种植方法等。
Bringing light and air throughout the building was a critical factor. Punctuations in the podium slabs create a series of light wells to permeate through to the ground floor spaces. The landscape strategy was another important consideration in this project, working in collaboration with Eckersley Garden Architecture. Despite the site constraints and minimal opportunity for deep soil planting, significant landscaping is proposed for the ground floor, podium, and rooftop levels, with a series of raised concrete planters, integrated seating, and layered planting mix.
▼办公场景,working scenarios© Rory Gardiner
▼细部,details© Rory Gardiner
得益于 Carr 事务所在商业办公空间和公共领域的专业知识,设计理念以使用者的健康和福祉为核心,以充足的采光、自然通风、垂直交通循环、被动式楼板,使整个建筑设施的效率实现了最大化。Rokeby 街 11 号在设计、可持续性和性能方面展现出了深刻的整体方法。“我们的客户非常具有前瞻性,他非常重视设计和建筑创新,是一个理解可持续性对空间体验能够产生巨大价值和影响的人,”Stephen 补充道。
Benefiting from Carr’s expertise in the commercial workplace and public realm, a design approach with a philosophy of health and wellbeing has driven maximisation of daylight, natural ventilation, vertical circulation, floorplate efficiency and whole-of-building amenities. 116 Rokeby has a deeply holistic approach to design, sustainability and performance. “We have a forward-thinking client that believes in innovative design and architecture. One that understands the tremendous values and impact that sustainability can have on how tenants will feel in the space,” adds Stephen.
▼底层平面图,ground floor plan© Carr
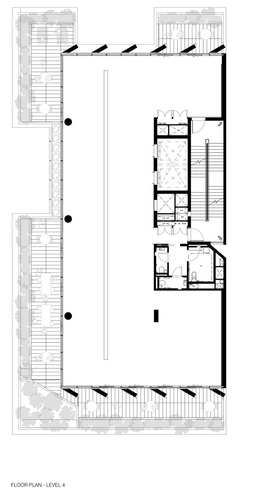
▼四层平面图,floor plan -level 4© Carr
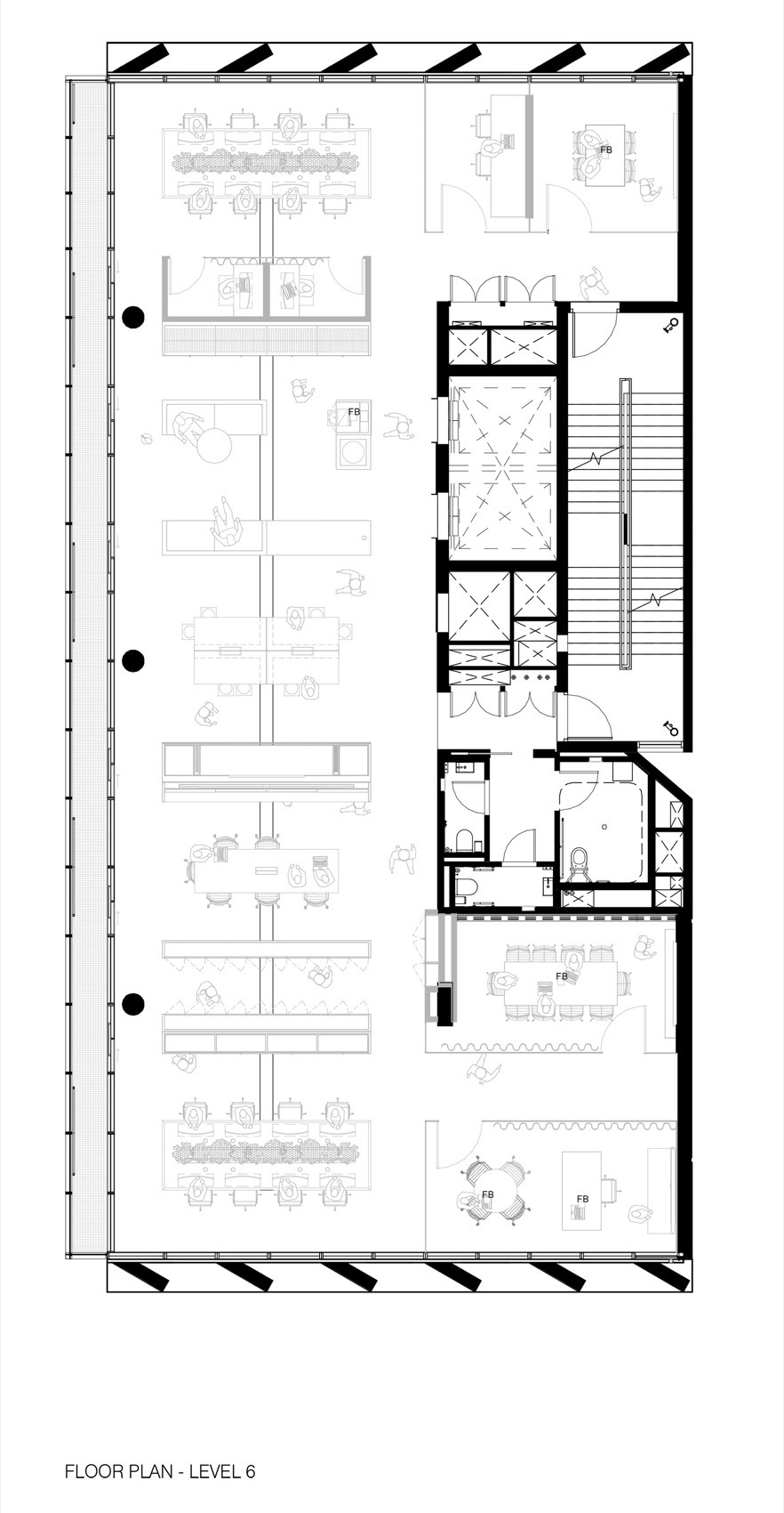
▼六层平面图,floor plan -level 6© Carr
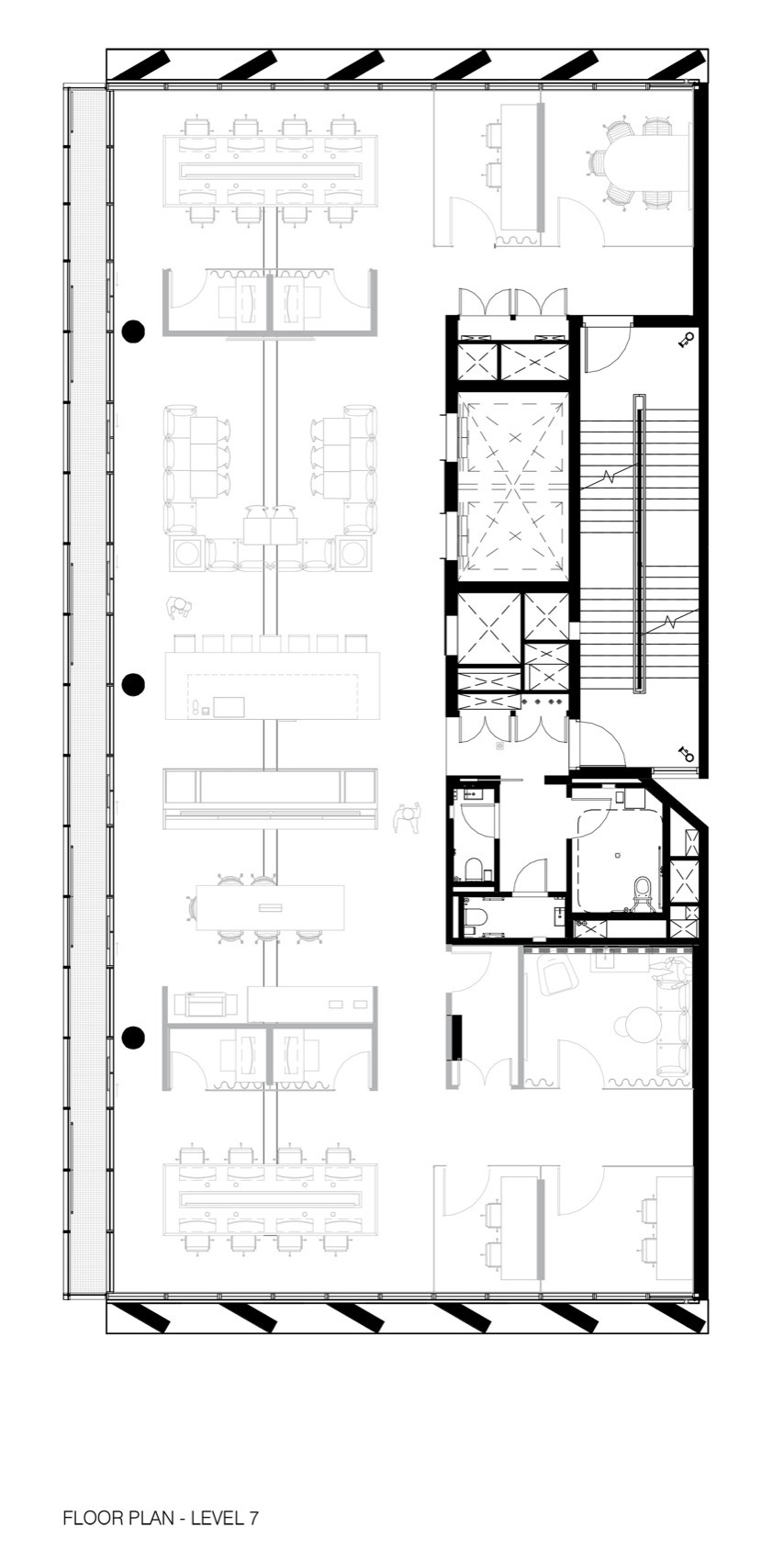
▼七层平面图,floor plan -level 7© Carr
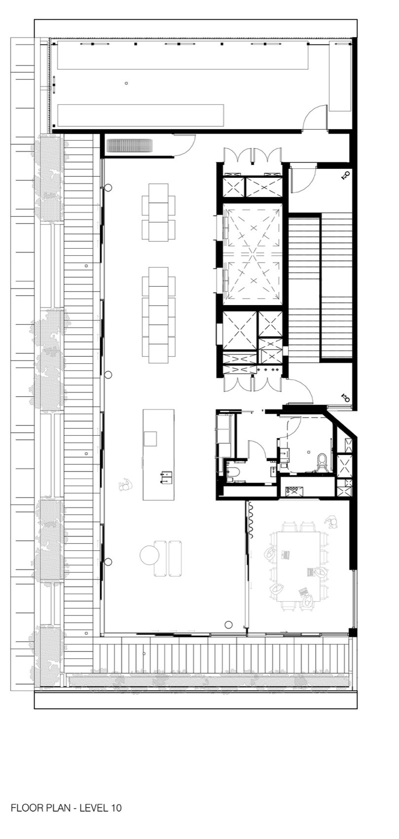
▼十层平面图,floor plan -level 10© Carr
▼剖面图分析图,analysis section© Carr
Details:Client – Figurehead GroupAddress – 116 Rokeby, Collingwood, Melbourne 3066Status – CompletedLevels – Eleven, inclusive of ground floorLandscape – Eckersley Garden ArchitecturePhotography – Rory Gardiner with Colby VexlerCarr team – Stephen McGarry, Chris McCue, Rebecca Trenorden, An Bui, Andrew Curnow, Kyal Erdman, Lauren Gostin, Sarah Barrett, Andrea Giuradei, Linda Wang, Sharon Sclarr
客服
消息
收藏
下载
最近






































