查看完整案例

收藏

下载
作为品牌在济南的首店,业主希望与城市融合的姿态打造一个富有调性的第三空间。济南作为历史名城,新的城市面貌和古朴的历史蕴含交织并存。如何将这个新旧对话的逻辑体现在空间设计里成为本案的切入点。
空间策略
Spatial Strategy
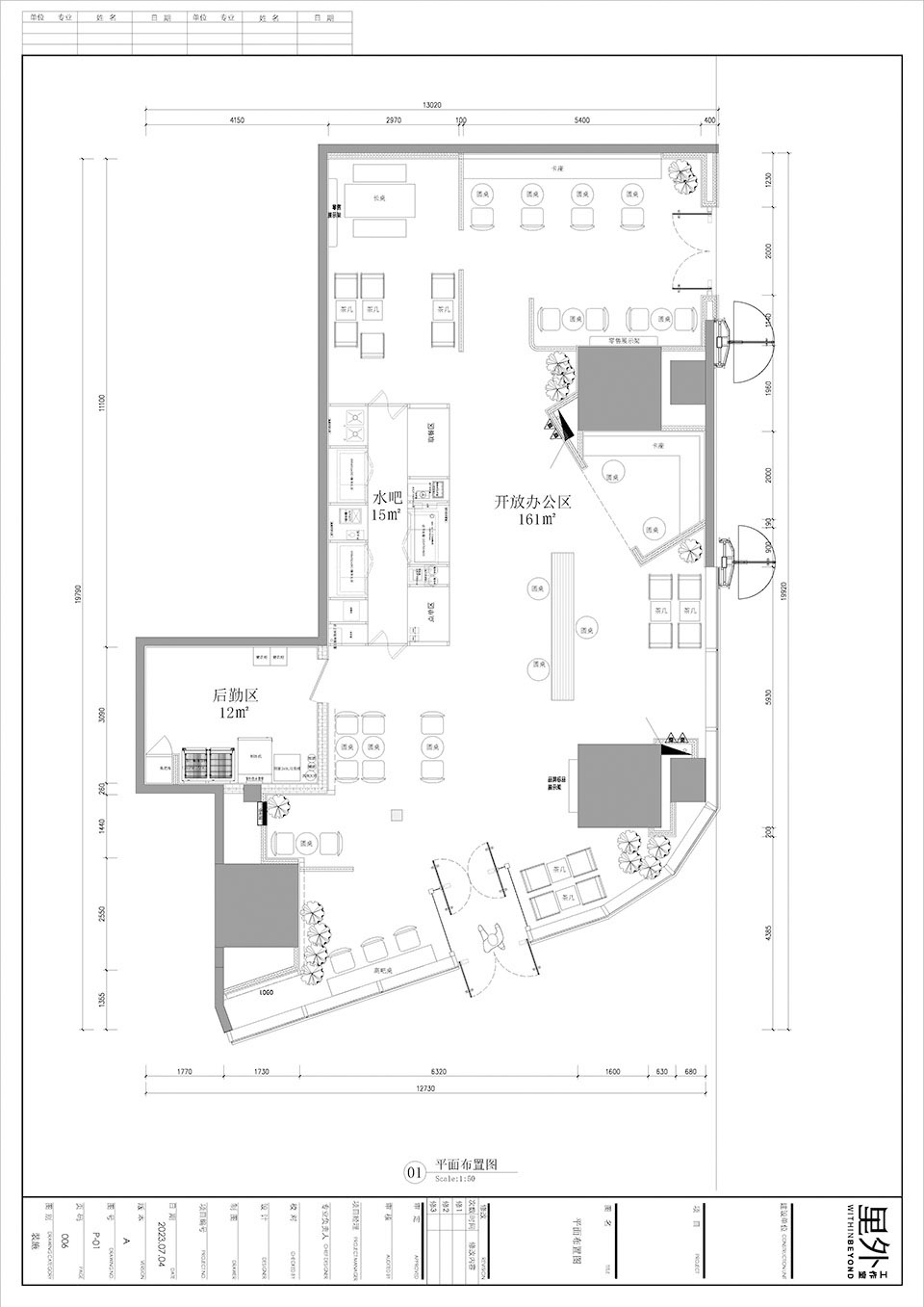
我们将城郭和街巷空间抽象为极简的几何形体,结合使用功能错落有致的布置在空中和地面形成吧台上方的巨型地标体量,对街道形成强烈的展示性,方向感极强的巨型悬浮体块还为顾客提供了空间导视性,增强室内流线的清晰度。店铺的纵深较大,为丰富层次感,局部设置了半围合“房屋”体量,提供具有一定私密性的空间,并从图底关系层面平衡整体构图。收放的空间尺度、地标与图底的对话关系,大大增强了空间体验的丰富度。
▼空间策略
▼吧台上方的巨型地标体量
▼将城郭和街巷空间抽象为极简的几何形体
▼方向感极强的巨型悬浮体块
新旧秩序的并置
Symbiosis of Old and New Orders
原始场地的建筑结构存在感较强:横亘于空间里的两个巨大的混凝土柱和高挑的混凝土楼板。我们在旧的空间秩序基础上引入了新的梁柱系统,强化了原始的轴网关系. 同时落地的木柱形成了具有方向性的序列感和围合感,结合家具与绿植,在大空间里形成了微城市的氛围。在空中,新的木梁将原始的混凝土柱子和新置入的巨型体量串联在一起,并通过局部打开的吊顶连接到裸露的混凝土楼板,形成新旧交织的图景。
▼引入新的梁柱系统
▼新与旧之间的结构关系
▼形成微城市的氛围
▼马赛克砖与木质对话
材质与风格
Materials and Style
材质选用了克制的黑色马赛克砖与温暖的的木质对话,契合济南沉稳古朴的城市性格,点缀原始的混凝土裸筑,增加松弛感的氛围。形体语言则多为简约大气的直线和方正几何体量,在室内空间形成易解读的微城市。
▼细部
▼平面
▼立面
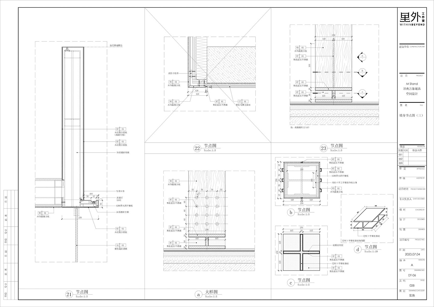
▼墙身节点图
▼立柱细部
项目名称: :Mstand济南万象城店
项目完成年份: 2023.10
建筑面积:181平米
设计机构: WBS里外工作室
事务所简称: WBS里外工作室
事务所网站:
联络人姓名:张哲
公司所在地:北京
主创建筑师: 张哲
项目地址: 济南万象城
项目参与者
委托方(公司名称):Mstand
主创设计师(人名):张哲
设计团队(人名): 傅诗,Isacc Liam,张义辉
视觉信息
摄影师: UKstudio
如需委托
WBS里外工作室
为
很棒的设计
:66666666666
客服
消息
收藏
下载
最近













































