查看完整案例

收藏

下载
项目是坐落于阿那亚·三亚社区的餐饮配套建筑,由四葉主理。作为建筑师郑东贤和阿那亚合作的第二个日料餐厅设计,其与森海·隐泉(阿那亚·北戴河,2018)都讨论了建筑空间与场地上树林环境的互动。在一定关联性和延续性的情况下,两座建筑所处场地环境的差异则塑造出具不同体验的建筑空间。
▼建筑鸟瞰
从环境出发 Begin with environment
项目场地处于三亚南丁岭三面环山北向的山坡,向北可眺望开阔的草地和远处的群峦,是气候宜人的热带海岛上一片静谧之处。2022 年春,设计团队初勘现场,选址原定于社区建设最高的山腰处,基于风景视野的考虑,建筑体量呈东西向线型布局,一面向北望远山,一面与南侧的山体环境接触。在对现场周边地形的深入考察过程中,附近一处山谷下方凹进山体的平坦地块引起设计团队的注意,经与甲方讨论,共同决定更换场地于新址。
▼设计手稿-最初场地
▼建筑屋顶掩映在山林中
▼深入山谷的建筑
▼山林中的建筑
随着环境的变化,海拔的降低,新的方案为保证面北的开阔视野,将就餐空间整体抬高,设为两层,建筑主入口和厨房位于首层。建筑体量则与南侧山谷地形结合,从线型布局改为 T 型布局,创造与环境接触的丰富界面形式。
▼建筑入口隐在树林间
▼建筑入口小径
沿着隐藏的路径 Along the route of hide,建筑体量与自然环境相互渗透交错,从三面被山林围合,屋面坡度与山体坡度相同,呈平行状隐藏在树林中,与周边树木高度相同。勘场过程中发现的山谷通过建筑和地形的配合设计被隐藏,再通过仪式感的动线设置让室内与环境相关联,当人进入室内,步上楼梯,将发现天然的山谷崖壁蓦然进入眼帘。同样的手法和体验可见于森海·隐泉,建筑先以横向遮挡槐树林,人经由几番转折的室内外路径,玻璃门开启的一刹才会发现置身于槐树林中的惊喜。
▼建筑日照与通风示意图
▼从东侧看向山谷就餐区
▼核心区接待空间
▼通往二层的楼梯间
▼渐入眼帘的山谷崖壁
走向反规则的路口
Towards anti-regulation
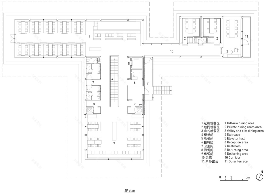
建筑二层包括四个空间,北侧的远山就餐区,东侧的包间就餐区,南侧的山谷就餐区,以及连接三个空间的核心区,其承担服务、接待、楼梯间、电梯间、卫生间等功能,在结构上则支撑着整个建筑主体。核心区以具稳定感的深色粗糙肌理区别于就餐区轻盈柔和的木材肌理。
▼楼梯上回望北侧远山就餐区
▼远山就餐区
▼远山就餐区向东视角
▼室外的林木高及屋檐
▼就餐区细部
被山野环合的就餐区在空间处理上呼应自然既随机又有规律的特征,吊顶打破规则性的面板布置,以随机的宽度平衡空间的理性表达。项目从建筑室内景观一体化的设计出发,对标识、灯光、软装、花艺进行了整体控制,统一了空间调性。
▼通往包间区的走廊
▼一览三亚的山景
▼东侧包间区走廊
▼包间
▼包间一隅
抵达可感知的风景
Touch the vistas
场地中的惊喜山谷随着雨季的到来会形成瀑布景观,和北侧山景一旷远,一亲和,相得益彰。建筑的景观是周围山体植被的延伸,修整原杂乱的灌木,增加适配建筑高度的黄花梨,新的景观柔和了原山地的自然粗犷。设计将项目地山石处理成板状石、块石草地、景石、汀步,搭配本地植被,创造细腻的景观感知,深入山谷体量东侧的室外露台方便人们进入体验。大的屋面挑檐则为避免夏日北面日照;双层屋顶起到通风隔热的作用,充分考虑当地气候特征。
▼崖壁景观
▼葱郁山谷围合的餐区
▼山谷就餐区一角
▼可进入的建筑室外景观
▼块石和本地植被延续质朴的自然环境
项目通过对环境场地的充分解读与回应,隐藏的手法,反规则的策略,创造体验风景的建筑,自然地存在、历经时间积淀的空间。
▼二层平面图
项目名称:三亚山谷餐厅(森海·四葉)
项目地点:三亚市吉阳区阿那亚社区森海路 20 号
建筑面积:703㎡
委托单位:阿那亚
设计单位:PLAT ASIA
设计范围:建筑,室内,景观,软装,标识
主持建筑师:郑东贤
项目建筑师:练敬韵,陈亦奕
方案及深化团队:刘国伟,廖苑余,张小战(景观),张嘉琪(驻场设计师)
建筑施工图设计:北京中天元工程设计有限责任公司
室内施工图设计:山东一卜川建筑装饰设计有限公司
花艺设计:关越
灯光顾问:朱海燕
软装落地:法泰世纪(北京)装饰设计有限公司
项目摄影:存在建筑-建筑摄影
建筑材料:混凝土,钢,玻璃,铝镁锰板,铝方通,金属格栅,石材,钢板
室内材料:木饰面,微水泥,榻榻米
景观材料:中国黑砾石,本地山石,黑色玄武岩老石板,中国黑景石,天然云石板
植物列表:铁冬青,黄花梨,文定果,山毛豆,山黄麻,南天竹,姬岩垂草,台湾草,大叶油草;蕨类植物
设计时间:2022.3-2022.8
建设时间:2022.9-2023.12
如需委托
PLAT ASIA
Great, a big thumbs up to you!
666
三亚山谷餐厅(森海·四葉) | PLAT ASIA
66666666666
客服
消息
收藏
下载
最近










































