查看完整案例

收藏

下载
乌拉拉是一位青年作家,而她的先生则是理工金融业,生性浪漫与处之泰然的结合,居然摩擦出了火花。而之后,他们拥有一个五猫两狗的温暖大家庭,夫妻二人的日常生活像他们的精神世界一样丰富而有内涵:浓厚的烟火气息,松弛的桃源氛围,都是专属他们的私人印记。设计师通过空间风格元素的把控,直观地将概念、思想展现出来,让家成为他们作品之外的表达媒介。
艺术
是生活的一部分,是日常的进阶
开放的公共空间不只是格局的打开,更是生活方式的拓展。这里是业主夫妇的私人图书馆、会客厅、宠物的乐园。
书架占据着空间的中心地位,壁炉、台阶都以此为中心展开,形成家庭图书馆。空间融入拱门元素,浪漫优雅,将书卷气和艺术气质完美融合。一组沙发相对摆放,拉近了人与人之间的距离,亲和力油然而生。
书架的旁边是温暖的壁炉,不对称的家具松弛而自由。炉火,书籍,家人,宠物,文艺的气质和生活的气息在这里交汇,带来精神的放松和享受,将这里打造成空间里最为惬意的一角。
不同形式的落地柜的设计都独具特色,将业主的藏品和日常用品完美地储藏或展示出来,组合出浓厚的生活气息,融入了随性不羁的艺术气质,同时将墙体的上半部分腾出来,设计成猫猫的运动空间。猫隧道以树枝的形态呈现,为空间增添自然气息和无限趣味。
屏风作为一件充满时间和文化印记的老物件,既丰富了空间的层次结构,为居住者分隔出一片私密领域,也丰富了空间的内涵和意义,营造出专属这个家的艺术气质。
复古的钢窗别具格调,连接起两个空间,与客厅形成互动,同时将空间塑造得更多元。吧台隐藏在墙内,随着窗的开关可以转换场景,成为独处或会友的空间。
宽大的台阶与书架实现功能的互相组合,形成一片随性自在的阅读区。书架沿着楼梯延展,演变成为展示艺术画作的置物架。繁复而独特的装饰花纹与字画的气质互相融合,将这里塑造成一条艺术之廊。
双开门营造出无可取代的仪式感。在玻璃窗和格子窗帘的修饰下,实木的厚重感被冲淡,卧室的封闭感也随之消散。卧室的底色干净而温暖,留白适度,灯光的暖意与之互相融合,让人沉浸在空间的慵懒舒适之中。
空间从形式到细节,塑造独具格调的精致。实木、玻璃、金属辅以考究的设计和工艺,材质自身的精致和形态的高雅相得益彰。
卧室同样是居住者与宠物共享悠然时光的场域。阳台拥有温暖明亮的光线,是猫猫狗狗钟爱的地方,设计师将阳台的一部分用作它们的活动区。
百叶帘掌控光线的变化,碎花窗帘装点空间的田园氛围,猫窝精致华丽,自然地融入其中。人与宠物都可以享受舒适的氛围和雅致的情调。
衣帽间的拱门以彩绘玻璃窗为灵感,既有浓郁的文化底蕴和艺术气息,也为空间呈上一场视觉的盛宴。光线穿过玻璃时形成独特的光影变化,生动绚丽,独具视觉张力。
空间内部温馨舒适,吊灯的结构将温暖的灯光幻化成美妙的光晕,如水般温柔;各种元素互相呼应,纷繁而不杂冗,和谐自洽。
谷仓门作为两个空间的分隔,演绎浓厚的美式风情,同时装饰出卧室的艺术性。折叠设计的镜子赋予空间动态的效果,灵动有趣,纤细的金属线条极具雅致气息,将慢节奏的复古情怀注入空间。
实木与布艺构建出空间舒适的底色,床帐装饰出应有的仪式感;花卉元素将自然气息引入室内,同时释放旺盛的生命力和生活气息。
负一层平面图
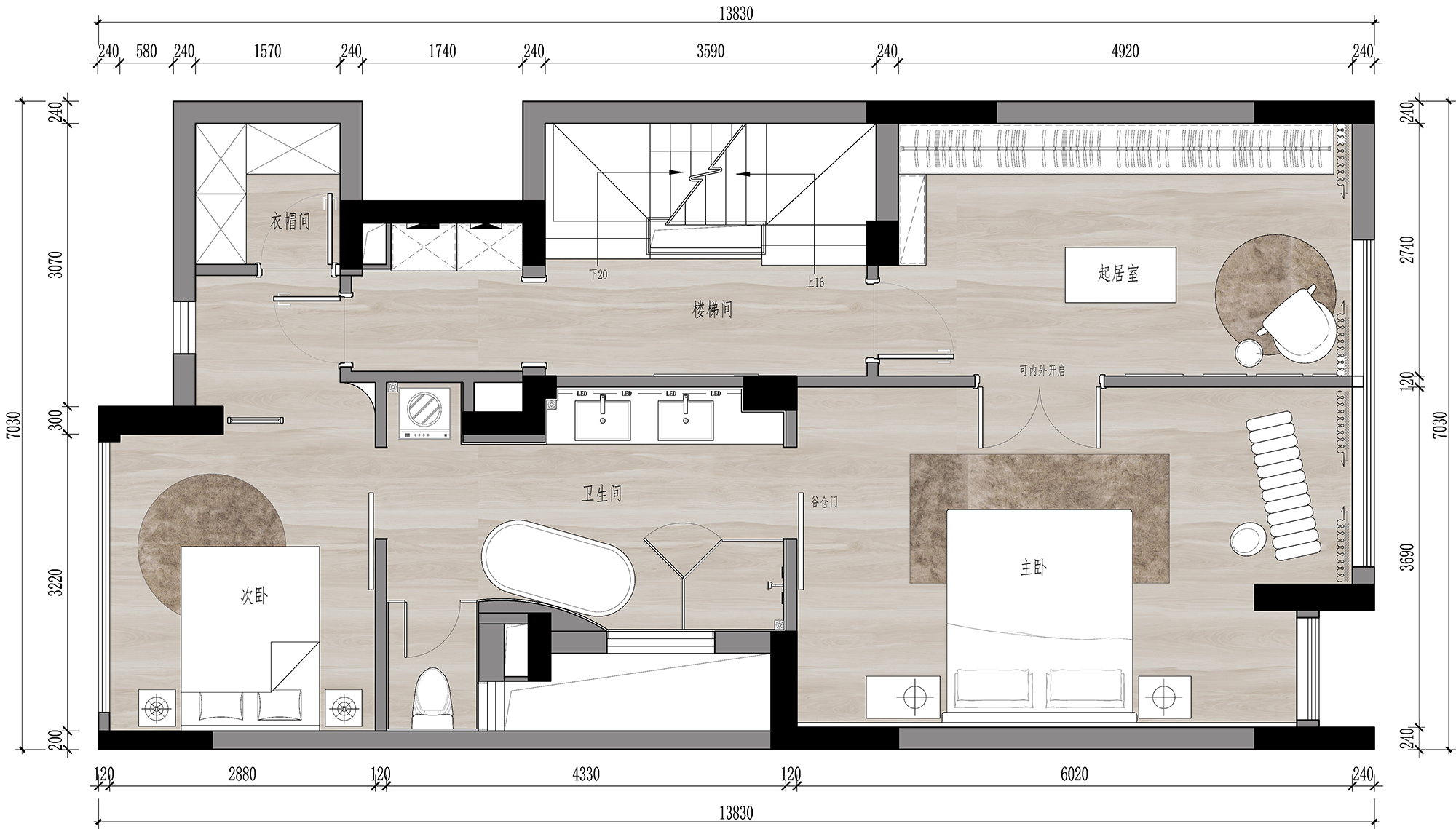
一层平面图
二层平面图
左右滑动查看更多图片
项目名称丨爱与诗篇·大象山舍
项目地址丨江苏·苏州
项目面积丨300㎡
设计公司丨一野设计
主创设计丨刘姝
设计团队丨邱语、刘仁华
开始时间丨2023.02
完工时间丨2023.12
摄影团队丨徐义稳工作室
苏州一野室内设计工程有限公司创立于2006年,是一家专门从事家装、软装、商业空间设计的设计公司。17年来,凭借一批高水准的设计师,以良好的服务独特的经营理念,在苏州及周边地区,乃至全国室内设计行业中赢得了很高的知名度和美誉度。
刘 姝
一野设计主创
代表作品
尚澜湾
上园湾
康帝庄园
万科大家
客服
消息
收藏
下载
最近


























































