查看完整案例

收藏

下载
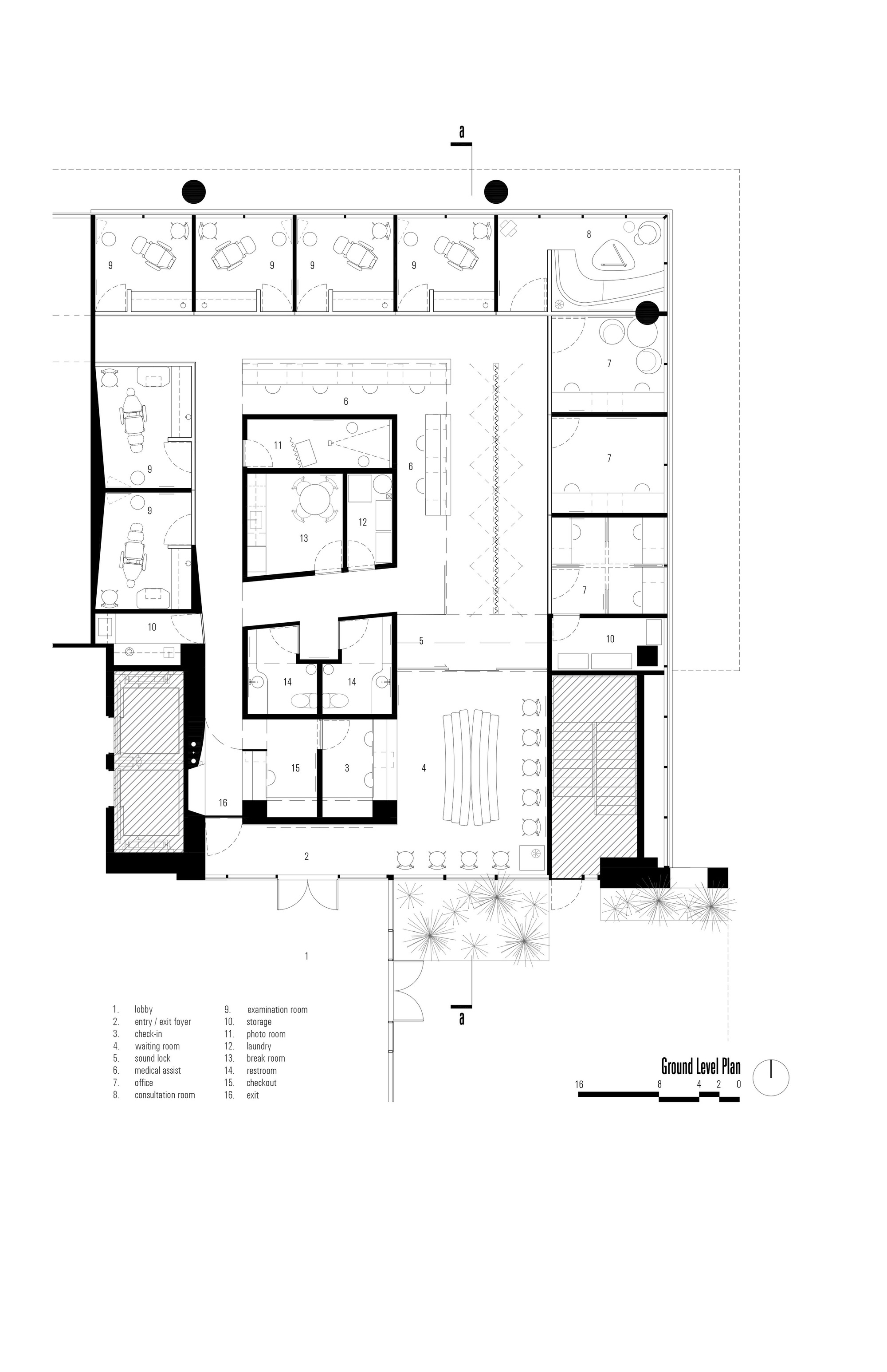
这个 TI 空间旨在让患者感受到光明和希望的氛围。西南乳腺和美容诊所是一家非典型的女性医生诊所,其业务主要集中在乳腺癌患者的乳房重建上。整形外科医生通常是诊断后就诊的第二位医生,通常会有亲人陪伴,并且至少会为患者看病 18-24 个月。
平面图(患者旅程)是一条逆时针循环路线,始终朝着光线方向。平面图、剖面图和材料都最大化并放大了我们首次访问现场时发现的充足光线和体积,从而营造出一种舒适和包容的氛围。声学隐私是绝对的,私人/公共空间的语音清晰度也是如此。4M/13' 高的部分最大限度地利用了给定的体积,将充足的外围光线引导到办公室/咨询室/检查室,并通过 5' 高玻璃天窗进一步向内引导到带有 Med Assist 工作区的循环路线上。
坚固的 8 英尺高 ¼ 英寸钢板基座环绕着外围私人空间,并结合了隔音门和倾斜玻璃天窗,以减少公共/私人空间的声学混响。浮动彩色隔音帘将初次就诊/办公室流通与后续就诊分开,将“一名妇女和她的支持小组”与医生之间的初步咨询引导到私人角落咨询室。
平面图的中心是支持空间,前面是一道采光墙。白色中性色调呈现出自然光不断变化的色彩,并通过硬装和软装(声学)家具(包括天花板灯和精心策划的 ART 程序)以俏皮的方式强调了这一点。白色也是为女性患者提供的黑色丝绸长袍的中性背景。这幅图形也成为门的图形。SWBA 的室内设计选择延伸/放大光线(颜色),让每位患者在焕发活力的氛围中度过旅程。
项目设计:Wendell Burnette Architects
项目面积: 3240 ft²
项目年份:2022
项目摄影:Bill Timmerman, Jason Roehner
供应商: Dyson, Electric Mirror, Kohler, LX Hausys, MTI, Seiho
主承包商:Hardison/Downey Construction
MEP Engineers:Energy Systems Design
Lighting Designers:Creative Designs in Lighting
设计团队: Wendell Burnette, Brandan Siebrecht ((Design Lead), Jared Abraham, Abdulaziz Alghamdi
Acoustical Engineer: Acoustical Consulting Services
Graphic 设计师: Pinpoint Strategic Communications
项目成市: Phoenix
项目国家: United States
设计师:Wendell Burnette Architects
语言:英语
客服
消息
收藏
下载
最近




























