查看完整案例

收藏

下载
医院, 康乐设施, 更新项目, Taipei City, 中国台湾
建筑设计:Wooyo Architecture
面积:3400 .2501349m²
项目年份:2019
摄影师: YHLAA
主创建筑师:Hom Liou
设计师:Hsueh Chih Chang, Forrest Chiang, Jadan Tang
City:Taipei City
Country:中国台湾
“向外看的人做着梦,向内看的人醒着” - 榮格
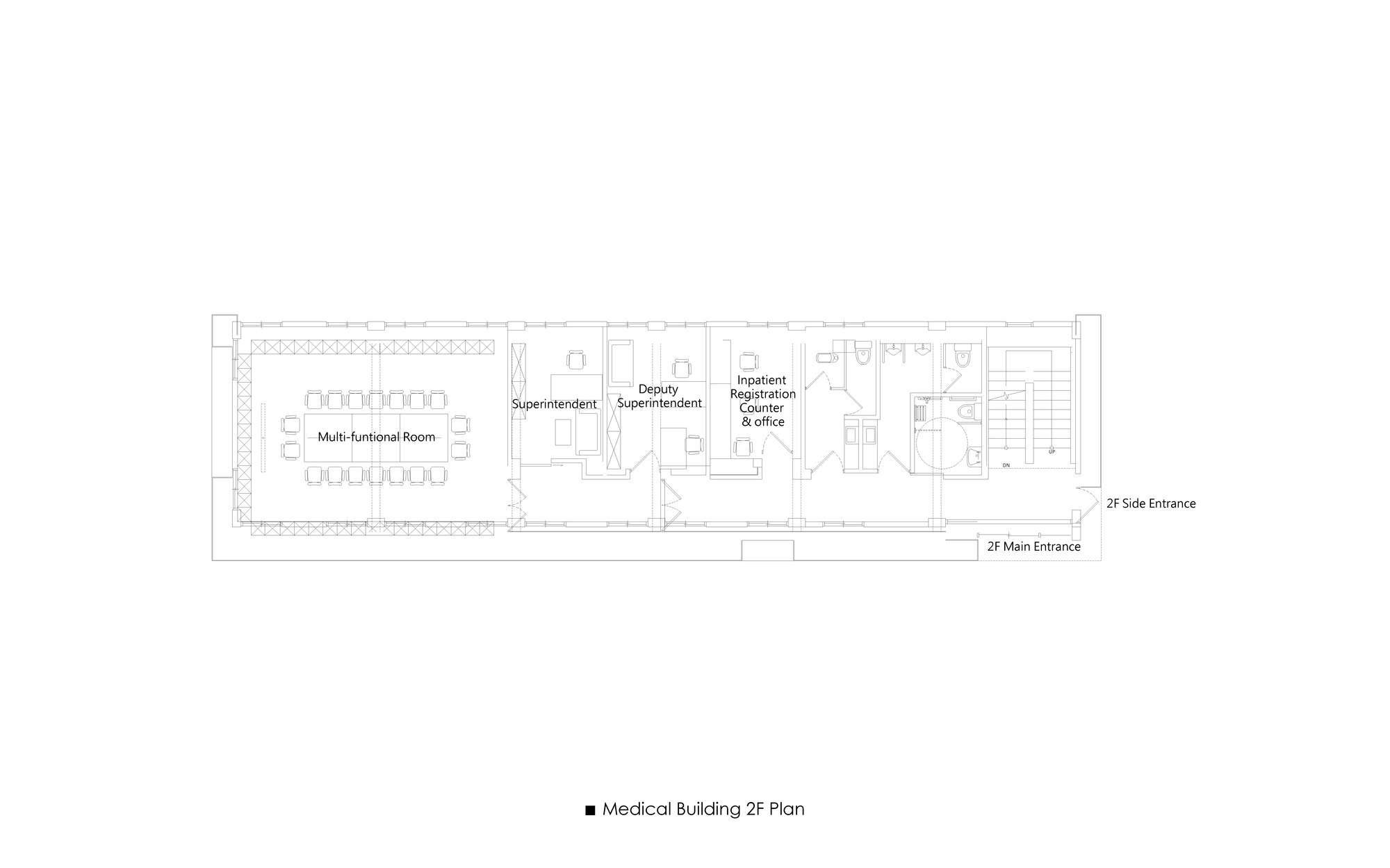
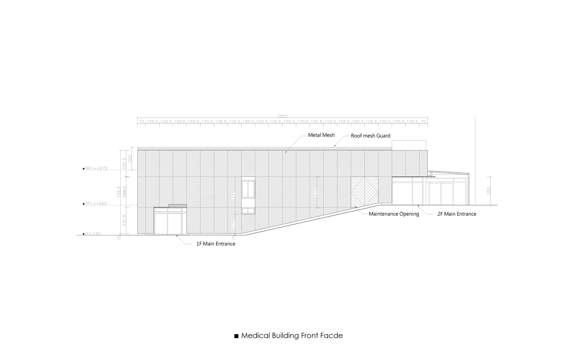
现有的神经精神医院位于一个斜坡上。在外面,入口需要新的控制门和残障通道。由于相邻的四层高挡土墙,医疗大楼缺乏足够的日照。由于缺乏预算,建筑物被无法更改位置的机械管道覆盖。在内部,内部需要重新设计以适应新医疗服务的需求。
作为设计师,我们希望重新审视该研究所的形象,重建医务人员与患者之间的关系,希望以现代医学的观点重新诠释神经精神病学,并从心理学层面(精神层面?)提升设计感。
首先,我们将门和安全柱向后移。添加一个新的有屋顶的废物处理空间,并与相邻的存储设施共享空间。重新设计医疗大楼前的开放区域,延长车道,减小坡度。适应S形无障碍的环形绿色通道,并种植高大的树木,以减小挡土墙的视觉冲击。
然后,我们去除了医疗大楼的屋檐,并在距现有墙壁60cm处添加一层金属网。在覆盖了旧的管道并提供了足够的防雨保护之外,同时金属丝网使空气流动并使光线反射到内部。旧的墙壁和新的金属网形成了建筑物的新表皮,它定义了新与旧,外部与内部,并且在白天和夜晚都呈现出不同的外观。
景观是有机的。建筑墙体得到简化。内部是对几何和双重性的诠释。负空间提供空间,实体是存储空间和家具。物体之间似乎是独立且分散的。尽管功能可能有所不同,但有些可能具有相同的形状。例如安全柱和接待处柜台都有着相同的圆柱形状。相同的方法应用于精神病院的内部。
相似与现代神经精神病学的概念相呼应,医院的半透明表皮充当了内部和外部之间的过滤器/接受器,使景观与内部几何形状融为一体。身体是受体,大脑是编辑器。零碎的信息会被接收,解码和编辑以构成现实。相反,量子物理学声称外在现实是内在意识的实现。医学科学原理定义的创伤性大脑是无法对现实做出反应的大脑,如果没有明确定义什么是绝对现实。也许正常的人和病人一样都在做梦。区别两者的不是病症,而是对外部含义的固执。
译者:沈昉旻
项目完工照片 | Finished Photos
设计师:Wooyo Architecture
分类:医院
语言:简体中文
客服
消息
收藏
下载
最近


























