创作上传
VIP
收藏下载
登录 | 注册有礼
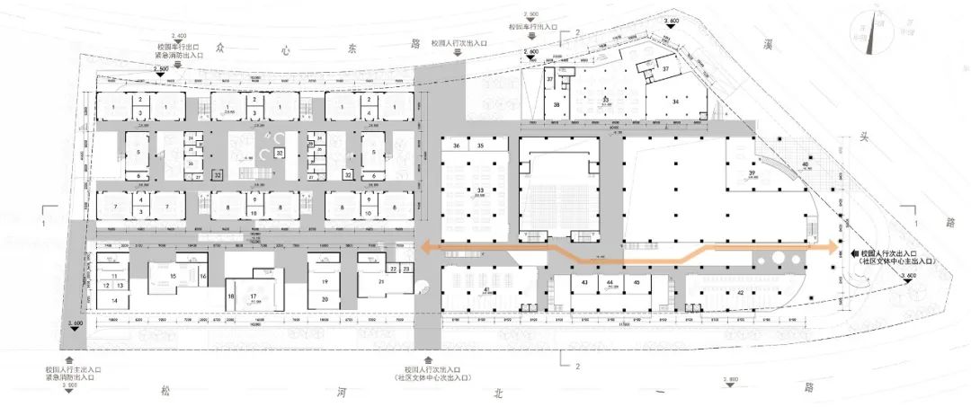
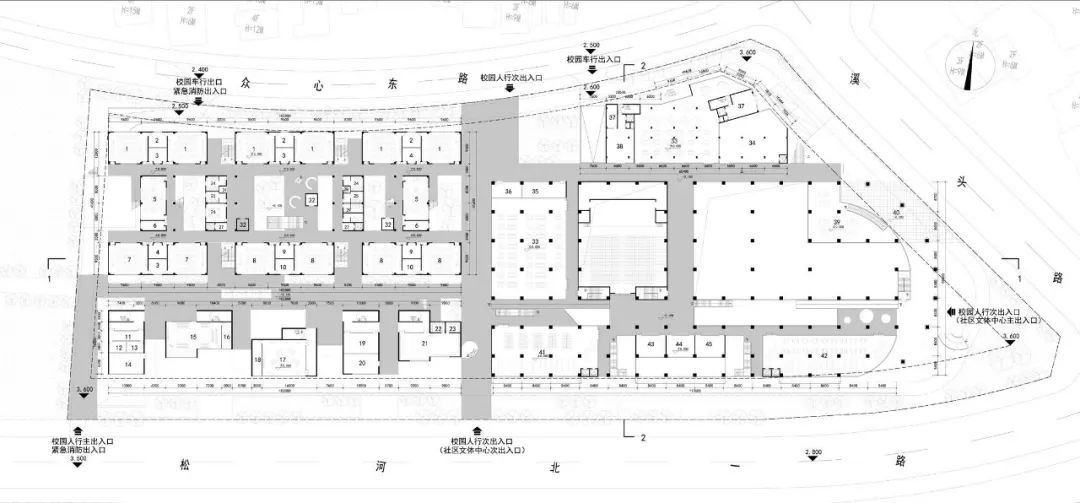
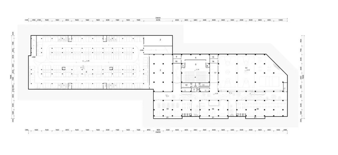
深圳松岗街道松岗商业中心城市更新九年一贯制学校项目丨中国深圳丨立方设计
2024/07/05 10:58:53
查看完整案例
微信扫一扫
收藏
下载
分享
你可能还喜欢
换一换
诺德布罗综合学生公寓
融合校园环境的 Barnato Hall Addition Phase 1 设计
南非 Mpumalanga 大学融合自然景观的学生公寓设计
苏黎世 ETH 学生公寓——创新共享空间设计
热带校园绿色运动馆——Koffi & Diabaté Architectes 设计
博伊西州立大学视觉艺术中心
招商蛇口·臻城幼儿园丨中国深圳丨深圳市库博建筑设计事务所有限公司
超级公园,十字共生丨中国深圳丨CUBE立方设计
客服
消息
收藏
下载
最近