查看完整案例


收藏

下载
房子坐落在一条主要街道上,这条街道位于一个被大西洋包围的小渔村——科鲁布多。它位于西班牙西北部大西洋海岸的一个大型保护海湾的北部边缘,太阳在这里投下壮丽的港口景色,背景是海洋。与沿着海湾的其他建筑不同,这座房子背靠大海,其设计旨在充分利用其地理位置所提供的景观视野,并将所有室内空间朝向海洋进行布局。
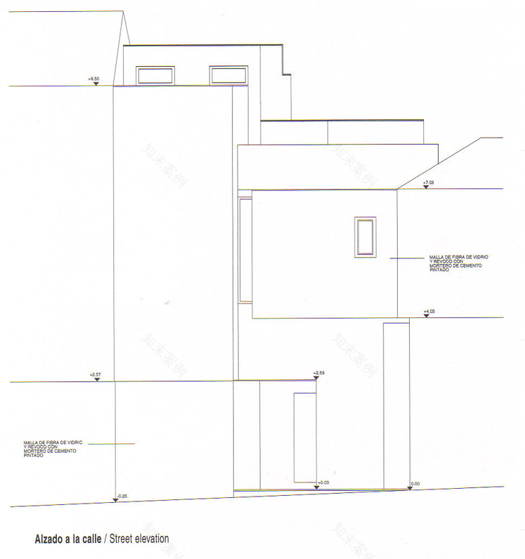
考虑到这一点,科鲁布多建筑群的 eclectic collection 呈现出明显的城镇特征——一条狭窄的建筑带,尽管由高度和几何形状各不相同的房屋组成,但仍然呈现一种统一和坚固的排列方式。引入了一种新型的房屋结构——具有不同隐私考虑的房屋,这些房屋需要在其墙壁内找到自己的位置。因此,在考虑了房屋的高度、体积以及与邻近房屋的关系之后,该房屋的设计摒弃了传统的连续性,而是建立在坚固的石基和混凝土基础之上,其上层部分,如同邻近的房屋一样,点缀着小窗户。置于这两个条件之间,一个巨大的通风口,横跨了整个房屋宽度,提供了涵盖海滩和港口的全景视野。
与其抵抗周围的几何环境,房屋反而将其纳入了自己的形式。这种策略在建筑物的街道一侧最为明显,在那里,房屋的轮廓与邻近房屋的轮廓相交,形成了其自身的组合形式。在内部,这一模式在楼梯、卧室和起居区中得到呼应,这些区域根据不同的几何形状进行布局,同时在上层引入了一个私人的、更具组织性的生活空间,其拥有更加有机的轮廓,一个大的封闭式庭院——一个透明的立方体拥抱着海边的视野。从顶部看,房屋清晰地展现了其自身的连续性,与港口其余部分形成了一道保护屏障。随着时间的推移,从远处眺望,房屋的白色外墙可以保持对主港的清晰视野。同时,白色的墙壁也提供了引人注目且新颖的视觉效果。
客服
消息
收藏
下载
最近















