查看完整案例

收藏

下载

翻译
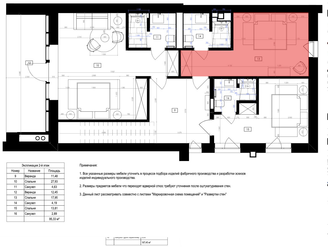
Project of an apartment hotel in Yurievka village
The hotel consists of several blocks of flats.
Each of them has a recreation room, bedrooms with bathroom in the rooms and access to the patio area.
The hotel is designed in a unique "wabi-sabi" style which blends well and harmoniously with the place where the hotel is situated, not far from the Azov Sea.
客服
消息
收藏
下载
最近











