查看完整案例

收藏

下载
基础设施, 公共建筑, 嘉兴, 中国
建筑设计:禾下建筑社
面积:4 .2501349m²
项目年份:2021
摄影师: 谷上文化
厂家:美特幕墙
委托方:嘉兴华章置业
City:嘉兴
Country:中国
潜望镜厕所散落在银杏天鹅湖景区, 一个生态与自然和谐共生、智慧与科技共存、艺术与人文相互交融的未来生活体验区。
设计理念
厕所本该是最私密的空间,我们希望在景区的公共厕所中,使用者更能享受这份与自己独处的时间和空间。这个时代信息是碎片化的,空间也是碎片化的,无论在公共空间还是私人空间,人们都可以借助互联网的虚拟场景让自己在私人领域和公共领域间不断切换。然而真实场景中的开放性与私密性却常常矛盾。这个设计中我们想要在物理空间内解决开放性与私密性之间的矛盾:在风景优美的湖畔上厕所,就应该迎着湖面的微风欣赏美景。
空间
厕所是最接近人体尺度的建筑空间,人在这样一个容器之中,嗅觉、触觉的感官都被放大,藏在镜子下面的通风格栅与顶部的通风孔形成空气的对流,能够在保证私密性的前提下提供更舒适的内部环境。潜望镜的设计拓展了空间的物理边界,可旋转角度的镜面设计让使用者坐着便能欣赏不同角度的景色。
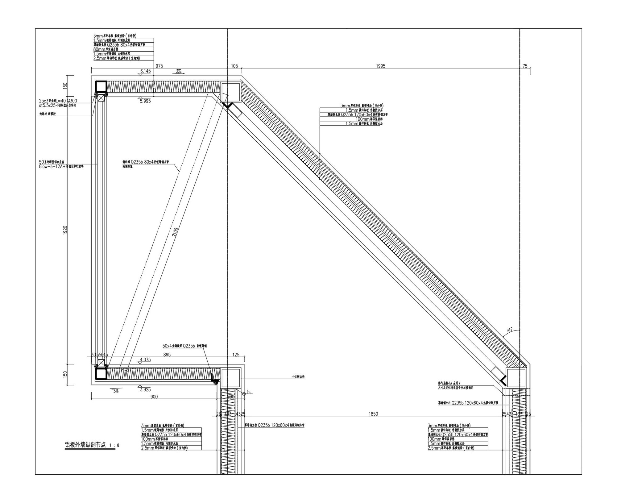
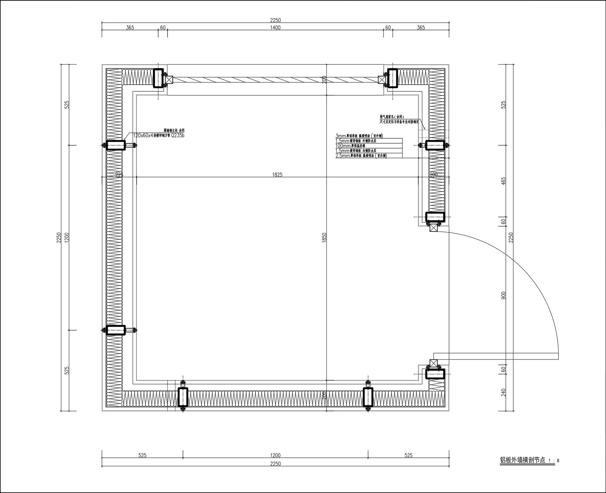
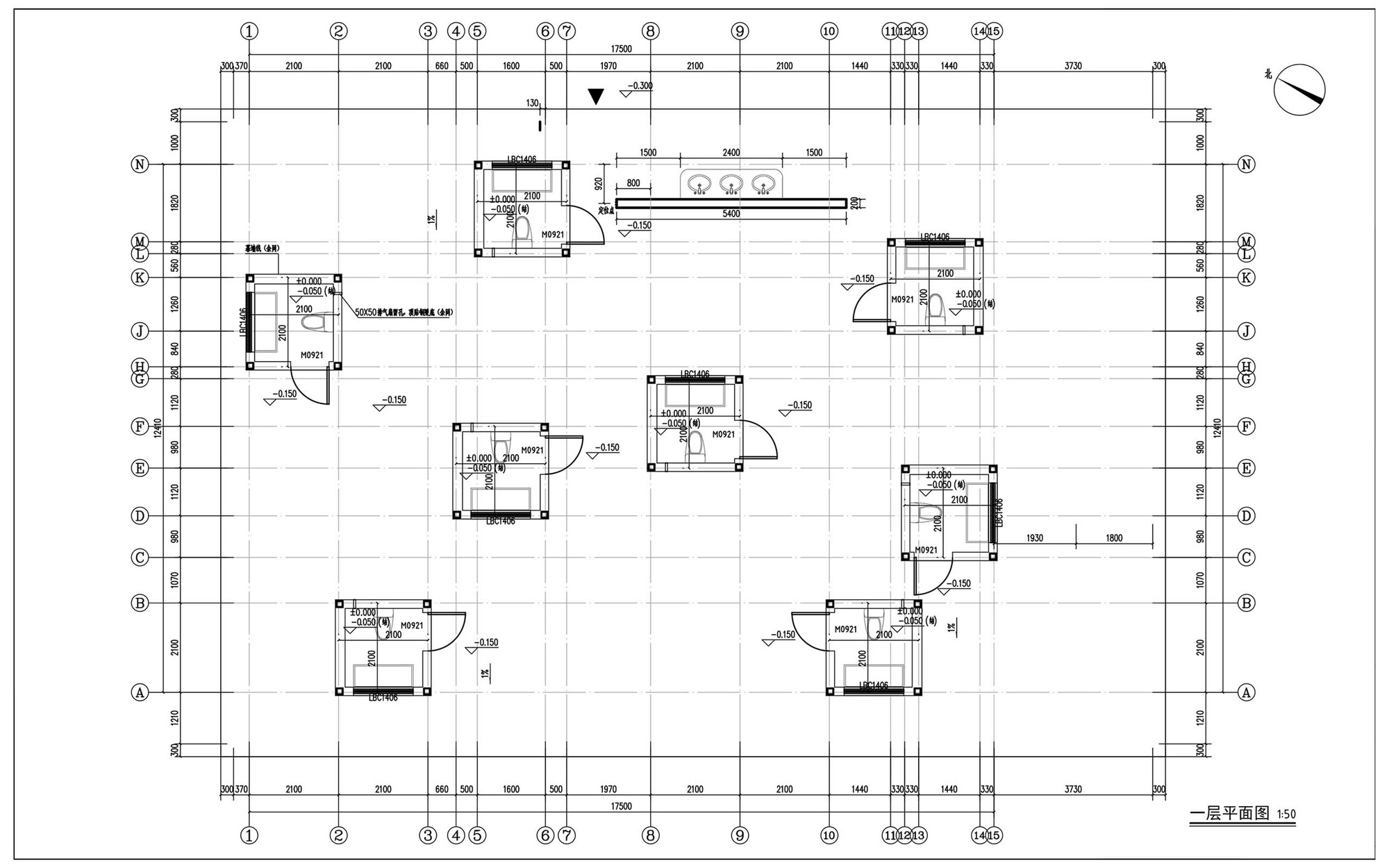
施工
每个潜望镜厕所的平面都是边长两米的正方形,让整个建筑的各个部件,轻钢龙骨结构、铝合金板、通风格栅、镜子、洁具等都能满足模块化的工业生产。不同的高度,可以让每个厕所内的使用者获得不同的视野,同时也让一组模块化的建筑形成了一个高低错落的景观。
愿景
厕所的变化从一个令人厌恶的忌讳到可以让人享受的工业品,甚至一件被人欣赏的艺术品,反映了人类社会的进步,却也折射出极不平等的现状:有些人在其中享受一天中最美妙的时光,而有些人在其中备受煎熬甚至承担感染疾病的风险。我们希望通过这种单元化的设计,可以将这种概念运用到各种环境中去,不仅是风景优美的湖畔,也可以是拥挤嘈杂的胡同,让人都能享受这段属于个人的时光。
项目完工照片 | Finished Photos
设计师:禾下建筑社
分类:基础设施
语言:简体中文
客服
消息
收藏
下载
最近


















