查看完整案例

收藏

下载
景观装置, 公共建筑, Shibuya City, 日本
建筑设计:Suppose Design Office
项目年份:2020
摄影师: Kenta Hasegawa
厂家:AutoDesk, Sanko, Trimble Navigation, V-Ray, Woodwise
客户:Shibuya City
City:Shibuya City
Country:日本
建筑位于城市高速公路和国家体育场地铁站之间, 被设计成一个具有文化元素的公共空间,在奥运会期间将提供给来自日本和国外的游客使用,未来将作为城市的基础设施。从这个前提出发,我们重新考虑了传统“公共厕所”的印象、功能和用途。
在平面受限的条件下,我们确保了在垂直方向上足够大的空间。建筑集合了中央的两个柱子,卫生间隔间和洗手台,以及离地50公分的外部墙体。
通过使墙体“漂浮”,我们得以创造建筑内部与城市的联系,以及可以感受人的存在的透明度。同时,我们避免了带来停滞感与不安感的封闭走廊与死角。
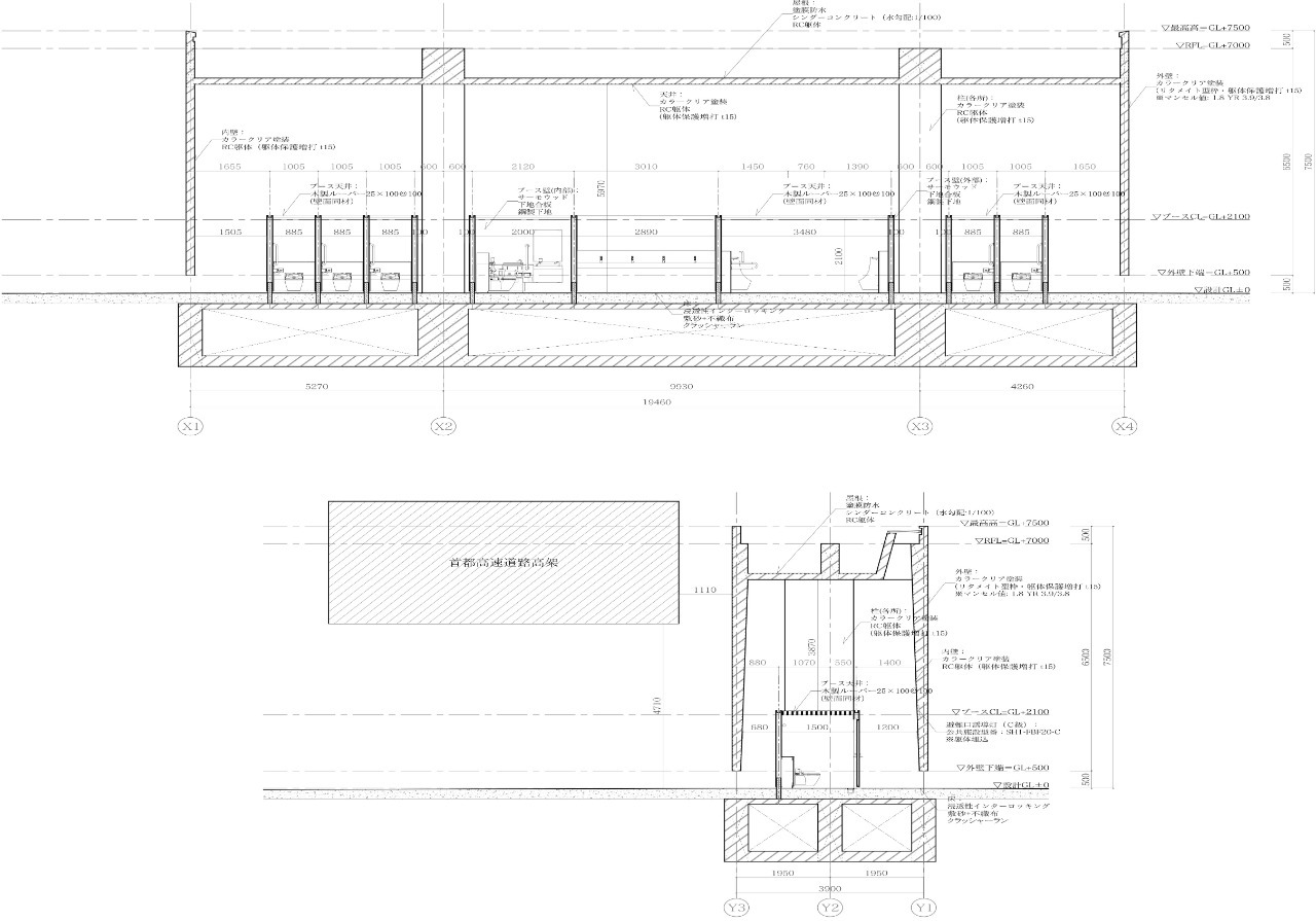
7.5米高的立方体的内墙以清水混凝土为材质,柔和的光线通过屋顶的缝隙进入室内,给人留下深刻的印象。在这个空间里,人们可以欣赏大自然中季节和时间的变化,这是我们日常意识之外的,无需刻意通过改变光线来实现。
如Akoya木板、酒店中的的黄铜标牌外观,以及放置在中心以便男女共享的洗手盆等与公共卫生间设计传统观念相矛盾的做法强调了设计的合理性和多样性。我们希望通过为每个人创造一个顺畅的、易于使用的、高品质的空间,来改变使用者的意识,让他们自己也参与到维护一个舒适的环境中来,从而形成一个健康的循环。
通过精心建立基于重量的漂浮感和基于黑暗的光等矛盾反差,我们试图消解城市与建筑之间的边界,并创造一个有吸引力的、自然和建筑相互共鸣的空间。
建筑中的留白为艺术的场所。作为成熟城市中的公共建筑,它不仅具有服务城市的功能,还提供了在城市中漫步的另一种意义。
文字描述由建筑师提供
译者:祝宸
项目完工照片 | Finished Photos
设计师:Suppose Design Office
分类:景观装置
语言:简体中文
客服
消息
收藏
下载
最近












































