查看完整案例

收藏

下载
小宅空间
餐厅、
空间布局
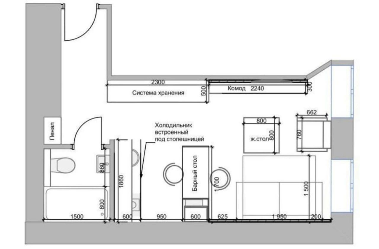
空间非常小,处理它并不容易。床被放弃,取而代之的是沙发床,但厨房并没有被缩减,业主非常喜欢自己做饭,想要拥有一套功能齐全的厨房,配有烤箱、炉灶、微波炉。
这个项目是一个很好的例子,说明现代设计如何与自然相结合,而不是破坏舒适性和功能性。用原木家具作为室内的补充,增加了舒适和温暖,同时也创造了一种与自然的统一感。
浴室尺寸非常小,设计师大胆地创造一个功能齐全的空间,设法适当地整合了洗手台、独立淋浴间、壁架和水槽下方的存储空间。
13535331549
‘星标’
第一时间接收精选内容
近期热文
女生的43㎡,一个属于自己的小家!
她的38㎡小宅,太有个性了!
32㎡,妈妈的梦中情房,太厉害了!
客服
消息
收藏
下载
最近

















