查看完整案例

收藏

下载
Offices, Linbian, Taiwan (ROC)
Interior Designers: Atelier Boter
面积: 52 .2501349m²
年份:2021
摄影:James Lin
建造商: Ikea, Sunon
设计师描述 | Designer description:
The F. Forest Office is located in the fishing village of Qifong in Linbian, south of Pingtung, where 98% of the population is composed of retired elders. Started by a young Linbian-er, the F.Forest Team aims to enliven the old village by organizing local tours and events to attract more incoming visitors and understanding of the local village.
We intend to apply the "regressive" technique in the design of the office to balance between tranquility and disturbance, as well as impermeability and porosity of the fishing village, to find versatility in various aspects in different contextual conditions. Situated on the street corner facing south, the office space is adjacent to the entire row of residential verandas; shadow spaces formed by offsetting the entrance door on each residential unit, the veranda is a gathering spot where everyone sits and chats freely.
The liveliness of the fishing village often begins in the evening, just as the sea and land breezes blow. We interpret the so-called "continuity" in architecture into the continuation of "behavior"; the addition of a relatively open cement patio next to the row of verandas intends to provoke gathering of nearby residents. The chaos in the office inside and the tranquility of the platform outside become a part of the cultural dynamics of the village. As climate shapes a city, the users shape architecture.
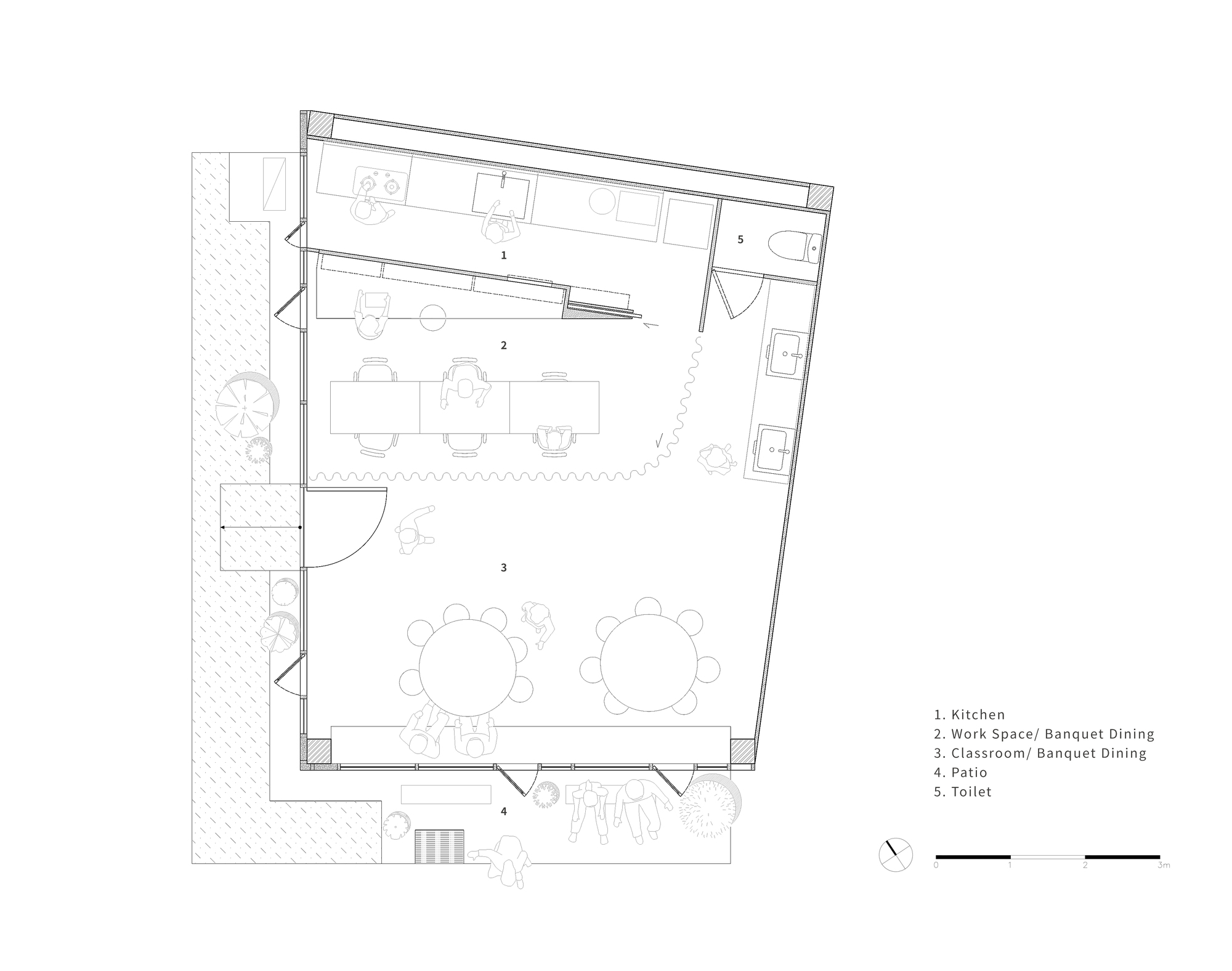
The interior space area of 53 square meters is designed to contain an 8 people work space, a 20 people classroom and a kitchen. As the original building does not have any square corner, an angled wall mounted tabletop between the kitchen and the work space guides the entire space division, which turns the work space and classroom into a rectangular shape that is better for space organizing that easily accommodates furniture of various forms. In order to increase the flexibility of the open space, we used fabric curtains as a soft partition to make it convenient to combine the work space and classroom into a 30 people banquet dining space. A serving hatch is added on the partition wall between the kitchen and the open space to increase efficiency while serving dishes for the banquet.
zoom(this, this.src, 0, 0, 1)
设计师:Atelier Boter
分类:Offices
语言:英语
客服
消息
收藏
下载
最近






















