查看完整案例

收藏

下载
Houses, Seaforth, Australia
设计师:Georgina Wilson Architect
面积: 280 .2501349m²
年份:2019
摄影:Murray Fredericks
建造商: Gosford Quarries, James Hardie, Jardan, Jetmaster, Astro Versailles, Duomo, Icon, Nuevue, The Wood Room
Lead 设计师:Kat Prowse
Structural Engineer:Harrison & Morris Consultancy Pty Ltd
City:Seaforth
Country:Australia
设计师描述 | Designer description:
Owners Damien and Belinda Wilde wanted to create a relaxed oasis where they could both entertain and escape, but with three school-aged sons practicality was also a priority. The architect's solution was to create a series of terraces and rooms that can be used for socialising or retreat. This resort-like configuration means teenagers can throw a pool party while Mum reads a book and Dad has a beer with a friend, all within their own spaces. "We never feel like we're living on top of each other," says Belinda.
Significant changes to the home; A small series of rooms set back from the view was transformed into an open-plan kitchen, living and dining area that makes the most of the harbour aspect and is flooded with natural light.
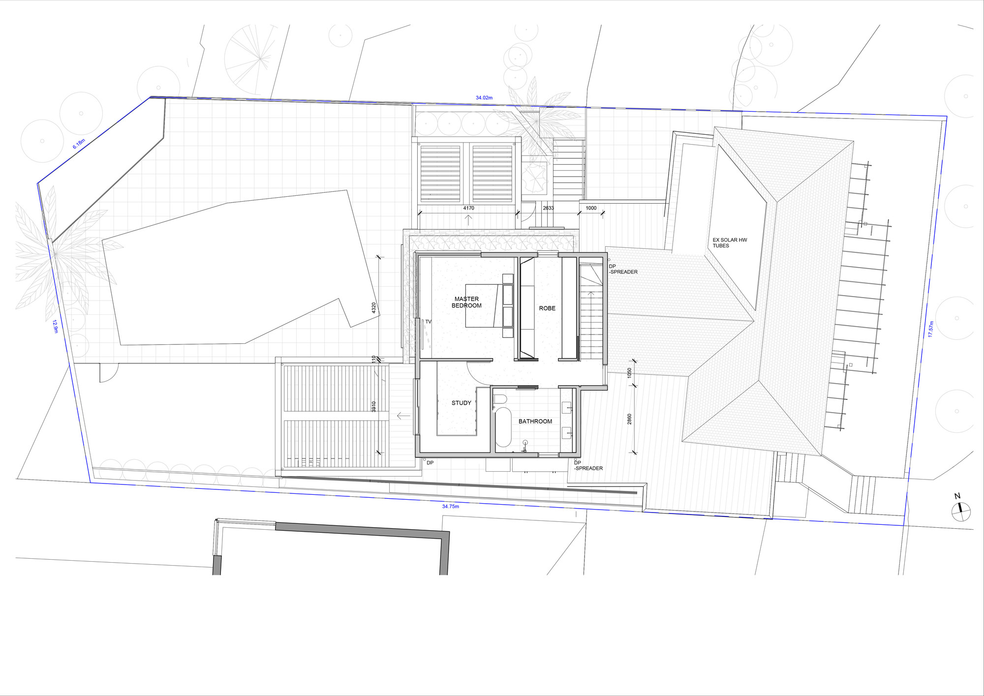
The original entrance was awkward, messy and featured a series of nonsensical ramps; this was streamlined to create a clear path for visitors. A new storey was added comprising a master bedroom, study and bathroom. A frameless glass pool fence replaced an old-fashioned one that blocked the harbour view.
Thoughtful details; The architect designed a custom banquette beneath a picture-frame window in the open-plan dining room so the family can enjoy meals with a view year-round, no matter the weather. An entrance vestibule with elegant storage cabinets hides the clutter of shoes and bags. A frameless corner window in the bedroom gives an uninterrupted vista across the water from the upper level.
White baton fencing around the perimeter is used as a design feature to tie separate elements of the build together. Recycled timber was used in the internal ceiling and outdoor pergola - the natural wood grounds the white colour scheme and adds texture.
项目完工照片 | Finished Photos
设计师:Georgina Wilson Architect
分类:Houses
语言:英语
客服
消息
收藏
下载
最近

















































