查看完整案例

收藏

下载
Houses, Renovation, Extension, London, United Kingdom
设计师:Bureau de Change Architects
面积: 160 .2501349m²
年份:2020
摄影:Gilbert McCarragher
Contractor:Argyll
景观设计:Tulip Landscapes
City: London
Country:United Kingdom
设计师描述 | Designer description:
Bureau de Change have completed a rear extension and refurbishment to a Victorian terraced house in South London, employing their characteristically questioning approach to produce an unconventional arrangement of interlocking geometric glass volumes which reveal a sequence of compelling interior spaces.
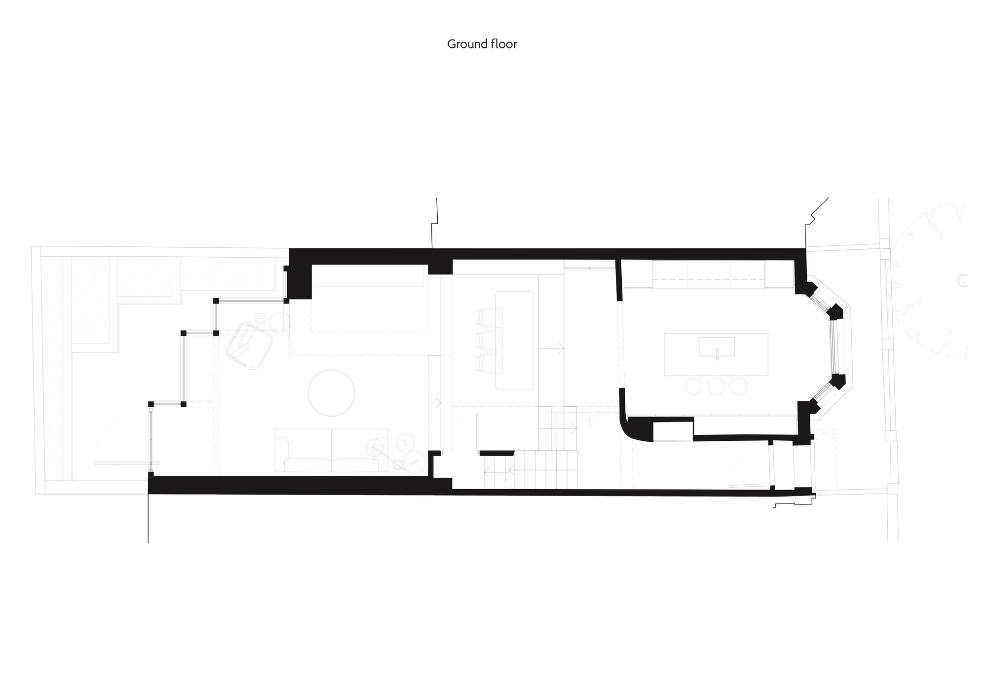
The practice challenged standard solutions to planning rules which determine a 45-degree angle between surrounding properties, instead achieving the maximum envelope possible with purely rectilinear forms that are staggered and stepped at the boundaries. This complex design of interconnected forms drawn from the geometry of the site and its adjacencies evokes an almost Metabolist sense of crystalline growth – with volumes extruded in different directions, some sitting beneath the original house and others expanding outwards.
The detailing of this structure features a technically complex steel-frame construction reminiscent of the museum case, combining fragility with solidity in a manner that represents an antidote to the frameless glass extensions of the past decade. Katerina Dionysopoulou, Co-Founder of Bureau de Change explains: ‘These distinctly cubist glass volumes are articulated through their bold steel-frame construction, expressing each edge in a manner that creates shifting patterns of light and space, and a paradoxical sense of both levity and solidity as the volumes bear the weight of the original house.’
The rhythm and logic of rectilinear offsetting is echoed throughout the rest of the ground floor plan, with undulating levels carefully designed to curate views and delineate spaces. ‘Moving down through the space from the kitchen at the front, views of the extension reveal themselves through a journey of discovery – a hallmark of our residential work,’ describes Co-Founder Billy Mavropoulos. ‘We didn’t want to reveal the whole space in one glance but foster a slow and considered use of the space that allows for surprise, intimacy and drama.’
Material choices and lighting serve to emphasise this passage, transitioning from the darker enclosure of the kitchen towards the brighter open spaces that lead to the garden. Both the interior space and the landscaping are designed with shifting levels that create both useful and playful ledges, steps, and borders. Terrazzo floor surfaces in subtly different shades enhance this staging, identifying distinct areas for dining and living with darker tones, leading to lighter ones where the stone meets the garden to form a language of planters and vertical surfaces.
These principles and material choices are continued throughout the rest of the house across two further floors, including the creation of a new master and a guest suite on the second floor. A bespoke terrazzo handrail forms the spine of this material journey, linking spaces throughout the house which unfold in a sequence of visually stimulating rooms where texture, graphics, colour and finish have been selected for their theatre and tactility.
项目完工照片 | Finished Photos
设计师:Bureau de Change Architects
分类:Houses
语言:英语
客服
消息
收藏
下载
最近



























