查看完整案例

收藏

下载

翻译
BKD. BY GEMINI
Team: UMKY
Project year: 2023
Function: coffeeshop + bakery
Project area: 305 м2
Location: Ajman, UAE
Brand Strategy + Identity: Kate Zest Studio
ABOUT
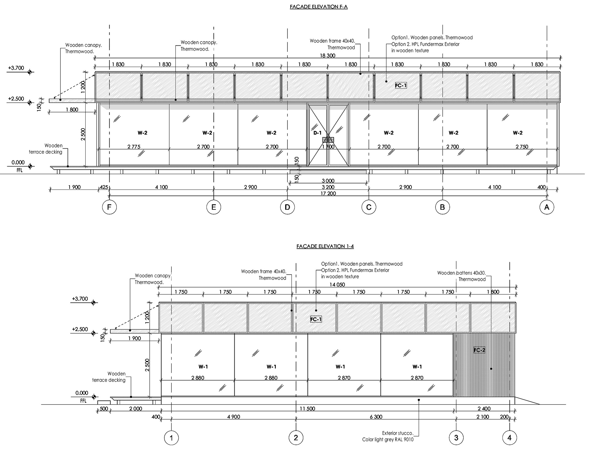
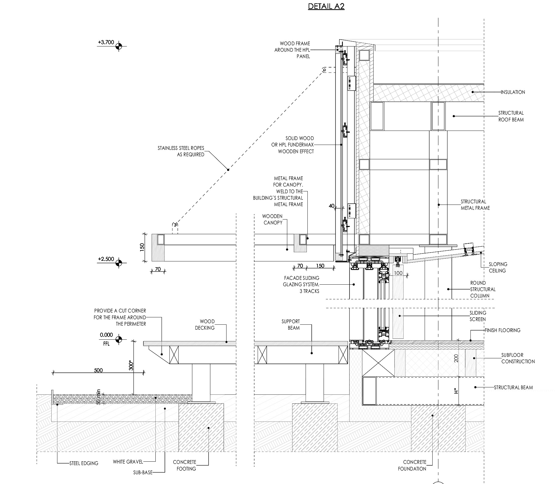
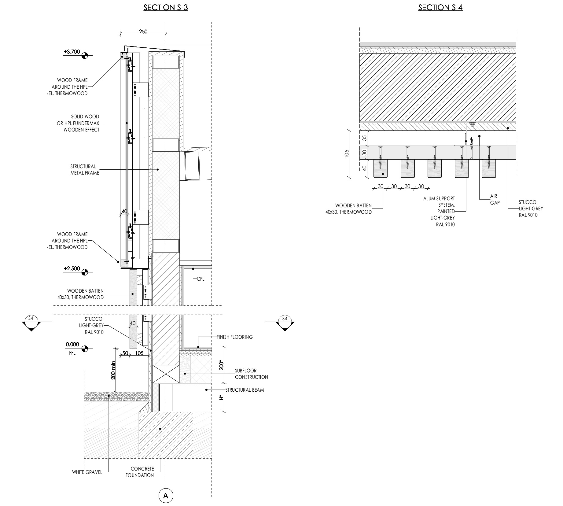
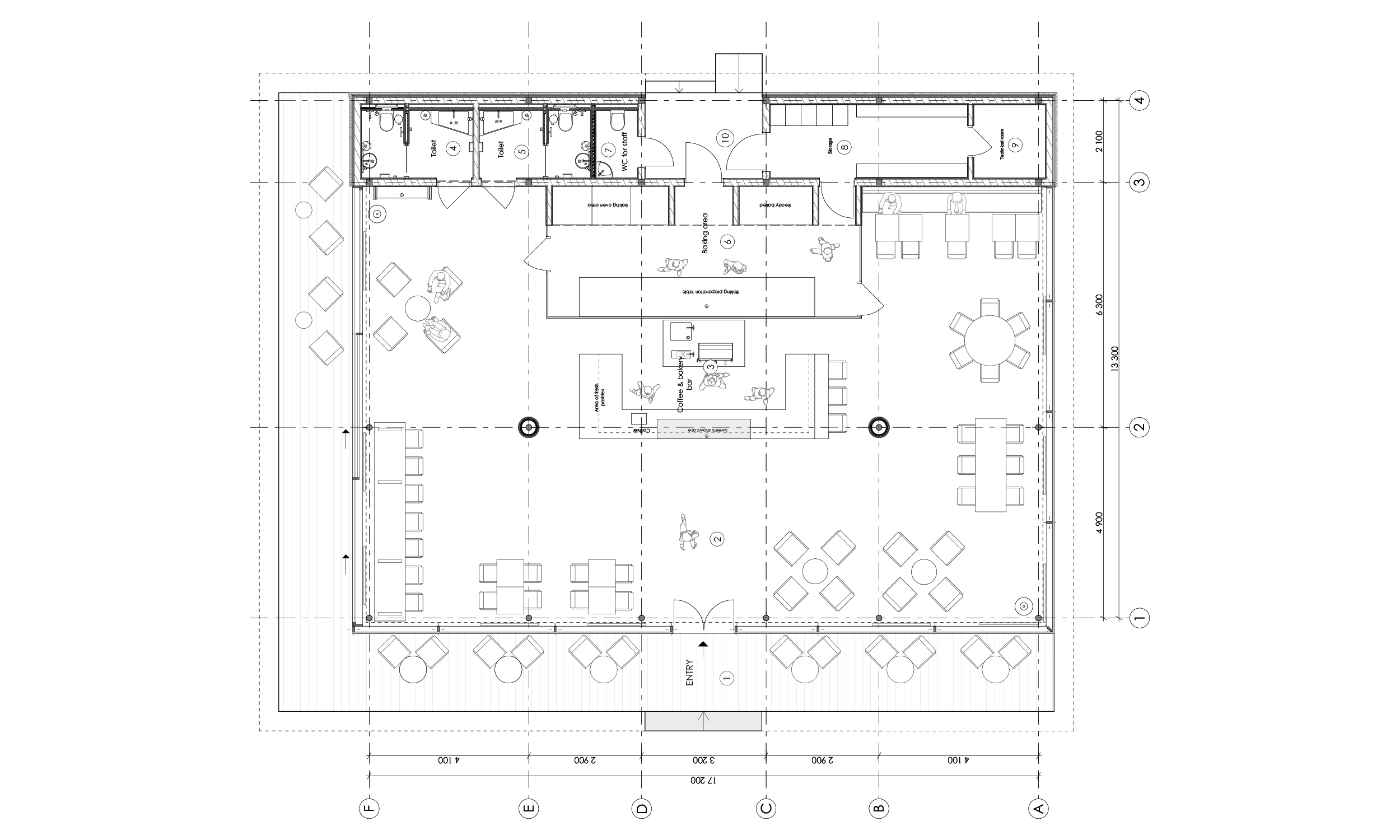
"Bkd. by gemini" is a complex project of a coffee shop with its own bakery, which we created completely from architecture and interior to identity. Since the object should be located in a large city park in the city of Ajman, the designers and architects were faced with the task of creating an attractive image for people who spend their free time walking in the park, playing sports, and gathering in hobby groups.But the establishment is unique not only in that it must welcome guests from the surrounding area, but also has its own bakery, which attracts people from all over the area to come and buy a freshly baked product.When creating the architectural image, we were inspired by the purity and laconicism of forms that are inherent in Japanese architecture. The wood on the facade and wide stained glass windows give a certain lightness to the image. The facade of the building and the interior are one whole, so we use the same materials inside as outside. The main counter is located in the central part of the interior, which is the point of attraction for the eye. The counter is made entirely of brick using the color pigment of the "bkd. by gemini" brand. Behind the main counter, behind glass, we see the bakery premises, which allows visitors to observe the process of preparation and baking. We used different seating options in zoning, both for 1-2 people and large companies, which gives variability and choice to visitors.The atmosphere of the interior is warm and cozy due to the use of natural materials. We aimed to keep a minimalist approach and not overwhelm the space with too much decor. This is also reflected in the identity of our project, for which we thank the talented designer Kate Zest Studio for taking part in our project.
Layout details work
Identity design work
客服
消息
收藏
下载
最近
































