查看完整案例

收藏

下载

翻译
A-CONCEPT STORE
Team: design for Studio25
Project year: 2023
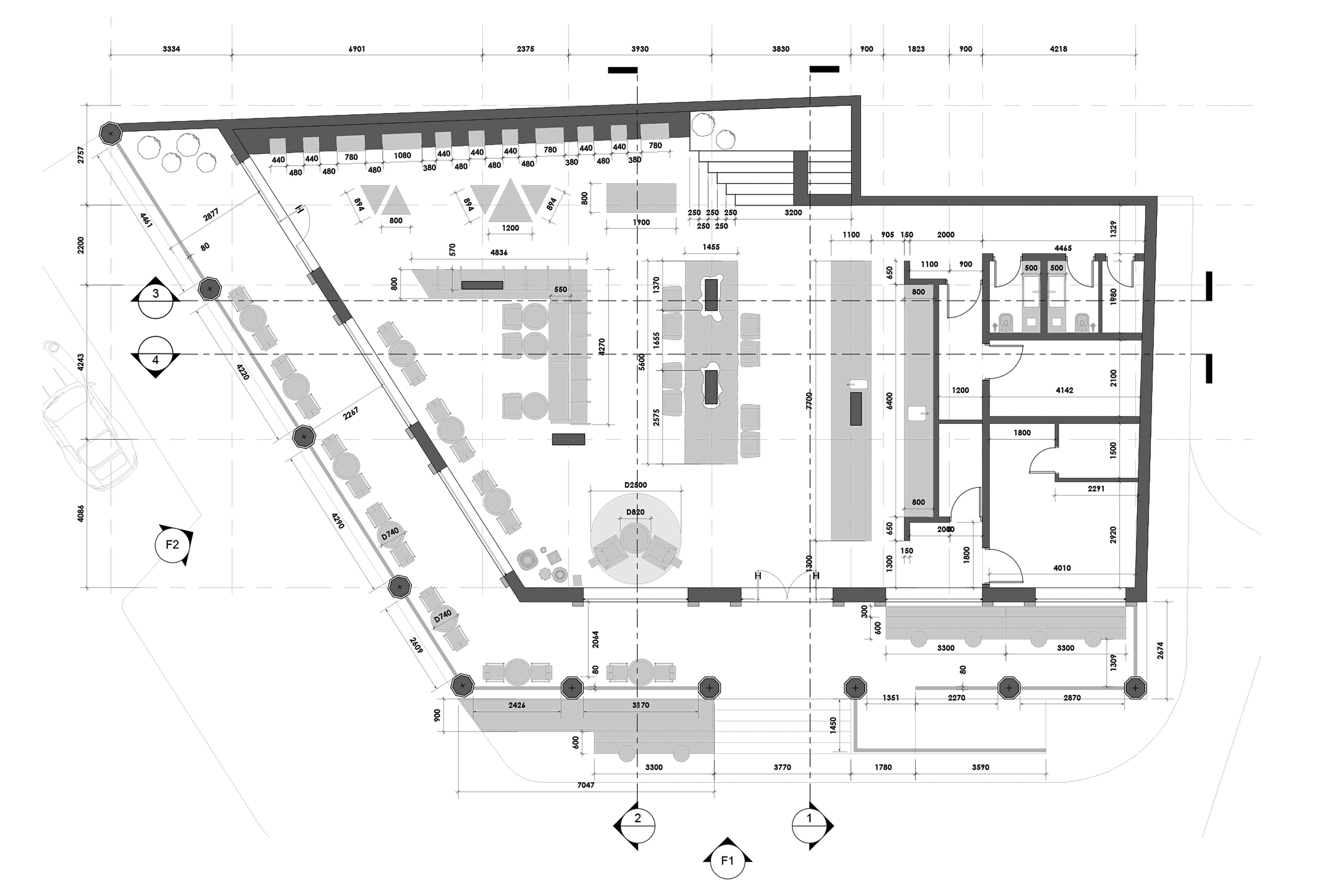
Function: showroom
Project area: 350 м2
Location: Riyadh, KSA
ABOUT
"A concept" - decoration store is a unique design project located in the historical district of Diriyah in Riyadh, Saudi Arabia. This concept store combines the traditional materials of the region with modern and stylish design, creating a unique atmosphere that attracts visitors from all over the world. The store specializes in the sale of decorative elements for modern interiors.
The facade of the "A concept" store has been preserved in it`s current form to save the originality and authenticity of the Diriyah Historic District.
Upon entering the "A concept" store, visitors find themselves in a spacious, bright space with a feeling of lightness and enveloping you like a silk veil. The interior of the store is designed with attention to detail so that visitors can enjoy the art and beauty of each item. The interior is dominated by natural materials, such as wall and ceiling stucco decoration in the traditional technique of this region, wood with a unique processing by the carving master, travertine natural stone that create a warm and cozy atmosphere.
There is also a cozy coffee shop inside the "A concept" store. It offers visitors an excellent selection of freshly roasted coffees and a variety of drinks that can be enjoyed in the unique atmosphere of the store. The coffee house is decorated in a style that matches the overall design of the store, using natural materials and traditional decor elements. It is the perfect place to relax and unwind after shopping or to meet up with friends.
"A concept" store is becoming a place where modern design meets the rich cultural history of Saudi Arabia.
DESIGN
INSTAGRAM
客服
消息
收藏
下载
最近






















