查看完整案例

收藏

下载
中小学校, Tambon Hua Nong, 泰国
建筑师:Design in Motion
面积:1100 .2501349m²
项目年份:2016
摄影师: Ketsiree Wongwan
厂家:AGC, BEGER, Lysaght, Muang Thong Aluminium, Shera
主创减租说:Pakapong Leelatian, Narin Bunjun, Sirin Vanichvoranun
工程:Kor-it Structural Analysis and Design Co., Ltd.
景观建筑师:Design In Motion Co., Ltd
委托方:Noppadon Chatchaiponrat
City:Tambon Hua Nong
Country:泰国
设计师描述 | Designer description:
Ratchut 学校的设计体现了意大利著名教育家蒙特梭利女士的教育理念,即学习的空间不应该只是传统意义的教室,而应该是孩子们温暖的家。因此,在该项目的设计当中,我们将学习区域划分为多个小尺度的“房间”,这些“房间”能让来到学校的孩子们有回到家的感觉。并且,这些“房间”的功能迥异,可以进行不同的儿童教学任务。
大自然是学龄儿童最好的学习和成长的环境。因此,Ratchut 学校的规划就是希望为学生们创造自然的学习环境。我们将室内与室外的空间、建筑与景观完全整合在一起,不但创造出丰富多样的学习与活动空间,还为孩子们提供了让他们去探索冒险的环境。我们在整个校园的规划中融合了四种“自然”元素,包括洞穴、沙石、土丘和树木,这些元素将有助于学龄儿童在自然中学习和成长。
我们将“洞穴”这个元素转换到了学校正门的设计中。我们使用了大面积的木板来模拟洞穴的形状,并在木板间留有足够的间隙,以利于自然采光。孩子们要穿过这个人工“洞穴”才能进入校园,这样能给他们以新奇有趣的感受。
我们将“沙石”元素用于游戏场的设计当中。位于Toddler Building旁的这个游戏场将为初学走路的孩子提供触觉的刺激。
我们将各种形状的小“土丘”配置在校园的中庭及周围的空地中。课余时间,孩子们可以在这些“土丘”上奔跑、嬉戏和玩耍。同时,这里也是他们的户外学习空间。
我们在这些空地上栽种了“树木”,从而能为户外教学活动提供树荫遮蔽。
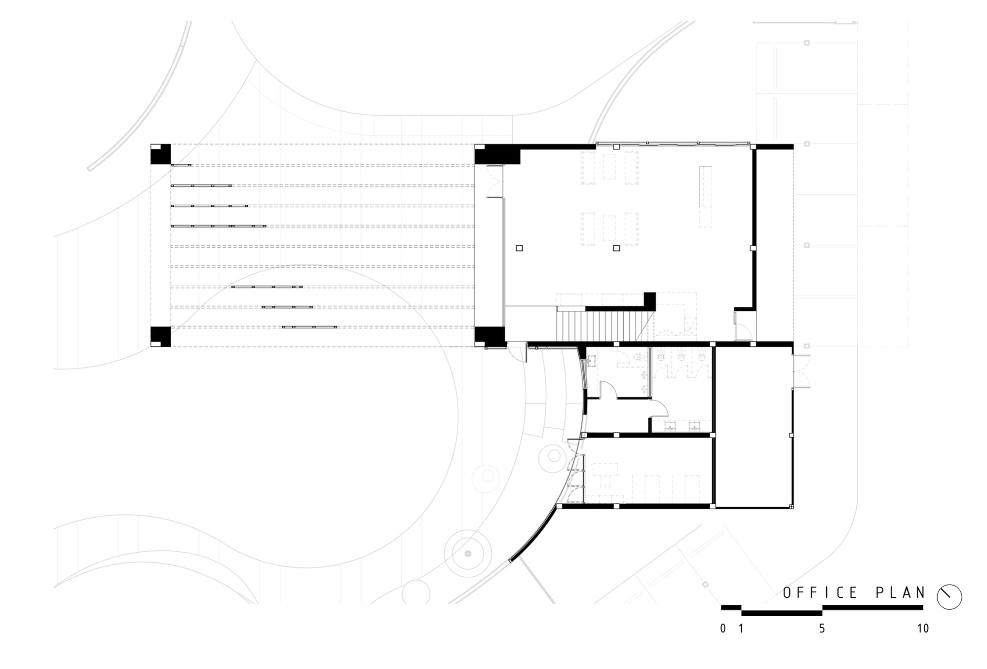
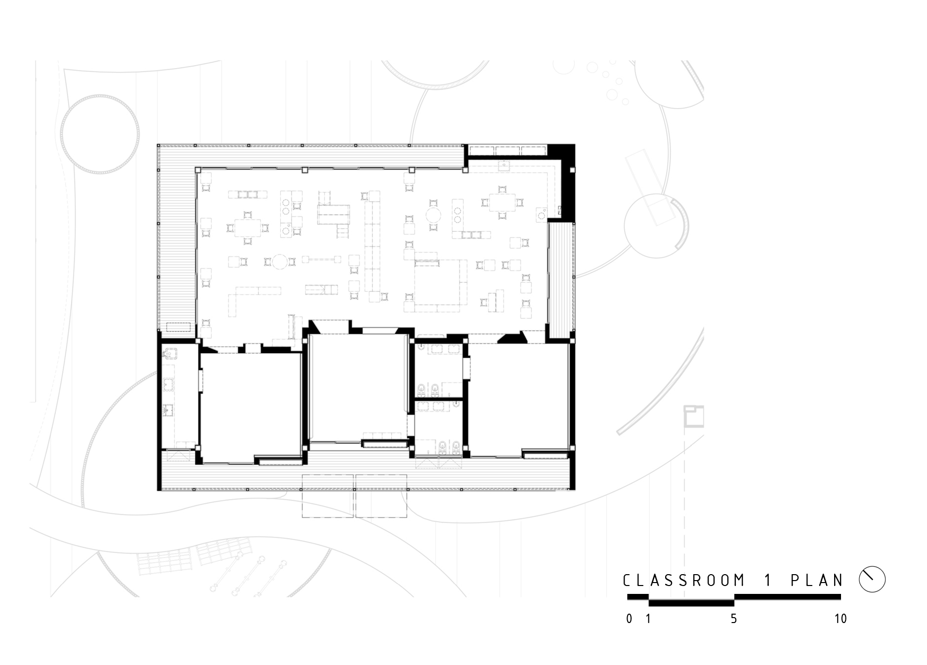
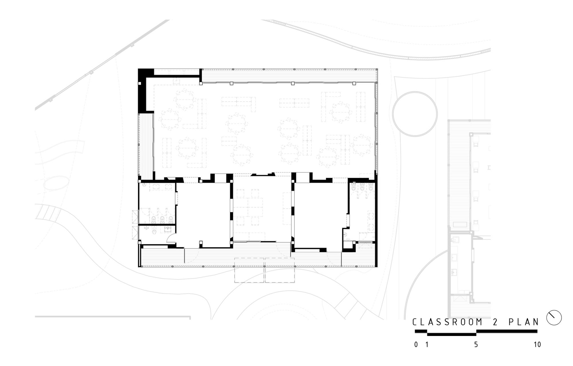
这个设计项目包括了两栋教学楼和一栋家长学习楼,我们用有顶棚的室外廊道将这些建筑连接在了一起。所有的建筑外立面使用灰色的涂层,并嵌以棕色的木条,整体环境给人以流畅和温暖的感觉。为了让孩子们能轻松理解整个校园的布局,我们采用了最简洁的设计方案。木条的使用可以过滤掉一部分的光线,但同时也让孩子们暴露在一定的自然光之中,这有利于他们视力的正常发育。
另外,这些木条构成的“围栏”也能有效阻挡孩子们的视野,这样他们就能更集中于室内的学习任务中,而不是望向室外。教学楼内部的空间被分割为多个小“房间”,用于不同的教学任务,这样小尺度的空间可以让学生们的注意力更加集中。这样的“小房间”将会比那些开放的大教室更适合学龄儿童的学习和成长。
翻译:Collin Chen
项目完工照片 | Finished Photos
设计师:Design in Motion
分类:中小学校
语言:简体中文
客服
消息
收藏
下载
最近
























