查看完整案例

收藏

下载
途经一朵花的盛开,便会懂得春天的浪漫。
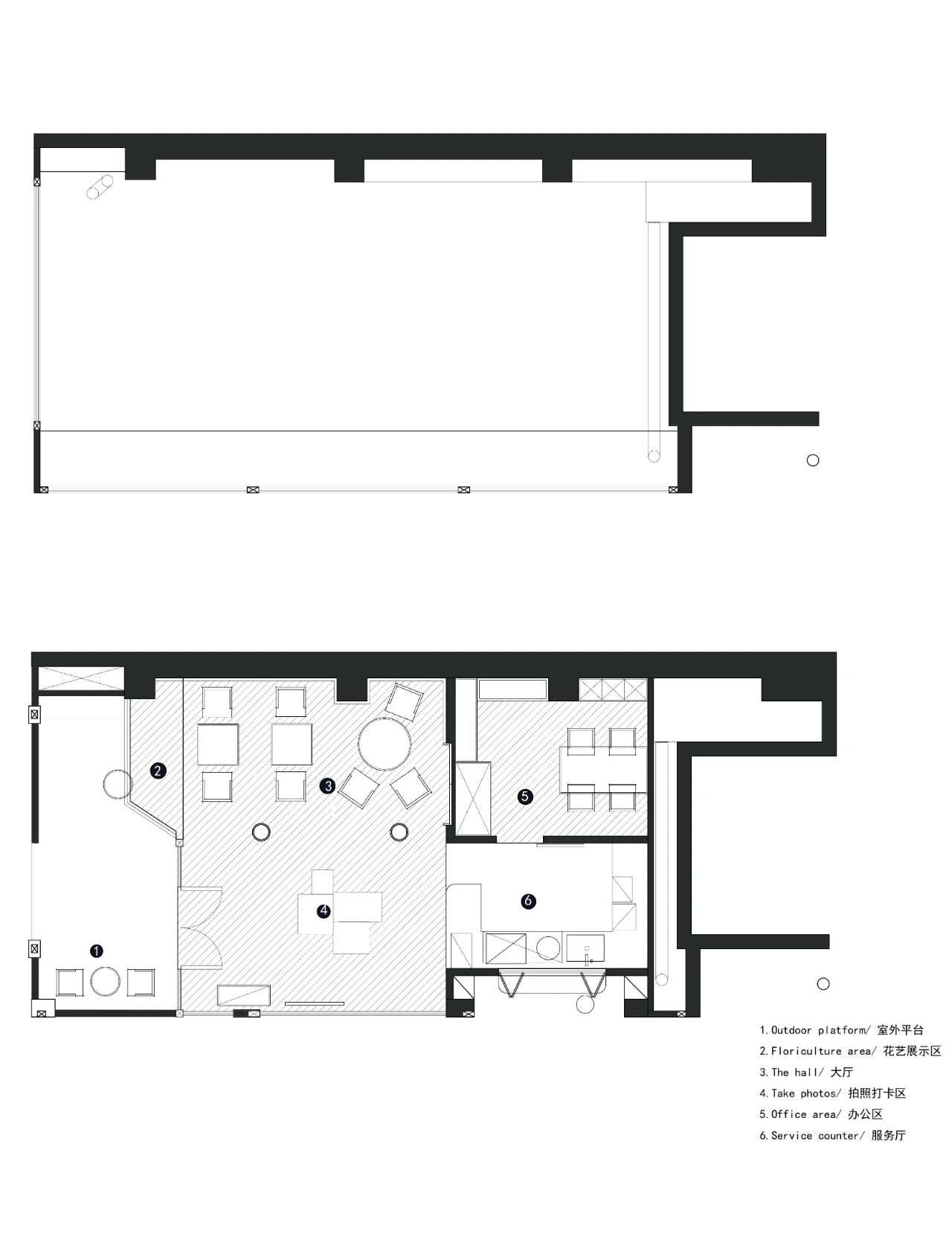
FLOOR PLAN
查可仙子位于一个繁华且热闹的都市社区,它隐秘于沿街的一个转角处。与家装设计不同,面对商业空间时,需要更多思考品牌概念。设计师将其打造为法式街头的风格,通过颜色,图案,和材质创造了温馨浪漫的氛围。整体空间为奶油色系,结合复古法式的线条结构,传达了美好与品质共存的品牌理念。
ARCHITECTURE
静谧的城市街道,阳光透过树叶洒在建筑上,这间花店也随着这份浪漫与随意肆意生长着,慢慢长出这份唯独属于她的城市肌理。
OUTDOOR PLATFORM
整体采用法式风格钟爱的奶油色为主色调,干净而纯粹,在视觉上给人充分的舒适感,橱窗设计风格清新典雅,又热情洋溢,提升氛围。或许花店的神奇之处就在于,能唤起我们对美好生活的憧憬和热爱吧。
颗粒感真石漆与线条感瓷砖、法式风情壁灯与实木风桌椅,仿佛给空间营造出了历史中复古庄重的戏剧效果,好似误入一部法国的电影中。午后的暖阳洒落在墙面,为整个空间增添了一份温和的基调。
THE HALL
通过对法式的再理解并将此投射到大厅,精致的雕花吊顶,石材质感的廊柱,整体空间呈现丰富但却不繁杂的形态,兼容并蓄地用更符合现代的语言呈现了新古典主义下的浪漫精致感。
TAKE PHOTOS
考虑到店主线上宣传花束所需的拍摄场景,我们设置了专有的花艺展示区,并且店内每个小的功能单元都用了不同的元素的材质,马赛克,木地板,手工砖,柔光砖,这些都可作为鲜花的拍摄背景。
SERIVICE COUNTER
带弧形设计的岛台将后厨空间与大厅巧妙地区分开,半开放的设计完成了适当的视线遮挡,同时也让客位区有了更为合理流畅的动线排布效果。纵观每处,无一不在确保空间的完整性和功能性。
COUNTER
吧台,一个不大但有温度的空间。一杯香浓咖啡,几句寒暄,缩小了陌生人之间的距离。向外自然延伸的吧台,依然张扬着浓厚的法式风情,实木质朴桌椅,与极简黑色橱窗,便是最好的浪漫诠释。
春来无事,便只为花忙。
Project Information
Location: 成都, China
Project Complete: Jan.2023
Space Design: Rimland Design Organization
Area: 70.2501349㎡
Photographer: 山南摄影 草塘
客服
消息
收藏
下载
最近




















