查看完整案例

收藏

下载
酒饕隐䲥,位于浙江省义乌市,是一家集日料烧鸟与酒吧于一体的复合型餐吧,选址在商场顶楼的独栋建筑中,为其提供了更多的空间自主性。
JIUTAO ENJOY, located in Yiwu City, Zhejiang Province, is a Japanese yakitori and bar in one of the composite dining bars, situated in the shopping mall on the top floor of a single building, providing more spatial autonomy.
▼项目外观,Exterior view© 丛林
▼入口处,Entrance© 丛林
设计理念源于对日本传统文化的深刻理解和现代审美的巧妙融合,旨在为顾客提供一个既传统又现代的独特体验。室内空间的布局巧妙地将日料烧鸟区和酒吧区分隔开来,又在视觉上相互融合,形成和谐的统一。设计灵感来源于“日本武士”与“羽翼”,这两个元素在餐吧的每一个角落都得到了巧妙的体现。银色铝板的大量使用,不仅形似武士铠甲的甲片,更通过光影的折射,为空间增添了丰富的层次感。同时,这些铝板也巧妙地作为隔断,保证了用餐环境的私密性,又不影响整体空间的通透感。
▼空间轴测示意图,axo© 三厘社
The design concept stems from a deep understanding of traditional Japanese culture and a clever fusion of modern aesthetics, aiming to provide customers with a unique experience that is both traditional and contemporary.
The layout of the interior space cleverly separates the Japanese yakitori area from the bar area, yet visually blends with each other to form a harmonious unity.
The design is inspired by the “Japanese Samurai” and the “feather”. These two elements are cleverly reflected in every corner of the bar.
The extensive use of silver aluminium plates not only resembles the armour of a samurai, but also adds a rich sense of hierarchy to the space through the refraction of light and shadow. At the same time, these aluminium panels are also cleverly used as partitions to ensure the privacy of the dining environment without affecting the overall sense of transparency of the space.
▼酒吧区的操作台和客座,Bar area and guest seating area© 丛林
▼烧鸟区操作台及客座,Yakitori area and guest seating© 丛林
室内顶面的造型设计灵感来自于张开的双翼,单侧羽翼采用三层结构,使得翼型结构更加稳定和立体。
The styling of the interior roof is inspired by spread wings, with a three-layer structure for the single-side feather, making the wing structure more stable and three-dimensional.
▼空间功能布局,space functional layout © 三厘社
▼客座区,Guest seating© 丛林
▼空间一角,A corner of space © 丛林
这种设计不仅增强了空间的视觉效果,不仅在视觉上给人以稳定感,更在结构上保证了其稳定性。西侧的烧鸟区与东侧的酒吧区在一双羽翼的庇护下,形成了一种相辅相成的和谐氛围,也象征着餐吧对传统与现代、东方与西方文化的包容和融合。
This design not only enhances the visual effect of the space, visually giving a sense of stability, but also structurally ensures its stability. The burnt bird area on the west side and the bar area on the east side, sheltered by a pair of feathered wings, form a complementary and harmonious atmosphere, and symbolise the dining bar’s tolerance and fusion of traditional and modern, oriental and western cultures.
▼酒墙,The wine wall© 丛林
▼客区立面及原创桌椅,Guest area facade and original tables and chairs© 丛林
▼银色铝板立面及翼状结构,Silver aluminum facade and wing structure © 丛林
为匹配主题与风格,餐吧的桌椅和灯光均为原创设计。这些设计不仅在视觉上与整体空间相协调,而且在功能上也满足了顾客的需求。灯光的设计则更加注重营造氛围,通过不同的光线和色彩,为餐吧增添了更多的情调。
To match the theme and style, the tables, chairs and lighting in the dining bar are all original designs. These designs not only visually harmonise with the overall space, but also functionally meet the needs of customers. The lighting design pays more attention to creating an atmosphere, adding more mood to the dining bar through different lights and colours.
▼翼状木质结构细节,Detail of the wing-shaped wooden structure © 丛林
▼原创桌椅细节,Original table and chair details © 丛林
酒墙的设计同样别具一格。传统的东方木质结构与现代的装饰材料相结合,摒弃了原有的立面格栅结构,将东方的意境与现代的设计巧妙地融合在一起。这种设计不仅打破了时间的界限,更打破了东西方文化的壁垒,展现了一种跨越时空的文化交融。
The design of the wine wall is equally distinctive. The traditional oriental wooden structure is combined with modern decorative materials, abandoning the original façade grille structure and skilfully blending the oriental mood with modern design. This design not only breaks the boundaries of time, but also breaks the barriers between Eastern and Western cultures, demonstrating a cultural fusion across time and space.
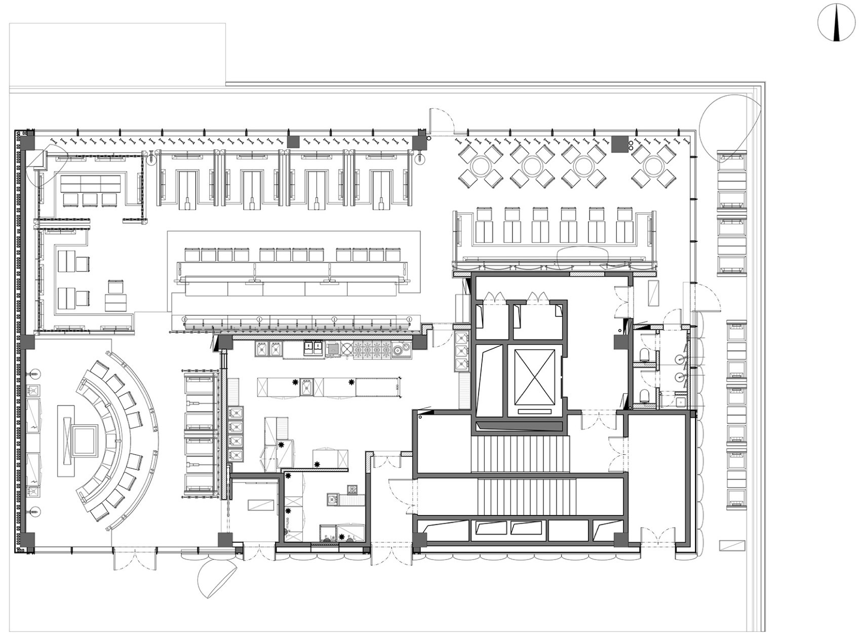
▼平面图,floor plan© 三厘社
▼立面图和剖面图,elevation and section© 三厘社
项目名称:酒饕 隐䲥
项目类型:室内设计
设计方:三厘社
项目设计:2022 年 11 月
完成年份:2023 年 4 月
设计团队:三厘社
项目地址:浙江省义乌市
建筑面积:410㎡
摄影版权:丛林
合作方:艺落义美装饰工程有限公司
客户:酒饕 隐䲥
材料:弧形铝单板、乱纹不锈钢、木纹膜、钢化长虹玻璃
品牌:三可灯具、欧恩利瓷砖
客服
消息
收藏
下载
最近






















