查看完整案例

收藏

下载

翻译
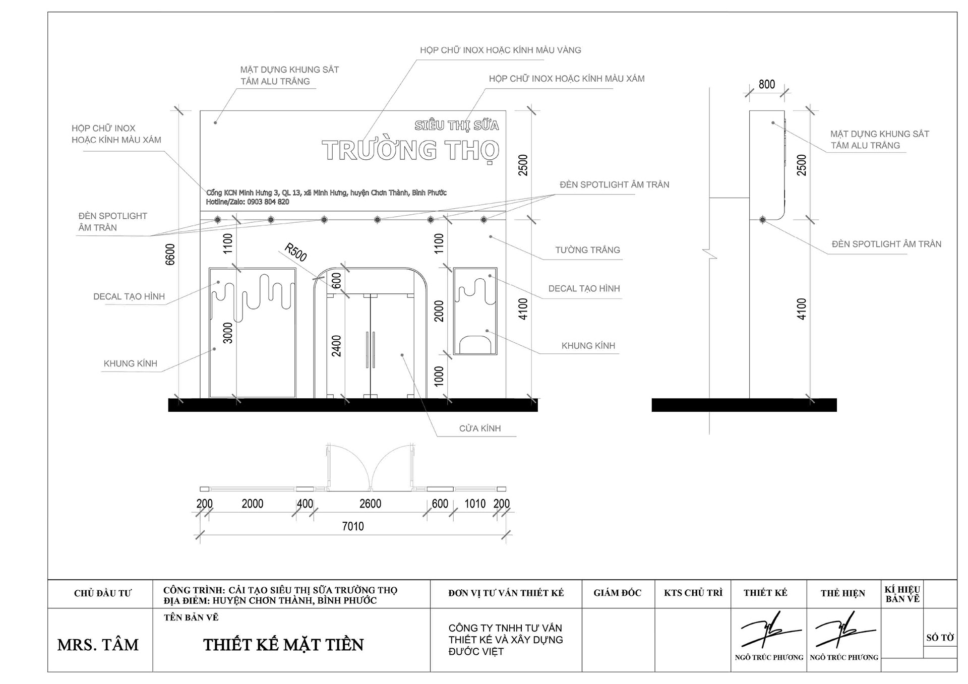
Công trình: Siêu thị sữa Trường Thọ
Địa điểm: Minh Hưng, Bình Phước.Trạng thái: Đã hoạt động từ 2021Loại công trình: Shop bán đồ cho béTổng diện tích sàn: 200 m2Tầng cao: 1 tầng
Hồ sơ thiết kế chi tiết
Detailed architectural profile
Siêu thị sữa Trường Thọ thuộc hạng mục thiết kế được đội ngũ Kiến Trúc Sư Cty Đước Việt lên bản vẽ và thiết kế chi tiết kỹ thuật thi công vào năm cuối 2020 và chính thức hoạt động từ đầu năm 2021.
Quý khách có nhu cầu thiết kế kiến trúc nội thất, xây dựng, cải tạo trọn gói các công trình: nhà phố, biệt thự, văn phòng, khách sạn, cafe, v.v... Vui lòng liên hệ chúng tôi để được tư vấn kỹ hơn
Phone / Điện thoại: (+84) 909 846 159
Facebook: ĐƯỚC VIỆT - Architecture and Construction
Instagram: Duocviet.arc.and.cons
Tiktok: duocviet.ac
Công Ty TNHH Tư Vấn Thiết Kế Và Xây Dựng Đước Việt
VIET MANGROVE ARCHITECTURE AND CONSTRUCTION CONSULTING COMPANY LIMITED
Lĩnh vực hoạt động:
- Tư vấn, thiết kế kiến trúc công trình:
- Xây dựng trọn gói công trình: nhà phố, biệt thự, văn phòng, ....
- Thiết kế - thi công trọn gói Nội Thất: nhà phố, biệt thự, văn phòng ...
- Thiết kế ý tưởng thiết kế kiến trúc, lên hồ sơ mặt bằng công năng và triển khai concept các dự án.
Field of activity:
- Architectural design and Consulting services.
- All-in-one Construction services. (Building types : townhouses, villas, offices, ...)
- Interior design and construction. (Building types : townhouses, villas, offices, ...)
- Architectural Concepts visualization and Projects' functional plan documents.
客服
消息
收藏
下载
最近








































