查看完整案例

收藏

下载
境物设计团队接到浦东某价值上亿的滨江顶复豪宅设计需求,在去看场地之前,以为面对的将是高级奢华的场景,踏进玄关才发现,整套房子交付时的精装修状态与黄浦江壮观的景观气质并不匹配,同时,原空间的区域和动线设计也存在一些不合理的地方。
本案业主是一位有态度的90后女性,对于家,她也希望拥有不一样的非传统奢华,这与境物设计团队的价值观不谋而合。业主希望整体提升居住的空间品质和舒适度,但需要尽量控制预算并少动硬装。经过很多轮方向讨论,设计团队最终决定通过置入空间预制构件的方式,在对平面布局调整最小的基准下,对空间关系进行优化和整合,最终创造一个有别于传统奢华的“艺术品”。
构件的置入
Placing the prefabrication
01 入口玄关
Entryway
原始的精装修设计单调乏味,空间丧失平衡,只有窗外江景在竭力证明这是一户上亿豪宅。设计团队摒弃传统的玄关模式,却保留其核心功能。团队在玄关处创造了一个框景空间,丰富进门的视觉层次,也集成了摆件墙架和氛围灯光,至此,欢迎桌成为了该区域的核心视觉中心,可用作简单会客,亦可提供归家人一个温馨的港湾。
02 客厅和餐厅
The Parlor and Dining Area
转入客厅,高挑的复式空间映入眼帘,双层挑高开阔视野给人惊喜。被赋予形式感和功能性的墙面构件从餐厅延伸到客厅,最终指向落地窗外的黄浦江景,两个传统意义上分离的空间被意外的融合,家人可轻松自在地同时待在餐厅和客厅,而这个空间又在无时无刻和玄关区域的圆桌产生互动,提供了生动温馨的家庭意象。
依照客户的需求,这组墙面构件在此刻选择不成为电视墙,而是作为陈列艺术品的展示柜,但设计团队保留了未来发生变化的可能性。
03 主卧与起居室
Master Bedroom and Living Room
二楼起居室承续一楼的调性,但更加随意活泼。主卧房门位置的变动改善了起居室和主卧关系,人流动线也更合理。
起居室的墙面系统与楼下客餐厅视觉遥相呼应,同时主卧的墙面系统亦呼应了门外的起居空间,集合进置物架的暖色灯带为疲惫的人提供结束一天后的温暖。
设计团队选用了跟空间原有木饰面色调接近但更有质感的雀眼木纹作为构件的主体色,以古铜色金属置物架作为点缀,最终构成了完整的空间色调。
台阶的变身
The transition of the stairs
原本的台阶形式单一,作为客厅到餐厅尽头的视觉焦点,显然在美感上是不合格的。设计团队在不动楼梯结构甚至栏板、踏面的前提下,用相同的石材在侧边做了装饰构件,一个有活力的视觉终点由此产生。
软装和色彩
Furnishings and Colors
素雅的硬装色调固定后,活泼的软装色彩开始介入。业主日常工作忙碌,设计师希望她回到家能够回归到一个放松柔软状态。至此,这次的软装主产品,团队最终选定了一个敢于大胆使用色彩的意大利家具品牌MERIDIANI。
与以往做过的全屋改造相比,该项目对于设计团队而言有一些不同的意义。从针对关键点入手的有限改造入手,基于工厂预制、现场安装的操作方式,保证施工现场简单而干净,并在最大程度保证原始房屋不被破坏的前提下,去提升品质,重塑空间和生活状态,为当前的精装房局部改造市场提供更多的可能性。
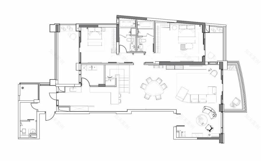
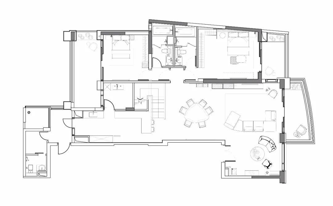
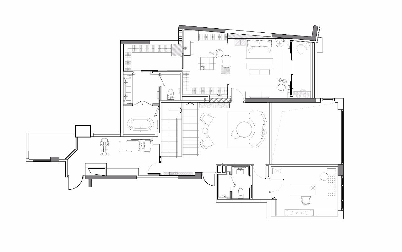
平面图
-
1F
项目信息
项目名称:都会主义的空间叙述新技 – 顶层复式公寓室内改造
设 计 方 :上海境物建筑设计咨询有限公司
设计时间:2020.03
完成时间:2021.05
主创及设计团队:Eric Tsui(徐晓东)/ 王帅、孔祥林
项目地址:上海
设计面积:357㎡
摄影团队:朱海
合作方:The Shouter
上海境物建筑设计咨询有限公司(KWSD Design)于2016年成立于上海,是一家集精品空间设计与商业咨询为一体的设计公司。
团队核心成员包括建筑师、室内设计师、商业咨询专家、互联网及新媒体人等,实践经验丰富,并喜欢新的挑战。公司秉持运营和策略先行的工作模式,从生活方式出发,用运营的眼光看待项目的全生命周期,并用敏锐的洞察为客户创造品牌价值。
客服
消息
收藏
下载
最近























