查看完整案例

收藏

下载
会客厅位于苏州吴江八坼街道老街,离运河仅仅十分钟的步行距离,实际上是老街一系列微更新中的第一个项目。老街微更新的主要动因缘于运河对岸苏州大学未来校区即将落成,时任领导提出将八坼老街打造成学镇,期待未来学生成为一股新生力量融入老街,给老街的焕新带来新的契机。▽项目鸟瞰© 存在建筑
▽项目外观© 存在建筑
在这样的期待下,作为公共活动空间的小小会客厅,就成了新旧融合的关键载体,毫不夸张地说,一个小建筑担负起了一个大使命。我们后来时常开玩笑说,这是一个有野心的房子。▽学镇会客厅与京杭大运河© 存在建筑
“漂浮的客厅”
八坼最早从京杭大运河畔的一个小集镇发展而来,经历了明清两代快速的聚合与发展,成为如今苏州市吴江区的一个行政区划街道。老街是八坼街道的核心腹地,也是早期集镇的所在,因而老街内建筑年代各异,有保留至今的清代木构、石桥,也有上世纪末新建的楼房,房屋风格杂糅,材质混杂,是典型的江南小镇模样。虽说地处富庶的鱼米之乡吴江,但平日的八坼老街也大多只能见到老人和小孩,年轻人都出去闯荡,老街亟待活力的补给与更新,而运河对岸苏大未来校区的引入正好带来了更新迭代的可能。
▽项目日景© 存在建筑
同大量的小乡镇一样,八坼老街属于一种高密度的居住聚落,阡陌交通,鸡犬相闻,虽有曲径通幽之意趣,但也不免处处觉得逼仄狭窄,放不开手脚。而且因为房屋权属和建设用地指标的问题,会客厅的最终落位恰恰又是在老街的心脏部位,须拆除一座危旧校舍,新建会客厅,这无疑又给设计和施工陡增了难度。▽会客厅被老街的房屋所“包裹”© 存在建筑
面对这样一个“困局”,当时脑子里涌入的第一个想法,便是得让这房子“漂浮”起来,用底层架空作为一种策略,使得房子轻盈地脱开地面,让来到这里的人不再被包裹在巷道的局促之中,而是体验到豁然开朗的通透感。▽设计概念“漂浮的客厅”© 得当设计
为了让这个架空的空间尽量开敞无约束,建筑选用了能够实现大跨的钢框架结构形式,并且与结构专业商量在中心部位抽走了一根柱子,让架空的空间获得一种“无柱感”。不过也正是因为选用了钢结构,给原本就已经困难重重的施工条件又带来了新的挑战,吊装钢构件的大型起重设备无法通过狭窄的巷道进入施工现场,为此还不得不拆除了几间危房,才得以为施工开路。不过事后看来,这也多少有点因祸得福,开路所形成的通道空间也算是将会客厅从严密的包裹中释放了出来,透了口气。
▽会客厅分层轴测图(GIF 动图)© 得当设计
▽钢结构施工阶段© 周伟(上图) /© 得当设计(下图)
如果说架空是为了“透口气”,那么下沉就是为了让人能“呆得住”。架空层的设计完成面标高比周边地面下降了 60 公分,形成了一个“既架空又下沉”的庭院。庭院的四周又用拆旧回收的老砖砌筑了台阶,在弱化了下沉边界的生硬感的同时,又强化了场所的围合感和亲和力,不破坏庭院内外的视线穿越,不让庭院产生一种深陷坑底的紧张感。▽建成后的架空下沉庭院© 存在建筑
为了能让建筑更有轻盈的漂浮感,减少二层体量压在头顶的压迫感,柱子与架空层顶面的交接处还设置了一段 5 公分的“小脖子”,看起来像是个减震器,虽然只是个视觉上的“障眼法”,但这个小处理确实会让头顶的建筑显得轻快一些。上二层的楼梯间也同样故技重施,让最底部的镀锌钢板与地面脱开 15 公分,梯段中央的梯段梁也被钢板所隐藏,如此一来,楼梯间看起来像是一个缓缓降下的登机梯,更增加了二层体量的悬浮感。▽柱子与架空层顶面之间的“小脖子”© 存在建筑
▽进入二层的“悬浮”楼梯间© 存在建筑
会客厅建成后启用之初,也恰逢几十年一遇的罕见持续高温,架空所带来的穿堂风和中庭所形成的拔风效应,也让这个架空的下沉庭院成为了老街居民纳凉的绝佳去处。老人们带着孩子在这里嬉戏,社区居民所组织的社团也经常在这里举办合唱表演,这个庭院在持续不断地为老街注入活力。
▽架空层的日常活动© 存在建筑
“种一棵银杏树”
架空庭院的中庭里,是移栽过来的一棵银杏。为什么要种一棵树在这里,说起来也只是一个感性的决定,总觉得有一棵树在那里,这个房子便多了几分生气。当时选树的时候也是费了不少周章,因为树的高度跟房子要匹配,才能实现“一层看树干,二层看树冠,屋顶看树梢”这种移层看树的景致变化,也算是一个小房子里扩大景深的好办法。选一棵落叶树,也是期待四季的变化在这样一个小小的庭院里能被鲜明地感知,想想秋天时那一地的黄叶,也是件极为写意的事。
房子落成后,笔直的树干与架空层结构柱的微妙关系,也是个意外的惊喜,树干的存在让柱子获得了某种自然的柔软,一时间竟有些分不清楚,哪根是树干,哪根是柱子。
▽架空层的树干与柱子© 存在建筑
二层是会客厅的主要室内空间,主要用作阅读、会议、展览等开放式功能,外加一个三层夹层的儿童阅读空间。为了让空间的使用灵活性够高,对于未来使用场景的适应性更强,空间并没有做明确而强硬的分隔,唯一能被强烈感知的就是这棵银杏树了。树在二层就像被收纳进了一个玻璃盒子,在玻璃幕墙围合成的中庭内安静地站着。▽二层中庭内的树冠© 存在建筑
© 得当设计
我们用银杏在二层创造了一种内向的景观,当然也没有放弃与外部景观对话的机会。会客厅西南立面所开的两道通高 4 米 8 的竖窗则创造了一种被引导的外向景观,充分感知到老街的景致与状态。▽二层西南立面的竖条窗© 得当设计
▽外部视角© 存在建筑
“眺望运河的屋顶”。屋顶的形态是一个微微的卷曲,既是与老街坡屋顶的普遍形态形成一种和而不同的对话方式,也是为了让屋面的露台体验更加放松和自然。▽屋顶视角© 存在建筑
实际上对于这种卷曲的感知,从二层的室内空间就已经开始了。为了让这种感知明确而真实,二层室内吊顶的形式并没有抹平屋顶的标高变化,而是顺着屋顶的曲线,在室内也悠然自得地扬起了一道曲线。为了这道曲线的平滑,桥架和风管的走向也动了不少脑筋。吊顶标高的变化也顺应了东北侧一个小的夹层,并在二层与夹层之间形成一种对视和对话的关系。
▽二层卷曲的吊顶以及夹层空间© 得当设计
© 存在建筑
屋面的高度在设计时被精心测算过,主露台的标高控制在 10 米以内,这个高度刚好可以越过老街大部分房子的屋脊,形成远眺的景观,又不至于太高而对周边房屋形成体量上的压迫和日照上的遮挡。但 10 米的标高还不足以清晰地看到远方的京杭大运河,因此我们又在屋顶重新演绎了老虎窗的形式,并让老虎窗变成一个可上人的次级露台,标高被抬升到 13.5 米,视线可以轻而易举地穿越整个老街,看到远处繁忙的京杭大运河。▽柔软卷曲的屋面© 得当设计
▽露台© 存在建筑
八坼源于大运河,那是八坼的根,我们希望在这个屋顶,大家能感受到大运河的存在,看到一个运河小镇的根。同时,我们也能在屋顶欣喜地感知到,运河对岸已经落成的苏大未来校区,将是八坼街道作为未来学镇的活力源泉。▽学镇会客厅眺望大运河以及苏大未来校区© 存在建筑
© 得当设计
站在会客厅的屋顶,既是寻根问祖的回望,也是开启未来的展望,“八坼从哪里来,又将去向哪里”,我们的追问,似乎已被解答。
▽总平面图© 得当设计
▽一层平面图© 得当设计
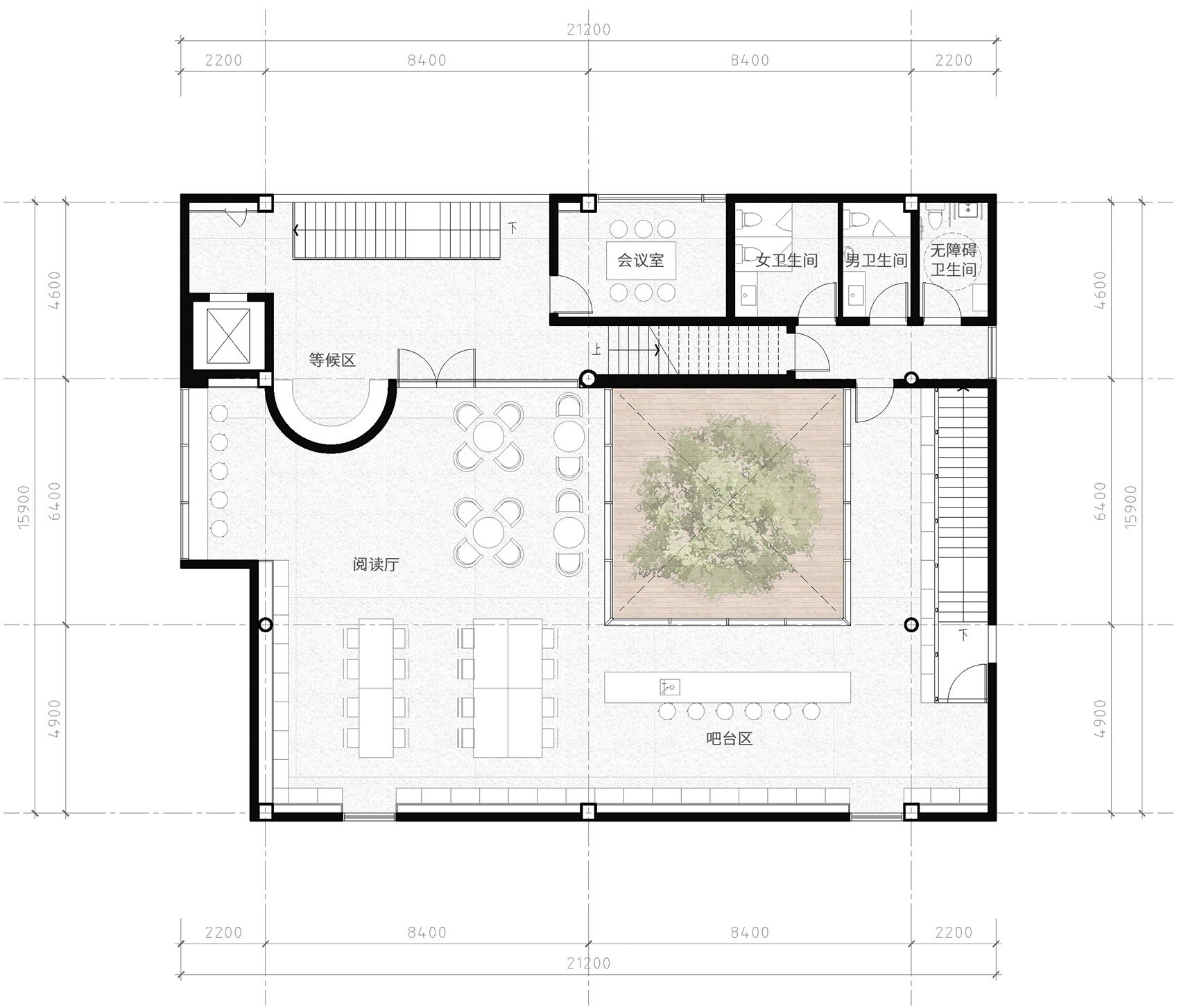
▽二层平面图© 得当设计
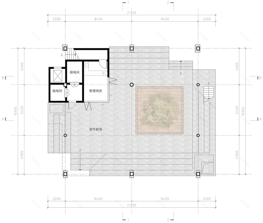
▽三层平面图© 得当设计
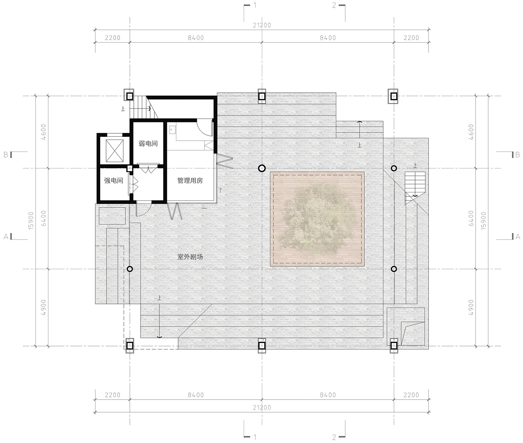
▽四层平面图© 得当设计
▽东南立面图© 得当设计
▽西南立面图© 得当设计
▽西北立面图© 得当设计
▽东北立面图© 得当设计
▽剖面图 1-1© 得当设计
▽剖面图 2-2© 得当设计
▽剖面图 A-A© 得当设计
▽剖面图 B-B© 得当设计
▽墙身详图© 得当设计
项目名称:苏州八坼学镇会客厅
空间类别:社区公共活动空间
项目地区:苏州市吴江区八坼街道
竣工时间:2022 年 7 月
建筑面积:484 平方米
业主单位:苏州市吴江区人民政府八坼街道办事处
设计单位:上海得当建筑设计咨询有限公司
策划合伙人:陈欣雨、蒋文超
设计合伙人:王俊锋、顾铮
设计团队:孙闻良、杨毓琼、刘章进、李亮
施工图设计单位:苏州东吴建筑设计院有限责任公司
施工单位:苏州千彩叶建设工程有限公司
建筑摄影:存在建筑
客服
消息
收藏
下载
最近



































































