查看完整案例

收藏

下载
用来自日本全国各地的木材搭建的建筑
本设施是建于东京2020奥运会和残奥会奥运村内的临时设施,由运动员、媒体、VIP和嘉宾等的互动交流空间及仪式空间构成。
▽项目概览© Gankosha
建筑所用的木材来自日本各地地方政府,经组装搭建成临时设施,奥运会结束后拆除并分别归还给各地方政府。此后,各地方政府将以其他形式加以再利用,这是一个充分考虑到回收利用、变废为宝的项目方案。
通过使用来自日本全国各地的木材建造这样一个设施,不仅以建筑表达了全日本上下一心支持奥运的热忱,还向国内外展示了日本国产木材的魅力。
▽建筑外观© Gankosha
▽道路视角© Gankosha
“独立建筑”与“通庭*”打造出的交流空间
本设施充分考虑到残障运动员和相关人员的使用,采用了单层建筑的形式,使其具有较高的可达性和普适性,任何人都能方便地使用。建筑被分成几个独立的单体,通过引入运河自然风的屋檐和作为缘侧(传统日式住宅中的檐廊)空间的“通庭”*将整个建筑整合为一体。
以传统日本房屋规模构筑的木框架结构,打造出兼具临时建筑的轻盈感和木材的柔和特质的奥运村,成就了展现日本魅力的节日盛典空间。
*通庭:在进深较大的京町家中设置的细长的庭院和通道。
▽鸟瞰:建筑被分成几个独立的单体©Nikken Sekkei Ltd
▽“通庭”剖面示意©Nikken Sekkei Ltd
▽“通庭”将整个建筑整合为一体© Gankosha
▽展现日本魅力的节日盛典空间© Gankosha
▽建筑间的通道© Gankosha
根据使用方式采用不同的结构形式
根据设施用途,采用了三种具备扩展性的结构形式。
办公室等狭小空间采用了由钢支撑与直角网格和斜交网格的组合梁构成的,具有抗震性能的格子梁结构。
不期望设置隔墙和支撑的大空间采用具备抗震性能的互承框架结构。组合柱由三根斜柱组合而成。
需要大跨度的新闻发布会场采用的是逐级去除树形角撑的拱桁架结构。
▽无隔墙的大空间© Gankosha
▽小尺寸空间© Gankosha
▽新闻发布会场© Gankosha
▽洗手间© Gankosha
四万余根木材的使用与管理
即便是同一树种,木材的强度和刚度往往也因产地而异。因此,除木材的规格外,还需在综合考虑木材的特征值、产地特性和材料供应能力的基础上,对所提供的木材进行合理分配。
所有木材均采用JAS标准,通过标示强度和含水率,将来自日本各地的木材品质差异均质化,从而明确了作为结构构件的木材规格标准。
各地方政府按照此标准,在当地进行伐木、干燥和加工,并根据建筑施工进度进行验收。使用完毕后,木材将依次归还给各地方政府,用于当地的休息区长椅等公共设施的建设。
▽来自日本各地的木材© Gankosha
▽水池视角© Gankosha
▽夜间鸟瞰© Gankosha
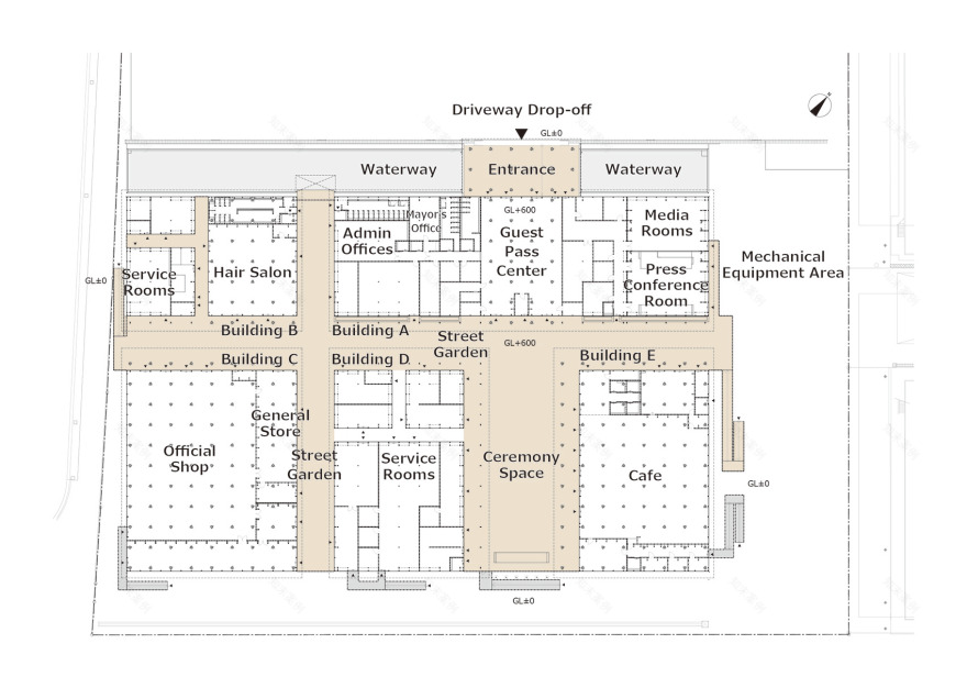
▽平面图©Nikken Sekkei Ltd
▽屋顶结构细部©Nikken Sekkei Ltd
▽立柱结构细部©Nikken Sekkei Ltd
项目名称:奥运村Village Plaza
项目业主:公益财团法人东京奥运会・残奥会组织委员会
项目位置:东京都中央区
主要用途:综合设施(欢迎仪式・商品销售・其他服务)
基本设计・实施设计:日建设计
用地面积:约14,500.2501349㎡
建筑面积:约5,300.2501349㎡
主体结构:木结构
建筑层数:地上1层
建筑高度:约6.95m
竣工日期:2020年
施工期间:2019年3月~ 2020年4月
施工单位:熊谷组・住友林业特定建设工事共同企业体
客服
消息
收藏
下载
最近






























