查看完整案例

收藏

下载
设计背景
西安曲江观光轻轨线是一条全长 6.8km、贯穿了大唐芙蓉园及曲江池遗址公园周边的观光线路。沿线分布 9 个站点及 1 个维修站点,上部是站体,下部是辅助商业及便民设施等。
2020 年,在大力推进城市更新的新背景下,为符合新曲江的形象,轻轨线路启动了沿线站点的更新改造工程(即曲江 5A 级景区旅游观光配套项目辅助工程)。
作为曲江富有特色的旅游新地标,改造除了满足轻轨本身的观光功能外,还需要重塑业态,活化城市空间。我们希望纳入对城市的关怀、建造的关切、人性尺度的追求,用温暖的城市公共空间去承载起市民、游客对这座城市的需求,使这些被遗忘的空间重新融入城市生活。
▽项目一瞥©吴清山
▽轻轨线及站点区位图示© DDB 秉仁设计
▽各站点改造前© DDB 秉仁设计
设计策略——城市驿站
由于每个站体所处的外部环境各不相同,作为公共建筑,站体一方面需要融于原有的城市环境肌理,一方面又可以强化自身环境的场所感,给予自身独特的空间属性。
▽立于繁忙路口的亮宝楼站© DDB 秉仁设计
▽与书店嵌合的大雁塔北广场站©吴清山
▽为公园提供荫蔽的唐城墙遗址公园西站©尹涵硕
我们通过研究各站场地环境的城市风貌肌理,归纳总结周边建筑形态及站点区位,将环境特点融入其中,设计与周遭建筑风貌、尺度、活动相呼应的站体空间;同时考虑曲江自然环境的特色,将建筑材料元素与之融合,做到建筑与自然的共生。
▽立于下沉广场与繁忙路口的一角©吴清山
▽隐秘在河岸柳树林里的花房——唐城墙遗址公园东站©吴清山
项目引入 TOD 模式进行综合设计,以小型轻轨公共交通为导向,混合多用途的功能开发模型,在站点的基本交通功能之外提供不同的城市服务功能,与站点的人居活动共生,打造具有城市昭示性且富含生命力的都市驿站。
▽富有烟火气的买手店:HLLLLK 浩李客 STANCE SHOP——唐城墙遗址公园西站©尹涵硕
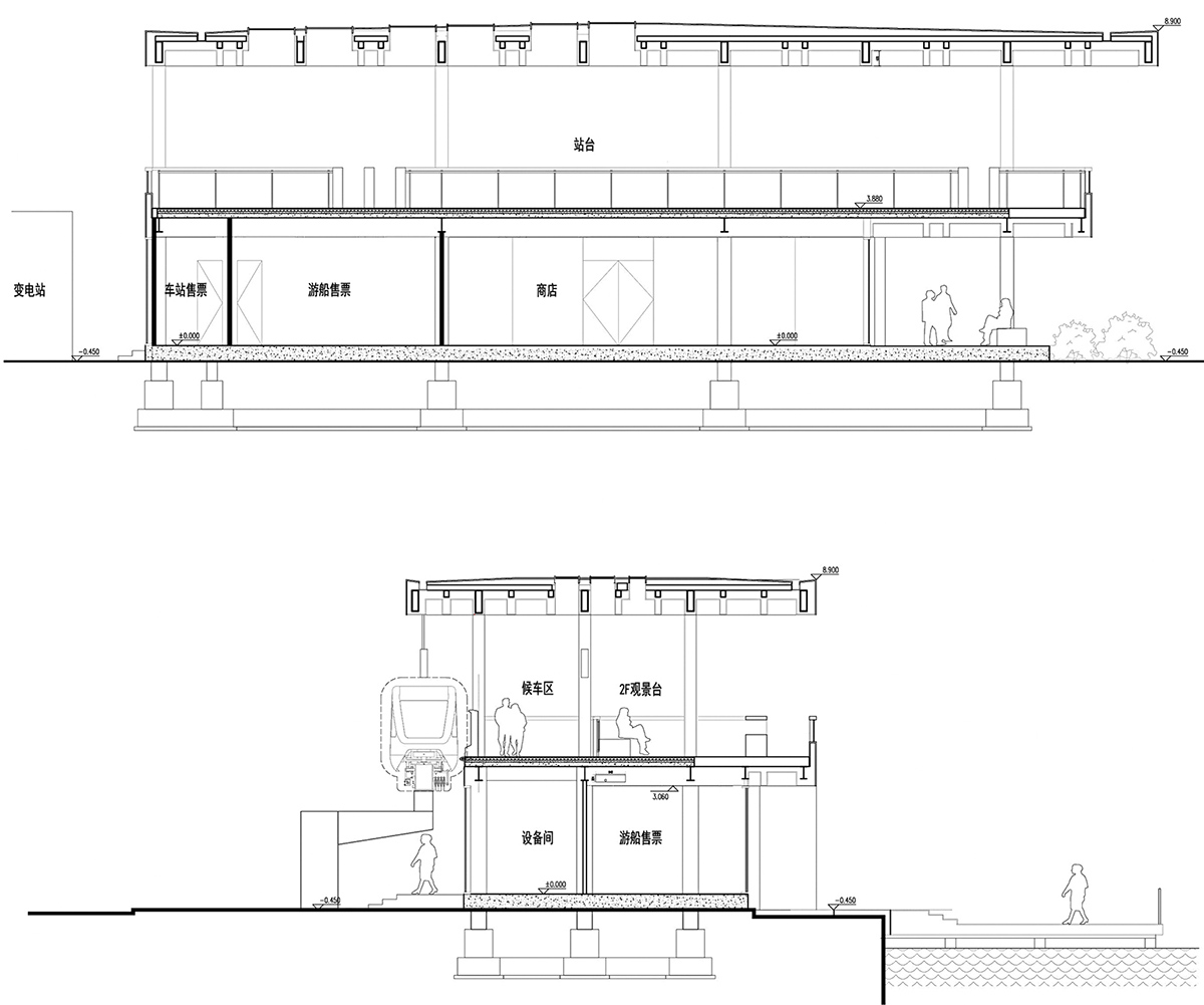
升级改造后的曲江轻轨各有千秋。上部是游客的月台层,曲江的空中游览由这里开启;下部是辅助商业,分别是买手店,咖啡厅,下午茶,酒吧,深夜食堂……打造多彩的乐活 IP。设计依据站体外部的风貌肌理、自然环境、社会活动等不同属性,将站点分为四大类型–乐活﹒亭、绿野﹒屋、水岸﹒特、风貌﹒存。▽站体顶层为月台层©吴清山
▽由于站体层高限制©尹涵硕
▽大雁塔北广场站© EA Club
“乐活·亭”类型包括唐城墙遗址公园西站、曲江池站、亮宝楼站以及大雁塔北广场站等四个站,他们都位于城市广场的一隅。乐活的理念,鼓励人们驻足停留。设计采用双层坡屋顶的形式,以大小屋面来化解 3 层的站体高度带来的尺度问题,使站点空间与周边空旷的环境相互协调。建筑以一种钢木混合的外观表达了自身的轻巧和温暖度,也很好地回应了西安当地传统建筑风貌和元素。面向广场的大面积展示面,打造城市中引人入胜的站点风景。
▽分析图© DDB 秉仁设计
▽广场一角的乐食天地——曲江池站©吴清山
▽钢木混合的外观表达了自身的轻巧和温暖度©吴清山
▽分析图© DDB 秉仁设计
▽公园一隅的乐活亭廊——唐城墙遗址公园西站©吴清山
▽外摆区域©吴清山
▽分析图© DDB 秉仁设计
▽街角的时尚小馆——大雁塔北广场站©吴清山
▽闹中取静的轻盈小苑——亮宝楼站©DDB 秉仁设计
▽亮宝楼站立面©吴清山
“绿野·屋”类型的站点置身于公园景区中,畅观楼站是典型的代表。基地背靠景区内充满绿植的山丘上,正面是公园小径。设计因势而为,提供了不同标高的休憩场所和充足的外摆空间。建筑呈现出森林小屋的外观,采用石瓦屋面,砌石墙面以及接近自然的立面木质材料,回应身处公园的“真实”。▽分析图© DDB 秉仁设计
▽依山傍林的森林小屋——畅观楼站©吴清山
“水岸·特”类型包含寒窑站和唐城墙遗址公园东站两个站点。改造重点利用临水的环境优势,打造易于观景的空间,以及与水岸相协调的建筑形式。▽利用湖景及环境优势©吴清山
▽隐于水岸的玻璃屋——唐城墙遗址公园东站©吴清山
“风貌·存”包含大唐芙蓉园东站©吴清山
▽采用帘幕的理念©吴清山
各站点还设置了卫生间、座椅、智能设备等便民功能,同时分别设置用以休息、充电的功能空间,做到对环境、功能和使用者的响应。▽以轻盈的构造和序列©吴清山
▽鸟瞰©吴清山
构造研究
为了更好地平衡改造效果和成本之间的矛盾,我们将既有墙面及梁柱外包拆除恢复到原有钢结构状态,同时将月台层原有的柱梁重新替换成新的钢构以适应不同站体的结构效果。
▽站体拆改过程© DDB 秉仁设计
建筑以钢构包木作为主体构造形式,吊顶采用裸露的钢梁结合复合木板及木纹铝板,屋顶选用金属直立锁边及石瓦屋面,以这样的搭配方式,还原真实的建造逻辑。在公共月台近人尺度可视的角度,设计进一步研究了端部的变截面处理及收边材料的选择,实现轻薄的檐口效果。
▽典型屋顶构造系统© DDB 秉仁设计
▽改造后月台层效果——唐城墙遗址公园西站©吴清山
▽立面细部——亮宝楼站© DDB 秉仁设计
▽典型剖面分析 Section analyses© DDB 秉仁设计
城市空间最有趣的一点就是将建筑嵌入城市环境当中©尹涵硕
▽插画:曲江轻轨全线站点一览 ©三猴一马家(DDB 秉仁设计)
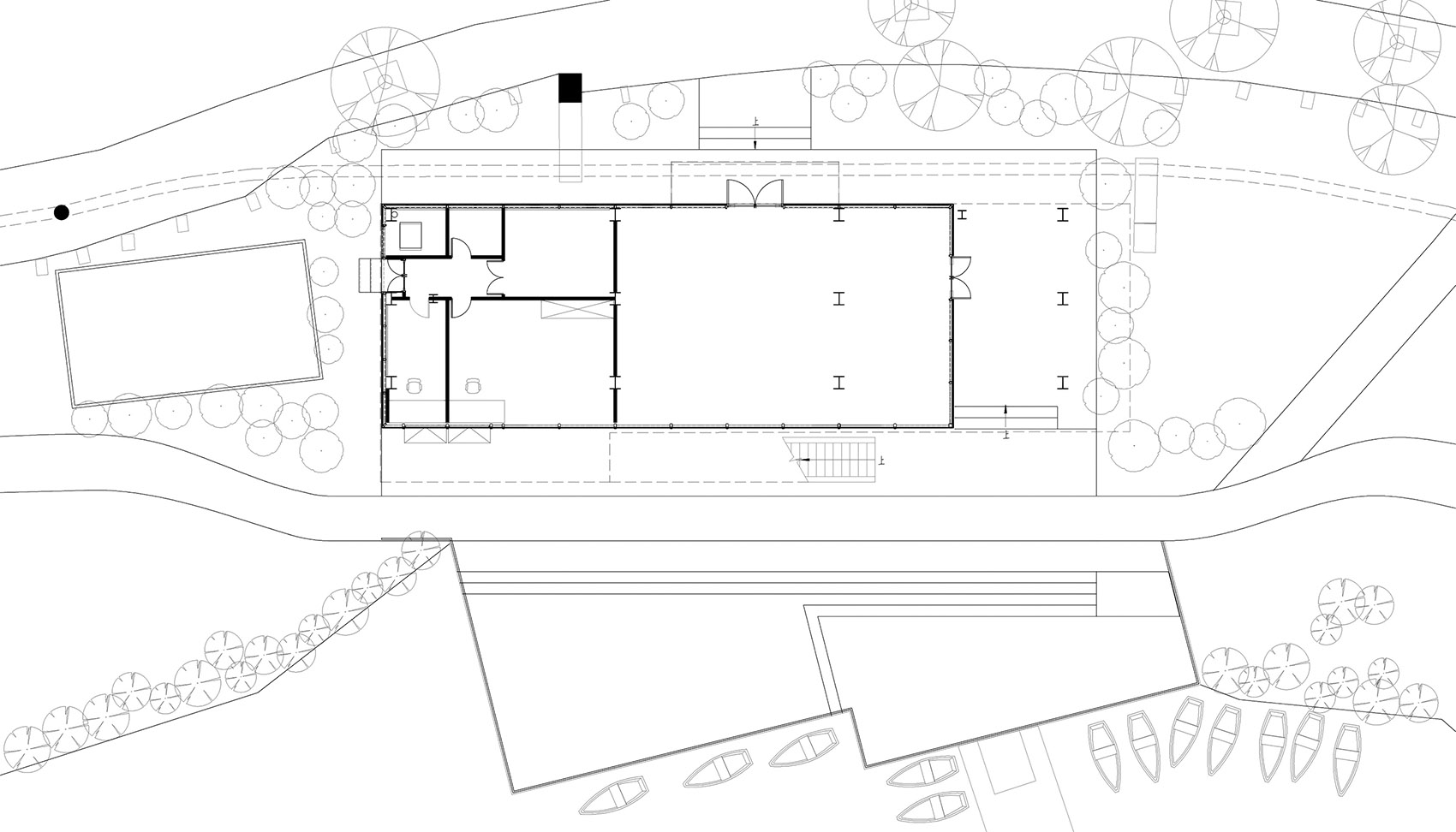
▽大雁塔北广场站一层平面图© DDB 秉仁设计
▽大雁塔北广场站二层平面图© DDB 秉仁设计
▽大雁塔北广场站三层平面图© DDB 秉仁设计
▽大雁塔北广场站立面图© DDB 秉仁设计
▽大雁塔北广场站剖面图© DDB 秉仁设计
▽寒窑站一层平面图© DDB 秉仁设计
▽寒窑站二层平面图© DDB 秉仁设计
▽寒窑站立面图© DDB 秉仁设计
▽寒窑站剖面图© DDB 秉仁设计
项目名称:曲江旅游观光轻轨站点改造提升
设计方:上海秉仁建筑师事务所(普通合伙)
项目设计 & 完成年份:2020 年-2022 年
总建筑师:马庆禕
设计团队:滕露莹、林家豪、张庭维、黄紫璇、徐荣耀、邵鹏、邵帅、吴彬彬
项目地址:陕西省西安市曲江新区
建筑面积:6997.2501349m²
摄影版权:吴清山、尹涵硕、DDB 秉仁设计
施工图设计:中联西北工程设计研究院有限公司
幕墙设计及施工总包:紫旭建设工程有限公司
结构顾问:吴宏磊、吴昊
景观设计:陕西保利园林建设有限公司
泛光设计:西安明源声光电艺术应用工程有限公司
客户:西安曲江旅游投资(集团)有限公司
品牌:木纹铝板(陕西铝幕墙新材料有限公司)
玻璃 (陕西晶峰玻璃有限公司、洛阳北方玻璃技术股份有限公司)
铝型材 (奋安铝业股份有限公司)
客服
消息
收藏
下载
最近

























































