查看完整案例

收藏

下载
温泉, 南宁, 中国
建筑设计:先进建筑实验室, 原榀建筑
面积:340 .2501349m²
项目年份:2016
摄影师: 存在建筑
主创建筑师:穆威/先进建筑实验室(AaL)、周超/原榀建筑事务所
委托方:岚川投资
City:南宁
Country:中国
南院位于广西壮族自治区南宁市马山县古零镇羊山村三甲屯,顾名思义南方的院子。这个自然村屯宁静而朴素,长久以来生活着黄、梁、唐三个姓氏的族群,由此得名三甲。这里有着举世无双的喀斯特地貌,四周青山苍翠,形成一道道绿色的屏障,群山之下,小河环伺,缓慢地从村子中流淌经过,河边有游泳的孩子,洗菜的大姐,洗衣服的大妈…耳畔是远远飘过来的三声部民歌,清澈婉转,显得那么恬淡美好。
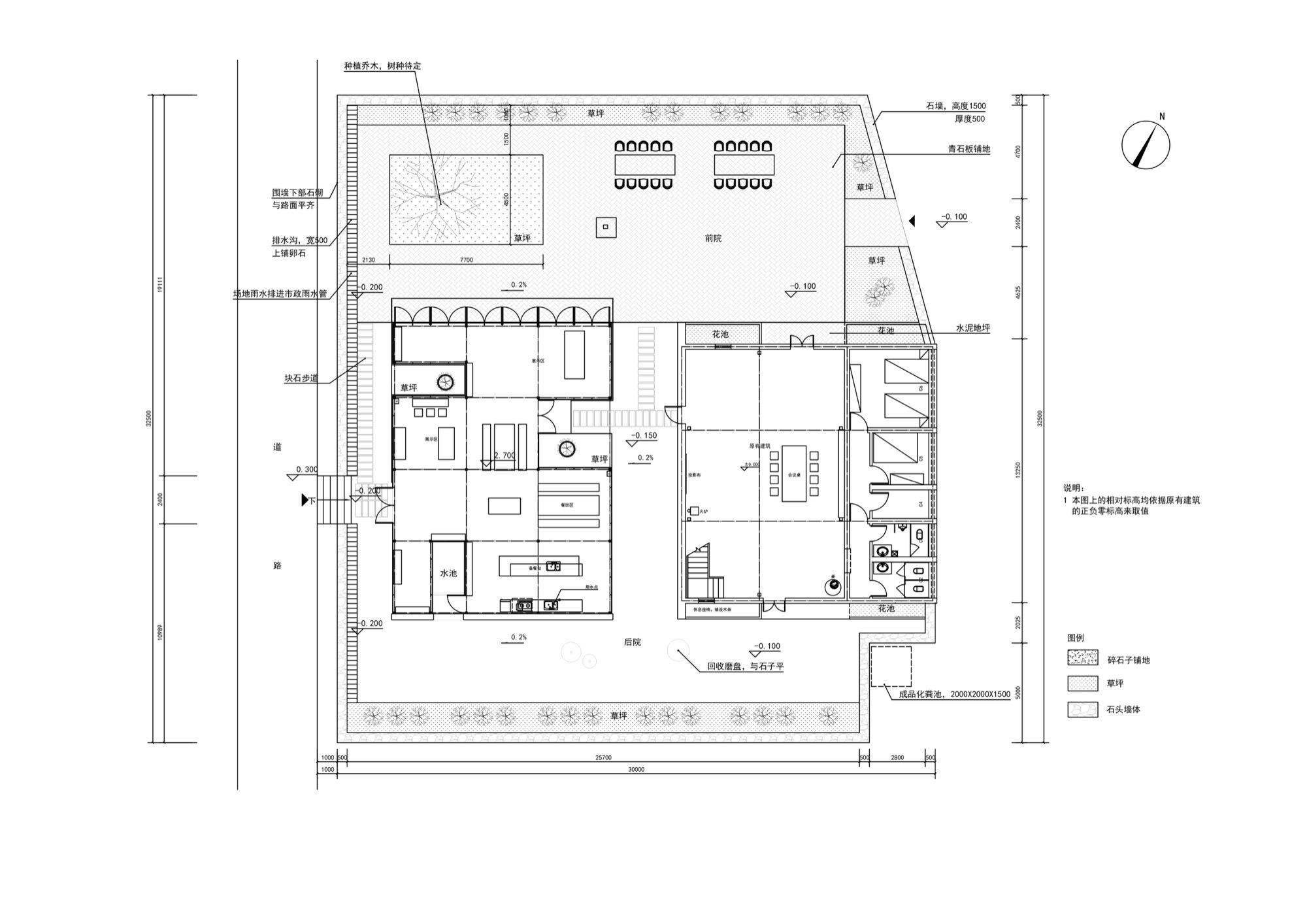
南院的诞生始于三甲屯的美丽乡村改造工程,在大刀阔斧的村落改造中,村里的老房已经悉数被拆除,只留下小河边的一栋孤零零的土砖老房,掩隐在一片玉米地里。这座老房原是一栋私人住宅,有着超过60年的历史,房屋的主人曾进行过几次修缮,最终还是将之废弃,在河对岸新建了一栋三层砖混住宅。这座老房子的土砖墙斑驳不堪,局部已经坍塌,内部空间逼仄而且幽暗。但令人惊讶的是朝向小河的山墙非常完整,其屋顶的坡度近乎45度,在远处苍翠的青山掩映下,以及周围新农村住宅的包围下,显得分外特别。
业主黄老师生活在南宁,一直致力于在广西开展乡建和儿童自然教育活动。在她的坚持和努力之下,这座老房子得以完整保存,成为这个村屯唯一的记忆。南院是城市和乡村的连接体,设计策略上建筑师采用一老一新的模式:将老房子完整改造,并在边上的空地上建造一个新的开放式建筑。
因老房子的内部纵横墙体较多,空间狭窄,建筑师将老房子的内部墙体拆除,植入了钢结构形成大空间,并且增加了夹层。钢结构和砖墙混合称重,支撑着新的屋顶,也让有坍塌风险的墙体变得更加稳定。工人们将墙体拆下来的土砖替换到已经坍塌的墙体上,同时小心翼翼地拆除屋顶的瓦片,又小心翼翼地重新铺设上去。老房子新旧材料交织,土黄色的砖,白色的钢构架,木色的屋面板,形成了画廊空间般的艺术效果。阳光从天窗倾泻而下,游弋的光影让人感受到时光荏苒,也让这栋花甲之年的老房子重新了焕发新的生命。
老房子邻近小河的一侧原来是一片玉米地,建筑师在这里新建一栋建筑,将老房子的功能和空间进行扩展。为了不破坏老房子的山墙面,将新房子脱开布局,而且墙体大面积采用玻璃,保证了视线的穿透,同时用新建筑的轻盈来衬托老房子的厚重。新建筑的主体结构采用高强竹纤维复合材料,纤细的构件如同木材,显得无比温暖。新建筑沿各个方向设置了不同尺度的庭院,伴随着不同透明度的玻璃,近远之处优美的景色如影随形。新建筑仅在厨房一侧设置黏土砖墙,与老房子进行着材料上的对话。历经岁月之后,这两个建筑的砖墙都会产生同样的痕迹。这两栋建筑一个新一个旧,一个厚重一个轻型,彼此对照又彼此呼应。
南院落成之后,村民们虽然不太明白为什么在村里要修建这样的房子,但他们都说很喜欢这里,因为老房子的一砖一瓦都非常的熟悉,而新房子则显得很亲切。村里的孩子都喜欢来这里,因为这里有很多个院子,他们可以无拘无束的穿梭奔跑、玩耍、看书和发呆;经常有游客闲逛至此,发现这里完全开放,富有生活气息,他们会休息片刻,拿出相机留影。
南院是三甲村最后的老房子,见证着村落历史的变迁,也以全新的生命姿态继续守望着这无比秀丽的自然。
项目完工照片 | Finished Photos
设计师:先进建筑实验室
分类:温泉
语言:简体中文
客服
消息
收藏
下载
最近







































