查看完整案例

收藏

下载
社区中心, San Francisco, 美国
建筑师:Mark Cavagnero Associates , Skidmore, Owings & Merrill
面积:504 ft²
项目年份:2019
摄影师: Matthew Millman, Tim Griffith, Cesar Rubio
厂家:Bok Modern, Skyfold, Terrazzo & Marble
设计团队:Craig Hartman, FAIA, Design Partner. Carrie Byles, FAIA, Managing Partner. Mark Sarkisian, PE, SE, Structural Partner. Keith Boswell, FAIA, Technical Partner. Mark Schwettmann, AIA, Design Director. Steven Sobel, FAIA, Managing Director. Eric Long, PE, SE, Structural Director. Kye Archuleta, AIA, Project Manager. Kotting Luo, AIA, Design Architect. Sandi Greig, AIA, Technical Architect. Neville Mathias, Structural Engineer. John Gordon, Structural Engineer.
客户:City and County of San Francisco. San Francisco General Services Agency–Conventions and Facilities Department. Moscone Expansion District
合作建筑师:Mark Cavagnero Associates
项目管理:San Francisco Travel
施工管理:San Francisco Public Works
施工方:Webcor Builders
结构顾问:Tipping Structural Engineers
市政顾问:Sherwood Design Engineers, WSP
Mep:WSP
景观设计:CMG Landscape Architecture
灯光顾问:HLB Lighting Design, WSP
声学顾问:TEECOM
City:San Francisco
Country:美国
设计师描述 | Designer description:
Moscone 中心是一个光线充足的宽敞空间,可以容纳和会议相关的各种活动,同时它把典型的封闭性游客功能与城市公共生活紧密联系在一起。扩建部分由SOM与Mark Cavagnero Associates共同设计,在保持现有建筑正常运营的同时,分多个阶段进行建造。
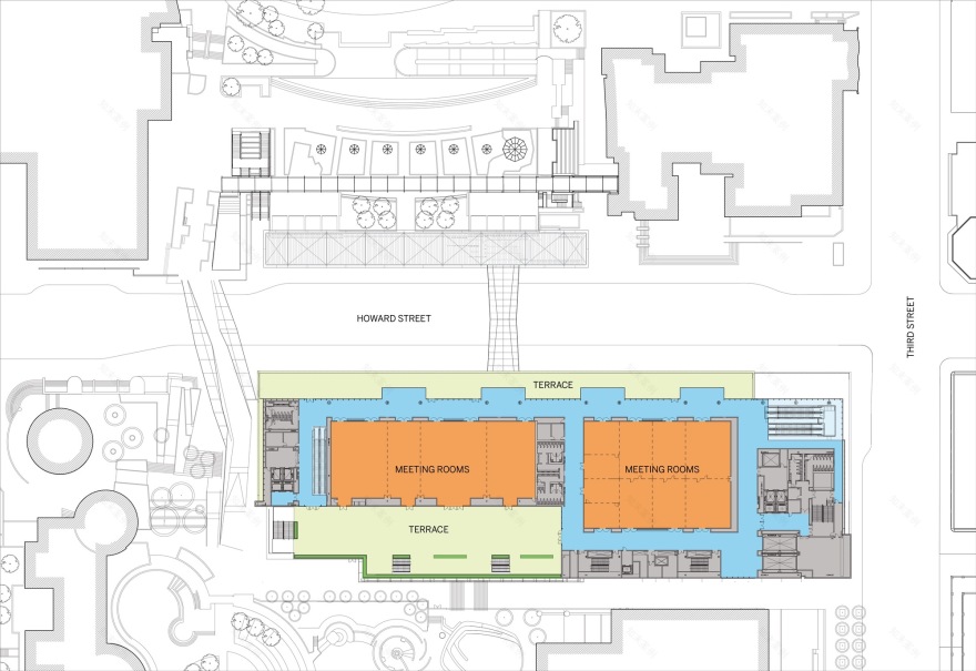
Moscone 中心位于旧金山市场街南区的中心地带——这里也是旧金山现代博物馆、墨西哥博物馆、非裔移民博物馆(MoAD)和现代犹太博物馆的所在地。Moscone会议中心的两部分分别位于Howard街两侧的两个街区,在访客量较大的Yerba Buena花园和儿童花园之间,占地共约8万平方米。
Moscone 中心通过一个清晰的漂浮在地面上的水平形象,创造了一个崭新的、适应社区的形象。以白色金属为框架,填充透明的玻璃熔块,使得内部循环流线沐浴在过滤光之中。这些立面幕墙的图案巧妙地创造了鲜明的特色,同时最大限度地减少了内部的人工照明。
在地表,从前空旷或退让的临街立面现在仅靠人行道;新的游客中心、零售空间、大厅和近23米高的中庭现在拥有最大的透明度和渗透性。在空中,一个在黑夜发光的雕塑般的屋顶横跨Howard街,并构成了四个新露台中的一个。它创造了天际线的视野并且强调了建筑的水平比例。Moscone 中心是美国体积最小、最高效、最可持续性的会议中心之一。
它是人均碳排放量最低,也是美国唯一一个获得LEED白金认证的会议场所。它的太阳能电池板也是旧金山面积最大的,足以提供该会议中心近20%的电力。它也有非常出色的地下水管网和中水处理系统,相比于之前,扩建后建筑的用水量明显减少,这使得有足够的剩余的水量来灌溉Yerba Buena公园和供街道清洁使用。
文字描述由建筑师提供
译者:刘杨雨 Yangyu Liu
项目完工照片 | Finished Photos
设计师:Mark Cavagnero Associates
分类:社区中心
语言:简体中文
客服
消息
收藏
下载
最近


















