查看完整案例

收藏

下载

翻译
Architects:Barbara Berson
Area:230m²
Year:2016
Photographs:Javier Agustín Rojas
City:Los Cardales
Country:Argentina
Text description provided by the architects. Upon arriving at the site, it was surprising to find ourselves in front of the presence of three majestic trees located in the central place. At that moment, I imagined that the house should embrace those monumental conifers. They would be responsible for structuring the architecture and endowing it with the "time" factor, through the wrinkles of their bark, their transformations throughout the seasons, and their swaying with the wind.
The house respects the land where it stands through piles that barely pierce it and allows the existing huge roots to run underneath.
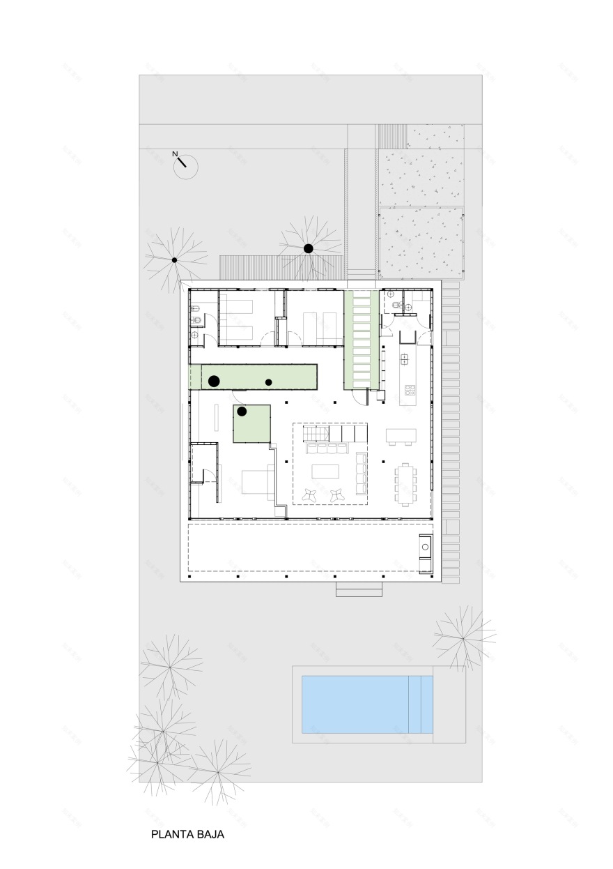
The space is conceived as a platform of shadows, where a process of hollowing out begins and light appears inside through three courtyards.
From the outside, we observe a series of veils of oxidized pieces that envelop the body of the architecture. Spaces are suggested through opacities and transparencies. They provide privacy and allow for a fulfilling family life.
The space was conceived as a grid of modulated and continuous columns. This system arises from the exploration for connectivity between domestic spaces and the natural environment. Interior and exterior merge through three courtyards that are responsible for shaping and providing privacy to the different environments.
The first courtyard is revealed through the ceremony of accessing the intimate space. A natural bellows encourages leaving behind the noise of the city and prepares us to enter the world of privacy in search of self-construction.
The other two courtyards mediate between the public and private areas, housing the existing trees inside them. Light, vegetation, and the environment penetrate from the outer diaphragm to the interior of the domestic. Rain, sun, birds, falling leaves participate in the daily routine of living.
The partitions separating the spaces are lightweight, allowing the system to disassemble and assemble them with great ease, allowing for great adaptability of use and flexibility in the spaces to be redefined over time.
The pergola acts as a fold between the house and the garden, creating a cool place for family gatherings on summer days.
A double-height glazed box is located above the living space, where the painting studio is housed. From this site, the vertical extension of the trees with their culmination in the lushness of the canopy is contemplated.
A terrace is developed over the entire house for the enjoyment of its inhabitants in dialogue with the trees. It will have an active use within the functioning of the dwelling. It will be responsible for recovering rainwater for irrigation and, through a layer of substrate and vegetation, will act as thermal insulation to achieve greater comfort.
In this place, we discover an unexpected, intimate terrace that reclaims the land where it stands. We navigate paths bordered by Pampas grass to reach clearings of native vegetation that attract butterflies and hummingbirds. From here, sunsets and full moon nights are contemplated.
Project gallery
客服
消息
收藏
下载
最近



























