查看完整案例

收藏

下载
建筑, 中央区, 日本
建筑师:大成建设集团
面积:7908 .2501349m²
项目年份:2016
摄影师: KOKYU MIWA ARCHITECTURAL PHOTOGRAPHY
厂家:Toto, AutoDesk, Bunka Shutter, Fujisash, Matsuhita Sangyo, Nemetschek, TAKAHASHI CURTAIN WALL CORPORATION, Toli Corporation
设计团队:大成建设集团
立面设计:Sylvain Dubuisson
业主:CHUO BUILDING Company Limited
City:中央区
Country:日本
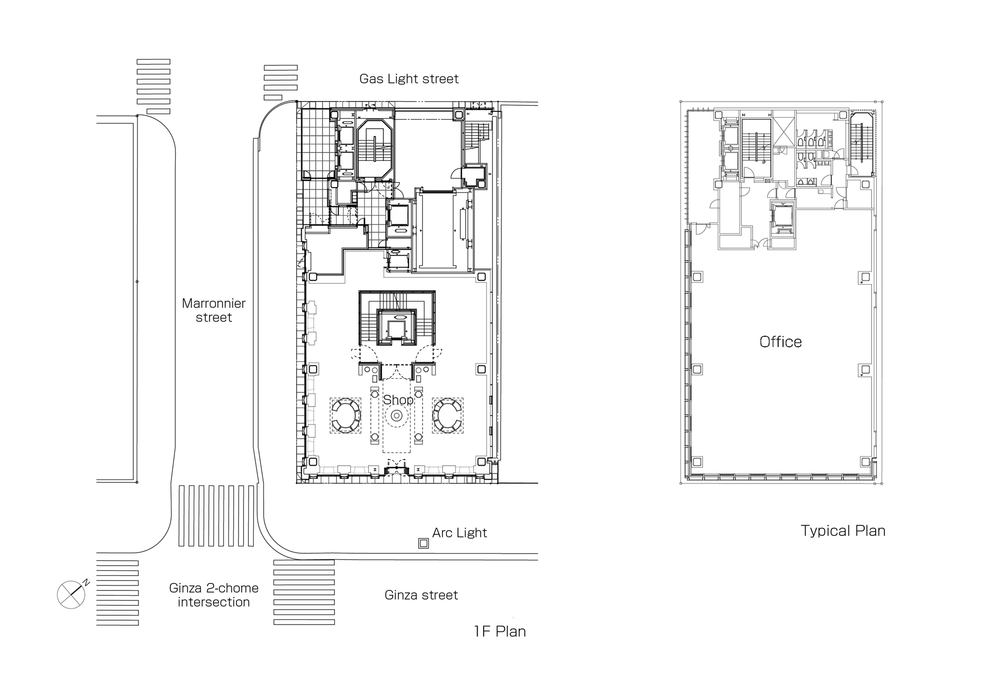
大仓本馆作为银座的第四代建筑,寻求着传统和创新的进一步共同发展。它是第四代“大仓本馆”,其历史可以追溯至明治时期。建筑与其他知名品牌的大楼平齐,屹立在银座二丁目的“白金”角落。
这里也是大成建设集团的起源地。东京都会区频繁发生的大地震引起了越来越多的关注,而上一代大仓本馆则成为抗震能力强的建筑代表,其先进设施支撑了租户的事业继续计划。第二代大仓本馆曾在1923年的关东大地震以及第二次世界大战中中存活,它坚毅不倒的精髓也保留到了第四代建筑中。水平和垂直的百叶窗分别安装在面向中央大道和马罗尼街的立面以及在电梯大厅侧,以此控制光线的进入以及降低空调运作的成本。这栋建筑在银座传统城市景观与不断发展变化的建筑间取得了良好的平衡。灵活的立面设计也展示了它不一样的特点。
卡地亚银座精品店在建筑的一到三层,立面的石材与金属则给人以巴黎卡地亚总部的感觉。建筑四层以上则由木纹框架装点,外观呼应着糊纸木制窗门障子(shoji)的形式,立面在日光的映射下和夜晚的照明中会产生不同的氛围。建筑物中包含着奢侈品牌门店,因此“表皮附件”则让立面更具有灵活性,以此让未来外部的装修变得容易。
建筑采用了先进的防震装置。建筑师开发了一种节约空间的屋顶减震器,可以减少地震引起的摇摆。这些设施将安装在天花板的立柱与横梁之间,在不影响个人使用空间的情况下提高安全性。
译者:黄菁菲 Jingfei Huang
项目完工照片 | Finished Photos
设计师:TAISEI DESIGN Planners Architects \u0026 Engineers
分类:建筑
语言:简体中文
客服
消息
收藏
下载
最近
























