查看完整案例

收藏

下载
引言
回溯这一国家级建筑的诞生历程,设计以“形神均衡、精在体宜”的全盘策略勾勒厚重的历史轮廓。从大道至简的几何构型选取,到体宜得当的文脉赓续与细部雕琢,乃至谨慎地回应复杂问题的合宜策略,中国第二历史档案馆新馆以一种恰到好处的均衡姿态兼顾了国家建筑的形象、档案安全的保障和自身特色的表达,以开明的建筑观构筑一座嵌入城市空间、投射历史记忆的纽带式文化地标。
▽总体鸟瞰©是然建筑摄影
▽沿街形象©是然建筑摄影
城市的户枢
坐落于南京的中国第二历史档案馆,是中共中央直属的三家国家级档案馆之一,是我国最重要的集中保管和利用民国时期档案的机构。二史馆新馆选址于南京市秦淮区南部新城的大校场区域,总建筑面积 8.8 万平方米。新馆的落成对于提升我国馆藏档案的保护利用水平、推动历史文献研究和文化繁荣发展具有重要意义。
▽设计生成©同济大学建筑设计研究院(集团)有限公司
▽总体鸟瞰©是然建筑摄影
两条城市轴线的交汇造就了项目用地的不规则形状,强烈的约束条件既为设计的布局和形体选择提出了挑战,也暗合了新馆建筑立足新城、承载历史的建设背景。设计认为本项目需要以一个各向均等的均衡形体,扮演户枢角色,完成轴线转折的衔接与两种城市肌理的过渡,同时契合用地轮廓、消解异形边界带来的不利影响。▽南立面沿街形象©是然建筑摄影
轮廓与气韵
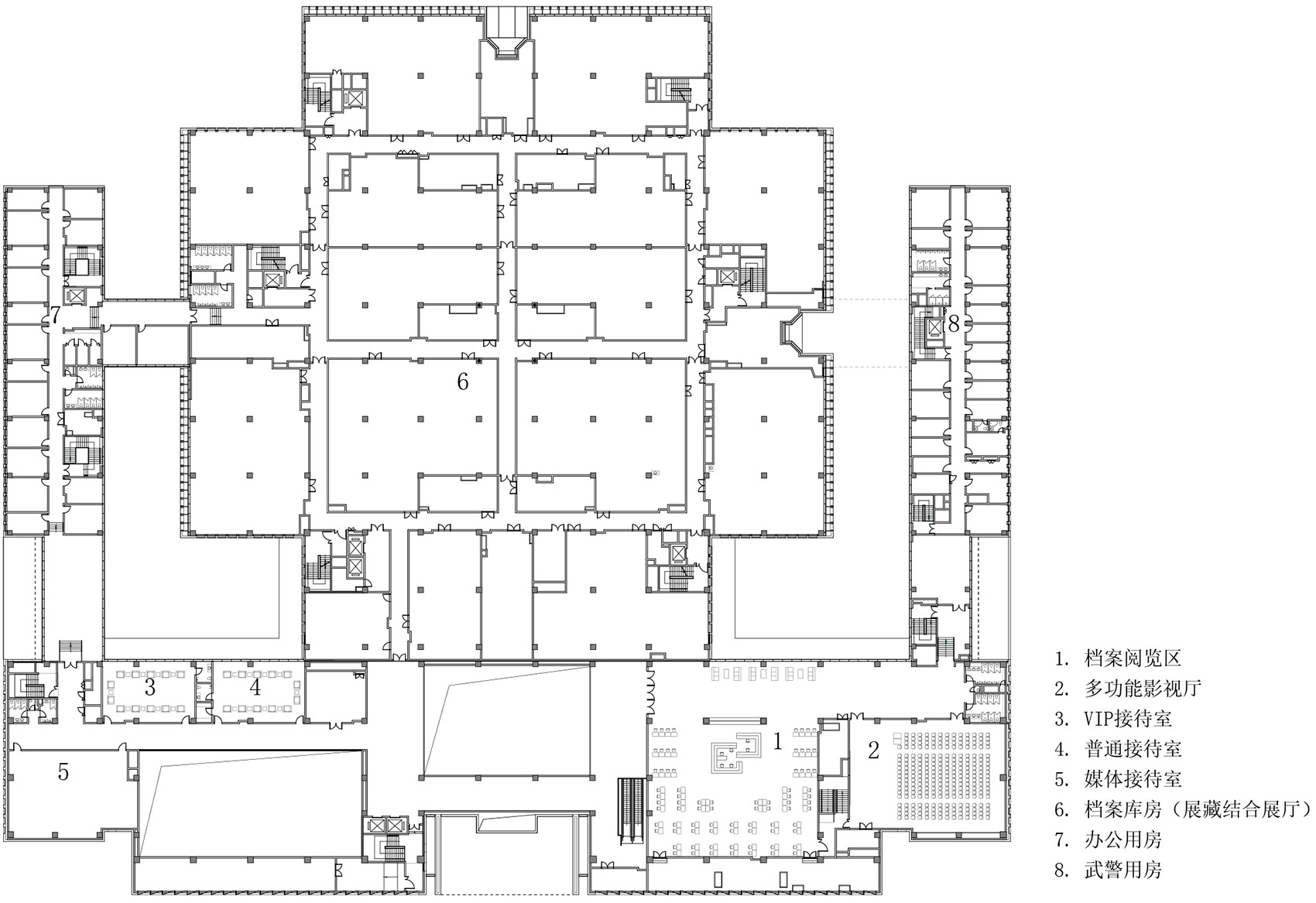
设计的生成从功能出发。占总建筑面积 70%以上的库房主楼被放置在基地中央,公共、办公和武警三大功能板块按照不同开放程度,环绕中央库房形成拱卫式格局,在库房楼外围形成安全防护屏障,同时均可独立地与库房功能连接。形体的收放巧妙地呼应了不规则基地形状和周边复杂的城市肌理,也为简洁的体量带来了不同视点的丰富变化,以稳重的姿态展现大国形象。
▽西南街角整体形象©是然建筑摄影
▽错落有致的建筑形体©是然建筑摄影
▽建筑公共礼仪主入口©是然建筑摄影
水院与树院
在拱卫式的环绕布局之下,出于档案库区独立的安全性保障和近人尺度空间塑造的考虑,设计将西侧办公裙房和东侧武警裙房分别与库区主楼拉开了一段距离,在其间布置了两处条形内院,使得不同的功能区块与库房主楼之间天然形成了一个缓冲隔离带,内院的设置也为裙房中的使用者提供了良好的景观对景。两个内院分别被赋予了静谧禅境的“水院”主题,和盎然优雅的“树院”主题,使得国家级建筑在保持庄重感的同时,在其内部也具有了建筑所处的江南地区的庭院空间的温润气质。
▽水院与树院©同济大学建筑设计研究院(集团)有限公司
▽水院内景©是然建筑摄影
▽树院内景©刘章悦
文脉的映射
现有二史馆老馆是南京最具代表性的民国建筑之一,老馆建筑与其所藏的民国档案均是珍贵的文化瑰宝。始建于上世纪 30 年代的老馆建筑由建筑大师杨廷宝先生主持设计,老馆建筑的经典元素是二史馆几代人的重要历史记忆。
▽杨廷宝先生主持设计的老馆©刘章悦
▽新馆立面格子元素与老馆花格窗棂的文脉呼应 ©是然建筑摄影(左)©刘章悦(右)
设计以取其神韵、点到即止的策略体现民国文化元素©是然建筑摄影
▽格子表皮与内院空间©是然建筑摄影
立面材质以我国自产的暖色石材,点缀紫铜板,呼应了老馆暖墙与琉璃的色彩元素,同时也与我国古代用以储存档案的“石室金匮”的材质暗合与呼应。▽精在体宜的丰富形体©是然建筑摄影
The facade material uses locally produced warm-colored stone and highlights it with copper plates, echoing the color elements of the old building’s warm walls and glazed tiles while also nodding to the material of “stone rooms and golden chests” used in ancient China to store archives.
▽石材与紫铜的立面材质©是然建筑摄影
档案库主楼立面因功能要求鲜有开窗,设计巧妙地在实墙立面之外设置了一层格网状的石材格栅表皮,通过阳光与影子的对话雕刻细部。双层表皮与单层表皮的立面间或出现,在稳重的基调下增添了精致的细节肌理和建筑表情,同时蕴含独有的文化记忆。▽虚实相间的双层石材表皮©是然建筑摄影
▽民国柱廊元素的现代演绎©是然建筑摄影
格构的几何
建筑内外处处可见的“格子”的构图元素是对老馆丰富的花窗与藻井等中国传统建筑元素的致敬和抽象表达,从室外立面、屋顶格栅到室内天窗、吊顶等位置,再到门窗细部的装饰纹样中均有运用,建筑的构图元素内外高度统一,传承老馆记忆。
▽多次出现的格构几何母题©是然建筑摄影
▽多次出现的格构几何母题©是然建筑摄影
▽多次出现的格构几何母题©是然建筑摄影
内部的空间
在内部空间的塑造上,因为功能所限,公共人流被限制在南裙房较小的活动区域。设计通过主入口通高中庭的设置和格构天窗的引入,营造了一个连缀两侧公共功能的礼仪性空间核心,结合墙面的花格装饰序列和顶部天窗的矩阵式光影形成空间氛围上的节奏感,楼梯、扶手等细部的打磨体现出了设计对于比例的极致推敲,在有限的公共面积中营造出了“小中见大”的丰富空间体验。
▽剖轴测图©同济大学建筑设计研究院(集团)有限公司
▽公共中庭空间与天窗光影©是然建筑摄影
▽公共中庭空间与天窗光影©是然建筑摄影
占据最大比例的库房区在空间划分上同样延续了格网状划分的母题元素,“模块式”布局沿形体轮廓边界将每个标准层最多划分成若干个相对独立的管理单元,可分可合、未来可根据同类库房功能自由划分管理单元,同时位于环廊以内的库房呈现“内胆式”布局,用以储存重要档案,在安全和温湿度控制上均更具优势。▽天窗与铜花格装饰细部©是然建筑摄影
▽贵宾接待厅与藻井宫灯的现代演绎©是然建筑摄影
▽贵宾前厅空间©是然建筑摄影
结语
中国第二历史档案馆新馆的设计,摒弃追求夸张形式带来的感官刺激,而是以一种均衡、平和、含蓄的态度,通过设计手法上的大开大合,用简洁的轮廓和丰富的细部营造出了一种国家级建筑应有的规制严整的典雅气韵。同时通过空间的布局和新技术手段的引入打造了一座安全稳固的档案堡垒,为我国“存史、资政、育人”的档案事业贡献力量。
▽主入口细部©是然建筑摄影
▽主入口细部©是然建筑摄影
▽总平面图©同济大学建筑设计研究院(集团)有限公司
▽一层平面图©同济大学建筑设计研究院(集团)有限公司
▽二层平面图©同济大学建筑设计研究院(集团)有限公司
▽南立面图©同济大学建筑设计研究院(集团)有限公司
▽剖面图©同济大学建筑设计研究院(集团)有限公司
事务所名称:同济大学建筑设计研究院(集团)有限公司
项目名称:中国第二历史档案馆新馆
项目位置:江苏/南京
领衔院士:郑时龄
项目总负责人:曾群、文小琴
建筑设计:曾群、文小琴、杨旭、姚晟华、孙少白、刘章悦、王翔、佘翔、张弥弘、黄兰琴、董艳姣
结构设计:万月荣、吴宏磊、季跃、陈凯、于发杨、王晓明、陈曦、吴树勋
给排水设计:杜文华、施锦岳、张恺
暖通设计:刘毅、周谨、邵华厦、朱青青、苏州
电气设计:包顺强、谢文黎、尤文捷、马致祥、纪晨曦、张政
造价咨询:庞晓琳、周凌俊、臧俊隆
基地面积:40028.2501349㎡
建筑面积:88752.2501349㎡
结构形式:混凝土框架结构
设计周期:2020.4-2020.12
建造周期:2020.12-2023.2
建筑摄影:是然建筑摄影
客服
消息
收藏
下载
最近





































