查看完整案例

收藏

下载
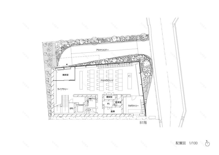
AEAJ Green Terrace:日本芳香环境协会的新设施。
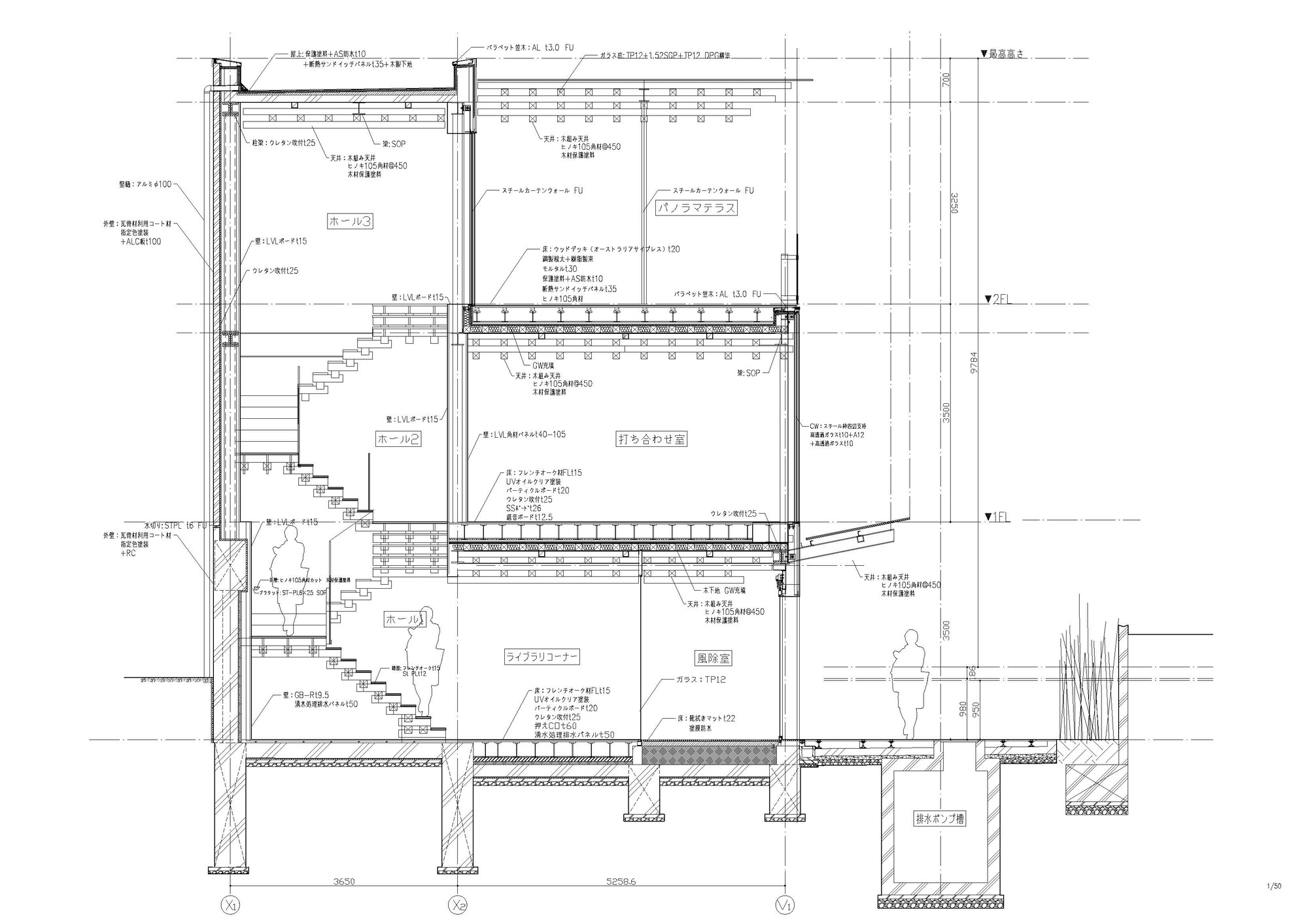
以木香为主题,使用日本扁柏的小断片(105mm×105mm)组装成一棵树的整体形状,并将其封装在玻璃盒内。 这个玻璃盒子充满了木头的香气,营造出可以在整个设施中体验香气的空间。
主体结构由钢框架构成,但钢构件的尺寸被缩小,使其接近木构件的小截面,试图与颗粒独特、细腻的感觉融为一体。
露台的结构就像一个平衡玩具,可以看到神宫前森林的开阔全景。 设计过程的重点之一包括将小木颗粒组合起来,创造出一种轮廓模糊的结构,类似于艺术和手工艺项目,与丹下健三设计的代代木国家体育馆形成鲜明对比,后者可以在铁轨上看到 。
项目设计:Kengo Kuma & Associates
项目面积: 491.2501349m²
项目年份:2023
项目摄影:Masaki Hamada (kkpo)
Construction Team:Matsushita Industry
Facility Engineering Design:Kankyo Engineering INC, Kankyo Engineering
Lighting Designers: Daiko Electric, Daiko Electric Company Limited
设计团队: Minoru Yokoo, Yutaro Ota*, Nanako Adachi*, Yohei Mochizuki, Fumiya Kaneko, Yoo Shiho, Kyoko Mase
Cooperation: Ejiri Structural Engineers
项目成市: Shibuya City
项目国家: Japan
设计师:Kengo Kuma \u0026 Associates
语言:英语
客服
消息
收藏
下载
最近




















