查看完整案例

收藏

下载
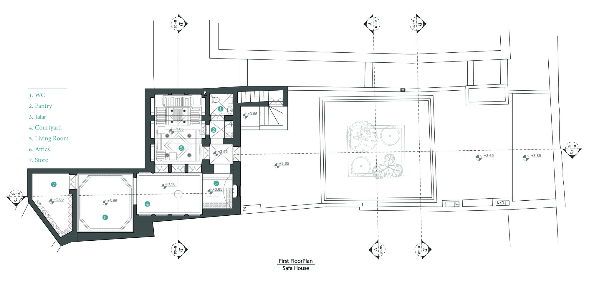
In the historic district of Yazd City, the Safa House, situated in the Amir Chakhmaq neighborhood, was assigned to the Torab Home Company as a restoration project. A house segment suffered significant damage, and various sections underwent physical transformations over time.
Within the design department at Torab Home, we endeavored to craft a design that not only caters to contemporary living requirements but also fortifies the residential environment and elevates the cultural ambiance of the vicinity. The house's strategic location is noteworthy as it is within the global registration area of Yazd City, in close proximity to key urban landmarks like Amir Chakhmaq Takiye and the New Jame Mosque.
Consequently, factors such as preserving the coherence of the historical setting dictated the use of traditional construction materials and techniques throughout the design and construction processes. Only in areas entirely demolished, based on available documentation (the earliest aerial photo of Yazd city dating back to 1955), did we employ a creative and harmonious redesign with the original structure of the house.
Upon completing the design phase and initiating the execution workshop, workshop conditions, including issues in the northern part of the house and the imperative to preserve the integrity of the original staircase, surfaced. The revelation that the entrance door had been destroyed and the rooms had deviated from their original configuration over time fostered collaboration between the design and execution teams. This iterative process resulted in a more comprehensive and refined design.
Overall, the primary objective of this plan was to conserve and faithfully represent the values inherent in the historical Yazd context. Notable among these values are the house's integration into its historical surroundings, its adjacency to residences where the rhythm of life remains uninterrupted, the incorporation of a sunken courtyard pattern, and the maintenance of its distinctive proportions.
项目设计:Torab Home
项目面积: 170.2501349m²
项目年份:2020
项目摄影:Mina Abouei
供应商: Gel Kheteh
首席设计师:S.Hadi Razavi
项目经理: Mohammad Hossein Dehghani
Restoration Architect: Mohammad Hossein Dehghani, Hani Shayegh, Maryam Heydari
3 D Modelling: Mohammad Morshed
Principal/ Senior 项目经理: S.Hadi Razavi
Executive Director: Hani Shayegh
Graphic 设计师: Mina Abouei
Architectural Studies: Maryam Heydari
Construction Survey: S.Javad Asi Alavi , Mehdi Rafipour
Revitalization Plan: S.Hadi Razavi
Revitalization Asist: Maryam Heydari
In Place Design: S.Hadi Razavi, Zahra Abouei
Supreme Supervisor: Hossein Kamali Ardakani
Workshop Supervisor: Zahra Abouei
As Built Survey: Farzaneh Shirmohammadi, Ensieh Saleh rad
项目成市: Yazd
项目国家: Iran
设计师:Torab Home
语言:英语
客服
消息
收藏
下载
最近
































