查看完整案例

收藏

下载
Parchim的Eldemühle面粉厂曾是Mecklenburg最后一家运营中的大型磨坊,如今作为Parchim文化工厂焕发了新的生机。2023 年 5 月,这座历史悠久的面粉厂在经过大规模翻新和扩建后重新开放。
The former Eldemühle mill in Parchim, once the last operating, large mill in Mecklenburg, has been given a new lease of life as the “Kulturmühle Parchim”. In May 2023 the historic flour mill was reopened after an extensive renovation and expansion.
▼项目概览,project overview©Studio_Bowie
今年 “建筑日”的口号是 “简约(再)建造”,项目的首席建筑师、D/FORM ARCHITEKTEN 的创始合伙人 Kilian Enders 将带领感兴趣的参观者参观建筑群,解释项目及其建筑方法,并深入介绍施工过程。在关闭15年以后,Ludwigslust-Parchim地区对Eldemühle面粉厂进行了改造活化。D/FORM ARCHITEKTEN建筑事务所与总承包商 HTG Hoch- und Tiefbau Gadebusch GmbH 公司合作,通过大规模的翻新和扩建,建成了一个多功能文化综合体。它承担了多个新功能,容纳了Mecklenburg北德意志戏剧剧院(Fritz-Reuter-Bühne)和Parchim少年儿童剧院以及Parchim城市博物馆。
On this year ‘s ‘DAY OF ARCHITECTURE ’ with the befitting motto ‘SIMPLY (RE)BUILD’ the project ’s lead architect and founding partner of D/FORM ARCHITEKTEN Kilian Enders will give interested visitors a tour of the ensemble, explaining the project and its architectural approach as well as providing insight into the construction process. After fifteen years of closure the Eldemühle was revitalised by the district of Ludwigslust-Parchim. A versatile cultural complex was created through an extensive renovation and extension by D/FORM ARCHITEKTEN (Berlin/Alt Kentzlin) in collaboration with the general contractor HTG Hoch- und Tiefbau Gadebusch GmbH. It functions as the new home of the “The Mecklenburg State Theatrefor North German Drama” (Fritz-Reuter-Bühne) and “The Children and Youth Theatre” (Junges Staatstheater Parchim) as well as the Parchim “Town museum”.
▼项目街景,street view©Studio_Bowie
坐落于镇上的防御堡垒和Elde河流支流之间,Parchim文化磨坊成为了城市会客厅。建筑综合体的核心是一座剧场,坐落于建筑的加建部分。建筑中央是表演舞台和剧场的剧场工作室,二层为排练室和更衣室,为表演和排练提供理想的环境条件。
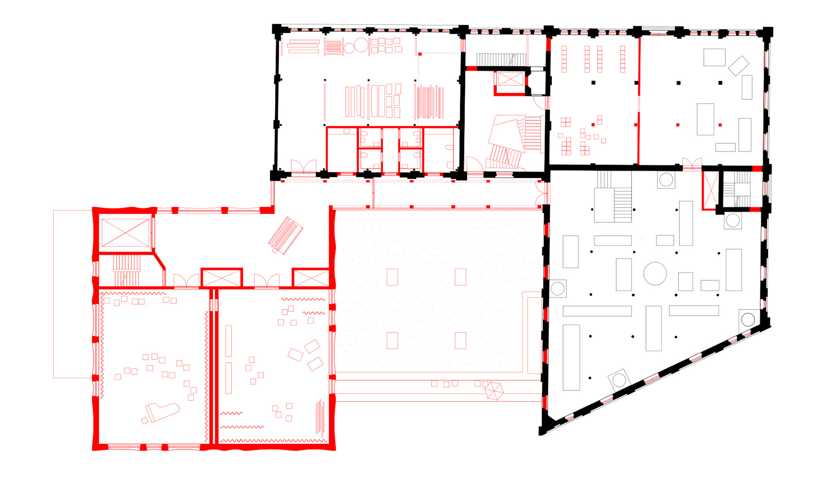
▼一层平面,ground floor plan©D/FORM ARCHITECTS
Nestled between the former town fortifications and a branch of the River Elde, the Kulturmühle Parchim presents itself as a civic meeting hub. At the heart of the complex is the theatre, which has found its place in the new annex. With its centrally located stage and the theatre workshops, rehearsal spaces and dressing rooms on the upper floors it offers ideal conditions for performances and rehearsals.
▼剧场空间,theatre space©Studio_Bowie
这座1897年建造的六层磨坊建筑已经被列入遗产名录,它的工业气质和空间特征被完整保存,游客们在建筑翻新以后仍然能体验到这些工业特质和空间特征。历史悠久的砖墙,木梁天花和钢结构都被显露出来,新设施的材料也特意保留了原始感和粗糙感。
The industrial character and spatial qualities of the heritage-listed six-storey mill complex from 1897 have been preserved and can still be experienced by visitors after the remodeling. The historic brick walls, wooden beam ceilings and steel structure have been exposed and the materiality of the new fixtures has been intentionally left bare and rustic.
▼保留原始的梁架体系,preserving the original beam system©Studio_Bowie
建筑群原庭院中的现代加建部分采用了磨坊建筑的比例,材料和垂直性的立面结构,并以现代建筑的表现形式和转译手法诠释了这些特征:弧形砖砌立面给人一种剧院幕布的印象。新建筑群的滨水区塑造了城市景观,并邀请公众来探索Parchim这个充满活力的居住和文化场所。
The modern extension in the former courtyard of the ensemble adopts the proportions, materiality and vertical façade structure of the mill building and interprets these features with a contemporary architectural expression and twist: The curved brick façade gives the impression of a theatre curtain. The waterfront of the newly created ensemble shapes the cityscape and invites the public to discover Parchim as a lively residential and cultural location.
▼新建部分,the modern extension©Studio_Bowie
▼展览空间,exhibition area©Studio_Bowie
昔日磨坊传送带上的流水作业,如今已成为游客从共享门厅通过中央楼梯,在新旧两翼建筑之间进行参观的通道。将建筑转化成充满活力的文化中心成功的激活了Elde磨坊,并且保留了其独特性和对Parchim的历史意义。
The former flowing motion of the mill’s conveyor belts has morphed in to a visitor circulation from the shared foyer via a central staircase between the uses in the old and new building wings. The transformation into a lively cultural centre has successfully revitalised the Elde Mill while preserving its identity and historic importance for Parchim.
▼成为城市景观的一部分,become part of the urban landscape©Studio_Bowie
▼场地区位,site map©D/FORM ARCHITECTS
▼上层平面,upper level plan©D/FORM ARCHITECTS
▼剖面,section©D/FORM ARCHITECTS
Design: D/FORM ARCHITECTS
Scope of work: LP 1-5 (RIBA work stages 1-4, Design and Built)
Time Period: 2018-2023
General Contractor: HTG Hoch- und Tiefbau Gadebusch
CLIENT: District of Ludwigslust-Parchim
AREA (GFA): Existing building 5.42 sqm / New extension 2.86 sqm
客服
消息
收藏
下载
最近















