查看完整案例

收藏

下载
在柏林Neukölln的某个后院中,ATELIER ZAFARI事务所拆除了五层旧工厂建筑的屋顶,创造出了一处250平方米阁楼空间,并带有全新的屋顶露台。
In a backyard in Berlin Neukölln, we removed the roof from an old five-story factory building and created a new 250 square meter unit with a roof terrace.
▼扩建部分外观概览,exterior view of the extension © Studio Weselys
现有的建筑由侧翼以及一栋近似方形的横向建筑组成。T形的平面布局创造出了两个后院,可以通过侧翼一侧的第二处庭院楼梯和横向建筑的外部电梯进入。此外,第一处庭院中也有一部楼梯,这部楼梯虽然是作为备用逃生路线而设计的,但也不失为一种进入天台的选择。
The existing building consists of a side wing and an almost square transverse building. This T-shaped floor plan structure creates two backyards. It is accessed through the existing staircase in the second courtyard in the side wing and through an external elevator on the transverse building. The second existing staircase in the first courtyard only serves as the second escape route, but is also conceivable as an access route.
▼楼梯,staircase © Studio Weselys
扩建部分从现有建筑中分离出来。从楼梯间进入到这一层后,人们会发现自己身处于大楼外部。一条由防火墙和新建筑隔开的长达15米的狭窄走廊,直接通向阁楼中部的玄关区域。接着沿着楼梯走,就会到达屋顶露台。阁楼入口区域包含了一左一右两个封闭的小空间,这些体块容纳了浴室功能。
The extension is formally detached from the existing building. As soon as you enter the floor via the stairwell, you will find yourself outside of the building. A narrow, 15 meter long corridor, bounded by the fire wall and the new building, leads laterally to the central entrance. Following the stairs, you will reach the roof terrace. From the entrance area of the floor, you will find two rooms, one on the right and the other on the left, each with a small bathroom.
▼户外走廊,uncovered hallway © Studio Weselys
▼入口区域,entrance area © Studio Weselys
▼浴室,bathroom © Studio Weselys
入口区域对面是开放的120平方米的主要空间。20条混凝土肋形成的框架构成了空间中最具特色的元素。框架横跨了12米,覆盖了整个建筑的进深。根据建筑法规,框架的侧面倾斜几乎为70°。
Opposite the entrance is the open, 120 square meter main room. The characteristic element of this room is the 20 concrete frame. Within a span of 12 meters, the frames cover the entire width of the building. In accordance with building regulations, the side slopes of the frames are built with inclination of almost 70°.
▼开放的120平方米的主要空间,the open, 120 square meter main room © Studio Weselys
▼混凝土肋形成的框架,the concrete frame © Studio Weselys
每条混凝土“肋”宽30厘米,间隔30厘米,进而在房间中创造出了一定的均匀性。倾斜的混凝土框架外采用了全玻璃立面,窗框隐藏在混凝土框架后。
The “ribs” are 30 centimeters wide and spaced 30 centimeters apart, which creates a certain uniformity in the room. The slopes are fully glazed from the outside, with the window profiles hidden behind the concrete frames.
▼每条混凝土“肋”宽30厘米,间隔30厘米,the “ribs” are 30 centimeters wide and spaced 30 centimeters apart © Studio Weselys
规律的混凝土框架创造出光影的游戏,在这里光影的变化不可忽视,太阳的运动轨迹与天空的阴晴展示无余。光线带着空间穿越了时间,气氛在一年中的任何时候都有明显的变化。整个空间显得雄伟,同时又不失轻盈与精致。同时,屋顶地坪与裸露的混凝土结构相结合,形成了统一、纯粹的空间。
A space of light and shadow is created, in which one cannot escape the phenomenon of light, the course of the sun and the mood of the sky. The light carries the room through time and the mood of the room changes noticeably at any time of year and day. The room appears monumental and at the same time light and delicate. Simultaneously, the use of screed flooring in combination with the exposed concrete construction supports the effect of a uniform, puristic space.
▼屋顶天台,rooftop terrace© Studio Weselys
▼区位图,location © ATELIER ZAFARI
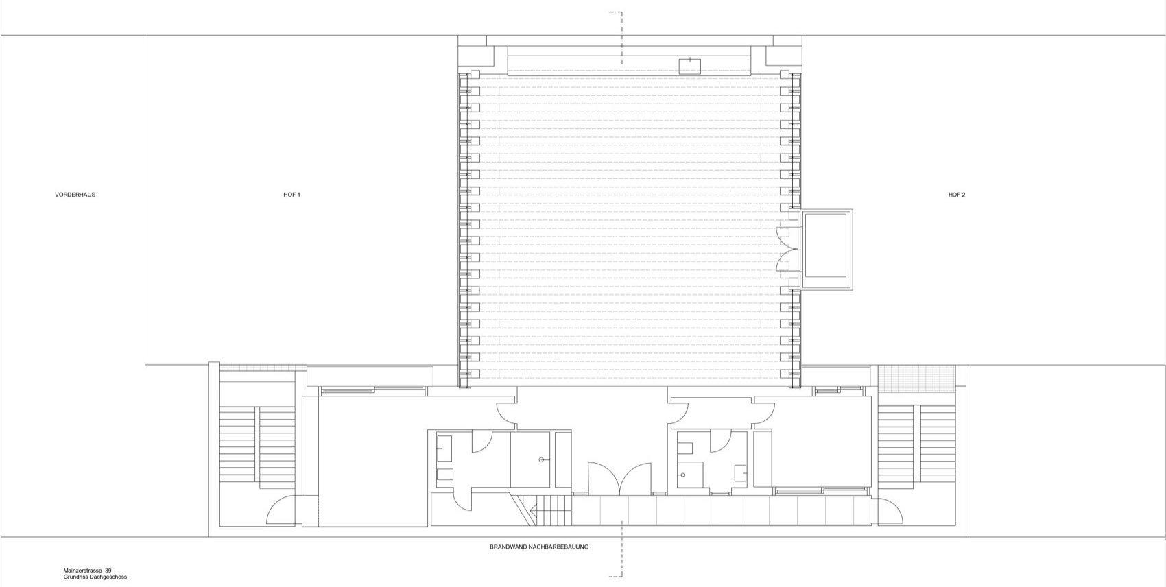
▼平面图,plan © ATELIER ZAFARI
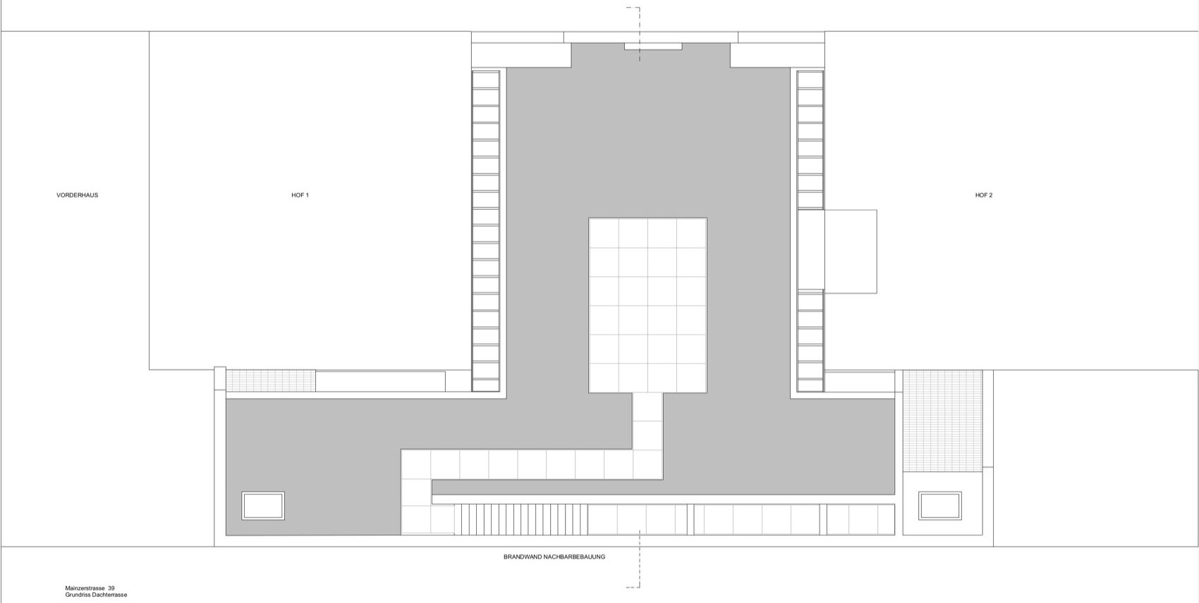
▼屋顶平面图,roof plan © ATELIER ZAFARI
▼立面图,elevation © ATELIER ZAFARI’
客服
消息
收藏
下载
最近
















