查看完整案例

收藏

下载
奉城老城厢是坐落于上海奉贤的一座古城,也是上海已确定的 44 片历史文化风貌区之一。在它的东北角,一处坐拥 160 年历史的老建筑又有了新的延续。▽老城新檐©章鱼见筑
中共奉贤县委旧址位于奉城老城厢奉粮路 70 号,东侧毗邻奉城第一小学,西侧与文物保护建筑群万佛阁对望。县委旧址扩建工程旨在补充原有展呈内容,融入文化展览、交流接待、会议办公、市民客厅等复合功能。▽夕阳下的鸟瞰©章鱼见筑
01. 溯本清源,去伪存真
县委旧址前身是始建于清代同治年间(1862-1874 年)的“潘公祠”。民国 16 年(1927 年),中共党员李主一、刘晓等同志在潘公祠创办曙光中学,成立中共奉贤县委,时浦东、浦南地区重要革命基地。1983 年,县委旧址被列为奉贤县(现为区)文物保护单位。2001 年经过修缮的旧址作为奉贤革命历史陈列室正式对外开放。
▽历史照片©章鱼见筑
项目启动前,县委旧址被不同时期“生长”的建筑紧紧包围,形成复杂混合的建筑群落。通过现场勘测与资料调研,我们对现状建筑群落进行分类分级,提出拆留方案。保留部分包括:一栋保护建筑(中共奉贤县委旧址),两栋保留建筑(第一进西厢房和第二进西厢房)及一处门头。考虑到与历史建筑的安全间距与风貌协调,拆除南侧新建接待楼及西侧贴邻民房。扩建部分以演绎传统、旧续新生、开放复合、兼收并蓄为设计策略,同时满足历史风貌保护区的各项规范要求。
▽拆留策略©同济原作设计工作室
02. 演绎传统,旧续新生
中共奉贤县委旧址延承了奉贤地区传统建筑的主要特征,其院落布局、廊轩作法、梁架结构、立面装饰等都代表了当地民居的典型建筑风格。主楼与厢房均为小青瓦硬山屋面,由檐廊和过道相连,格局统一。扩建设计提取旧址建筑群体量、布局、结构、装饰等要素,进行重新演化,使新建筑群落在传承中得以延续,在场地中自然生长。
▽旧续新生©章鱼见筑
脉络生长|Continuity of Context
设计延续既有建筑的尺度特征,以旧址布局作为线索生发,向场地西侧和南侧对位延伸,形成两组体量相近的连续坡顶群落。转角处,两组新生的屋檐扭转融合,形成“纽带”柔化街角,围合成对城市开放的两处共享院落。
▽生成分析©同济原作设计工作室
空间对话|Dialogue of Space
扩建建筑围绕县委旧址呈 L 型布局。在满足保护建筑各项要求的前提下,新老建筑之间围合成六组连续融通的庭院空间。内向院落用以容纳不同的户外展览交流活动,如少先队宣誓活动等;外向院落为市民开放,日常共享。设计将建筑群主入口调整至基地东南角,挑空的入口檐廊呈现新旧关系的同时,也方便组织交通、为街道提供邻里友好的等候场所。
▽ 庭院©章鱼见筑
▽新老建筑的空间对话©章鱼见筑
折檐通廊|The folding eaves and integrated corridors
南侧建筑群以钢木结构为主要受力体系,旧址的梁架结构通过现代建造技术演化,连绵起伏的屋檐与序列有秩的柱廊相得益彰。西侧建筑群以钢结构为主,为满足展览跨度需求,顶部形成完整的空间网架;两侧檐口对位交错,回应场地。角部“纽带”钢木混用,曲径通廊,完成西侧及南侧的结构衔接与转换。
▽建筑分层轴测图©同济原作设计工作室
▽夜幕后的活动广场©章鱼见筑
▽外向院落空间©章鱼见筑
▽内外视线贯通 ©章鱼见筑
首层立面采用现浇清水混凝土,与旧址建筑虚实相宜;二层采用通透的玻璃幕墙,开阔视野,同时削弱二层新建体量对既有建筑的压迫感。西测及南侧两组檐廊从旧址老檐口对位顺延,在室内形成视觉上的对景关系,古今对视。▽二层展厅空间 ©章鱼见筑
▽二层报告厅空间©同济原作设计工作室
03. 开放复合,兼收并蓄
新建展馆突破传统展览空间过于明确的分区布局,结合空间诉求,将不同形式的展示空间、公共空间、休憩交流空间相互融合,形成高效关联、运转顺畅的复合功能综合体。
▽ 适宜的街道尺度©章鱼见筑
▽沿街立面©章鱼见筑
有别于传统展览建筑的围合封闭,新建展馆相对自由开放,为老城厢市民提供休憩、遮荫、演绎、会友等多功能活动场所。在西南角设置市民驿站,串联在主展览流线之中,吸纳城市活力,丰富和提升使用体验。▽邻里友好的入口檐廊©同济原作设计工作室
中共奉贤县委旧址建筑群见证了从清代同治年间至今的历史变迁,以及具有革命意义的重大历史事件。此次扩建工程对于加强旧址纪念馆的保护、继承地方传统文化具有重要的现实意义,也将成为历史长河中的一部分,传递价值、延续文脉。▽檐下开放平台©章鱼见筑
▽总平面图©同济原作设计工作室
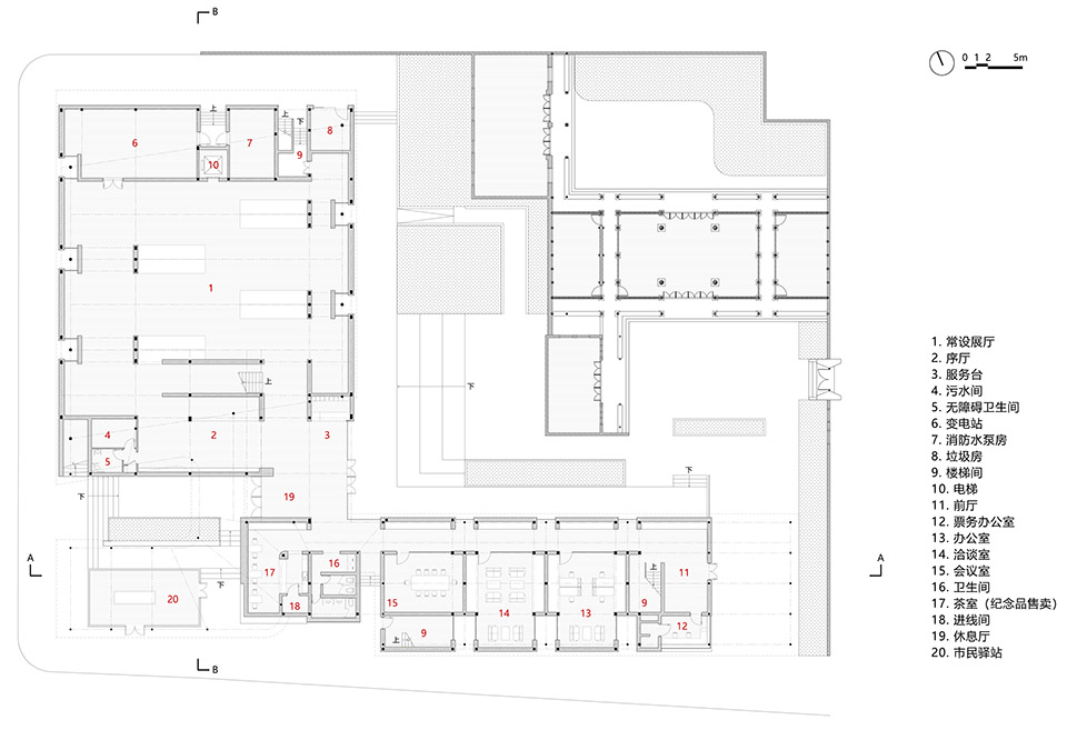
▽一层平面图©同济原作设计工作室
▽二层平面图©同济原作设计工作室
▽南立面图©同济原作设计工作室
▽西立面图©同济原作设计工作室
▽A-A 剖面图©同济原作设计工作室
▽B-B 剖面图©同济原作设计工作室
项目名称:中共奉贤县委旧址扩建工程
建筑事务所:同济设计集团·原作设计工作室
主创建筑师:章明,张姿,丁纯
建筑设计团队:丁阔,林佳一,郭璐炜,吴炎阳
结构设计团队:王金花,王瑞,何天森
设备设计团队:暖通:邵喆,孟燊;电气:马杏宇,孙麒杰;给排水:孙传奇
照明设计:杨秀,顾兴花,王盼盼,于果
建设单位:中共上海市奉贤区委党史研究所
项目地址:上海市奉贤区奉粮路 70 号
建成时间:2022 年
总建筑面积:2611.9 平方米
建筑高度:7.65 米
摄影:章鱼见筑
客服
消息
收藏
下载
最近




























