查看完整案例

收藏

下载
荔园外国语小学(景田)位于深圳市中心福田区核心地带,周围楼宇密布。我们的原始场地是一片茂密树林,相触的树冠像是连绵的伞盖。四十多年前,这片土地的周边区域叫做“猫颈田”,是基建工程兵来到深圳经济特区的驻扎营地,布满了连排铺开的工棚。随着城市的发展,工棚陆续迁移,这里便被用来堆置土方。如今,土方上人工种植的垂叶榕已长至二十多米高,成为城市中心一片难得的绿洲,树林下这片真实的土壤也得以留存。
▼鸟瞰,ariel view©直向建筑
▼东立面局部和屋顶运动场,Part of east elevation and the rooftop sports ground©摄影:存在建筑/ 版权:直向建筑
▼从城市街道看向北立面,Street view of north elevation©摄影:存在建筑/ 版权:直向建筑
▼从城市街道看向东侧入口,Street view of eastern entrance©摄影:存在建筑/ 版权:直向建筑
2018 年 3 月,福田区工务署发起“新校园行动计划:8+1 建筑联展”,这是一次针对 8 所中小学及 1 所幼儿园的校园建筑设计竞赛。竞赛集结了建筑界、教育界等社会各界人士共同参与,直向建筑的设计提案作为竞赛第一名入选。方案提出最大化保留场地原有树林和地形的策略,尝试以垂直立体校园的方式探索高密度城市空间背景下,新校园建筑类型的建构与空间创新。
▼荔园外国语小学(景田)《平立剖索引图》,index of plan,section,elevation©直向建筑
▼荔园外国语小学(景田)《群像》,portrait of a group©直向建筑
在我们看来,这片树林贮存着深圳几十年城市化进程的历史记忆。从某种意义上来讲,一定程度上保护住这片树林和地形,将有益于实现城市空间发展的连续性。同时,我们相信,拥有这片“小森林”的校园将成为一个具备独特品质的教育场所。树林和真实土壤、阳光、风和四季等自然元素能够在这里被切实而生动地感知,这些都将成为学生们童年学习生活中具体而美好的记忆。
▼东北立面局部,Detail of northeast elevation©摄影:Dong 建筑摄影/ 版权:直向建筑
▼北侧入口楼梯,Entrance stairs©摄影:存在建筑/ 版权:直向建筑
▼架空层活动场地,Playground under the pilotis©摄影:陈颢/ 版权:直向建筑
▼悬浮跑道伸入架空层活动场地,Raised running track extends into the elevated playground©摄影:Dong 建筑摄影/ 版权:直向建筑
▼架空层活动场地,Playground under the pilotis©摄影:存在建筑/ 版权:直向建筑
▼悬浮跑道下方,View under the raised running track©摄影:Dong 建筑摄影/ 版权:直向建筑
▼架空层,Pilotis©摄影:陈颢/ 版权:直向建筑
在设计开始阶段,我们面临的挑战是如何在南北高差近 5 米,面积有限且榕树密布的场地内完成一所 36 班小学的设计任务。为了最大化保留这片“小森林”,传统小学设计中的梳型平面格局不再适用。经过一系列对比推敲,我们最终选择了占地面积最小的垂直集中型建筑体量——往往占据场地中心的主体建筑变成了围合场地的“界墙”,校园中心区域让位给树林。垂直运动场地系统将传统校园中的大尺度的体育空间分散布置于屋顶和半地下。运动跑道被架起,仅有结构部件落地。跑道与“小森林”相互嵌套,学生将奔跑于成片的树冠之下。
▼从悬浮跑道下方看向架空层,View from the raised running track to the pilotis©摄影:陈颢/ 版权:直向建筑
▼小树林与微地形,Woods and micromorphology©摄影:存在建筑/ 版权:直向建筑
▼树林中的活动场地,Playground under the woods©摄影:存在建筑/ 版权:直向建筑
▼小树林与教学楼,Woods and the teaching building ©摄影:罗灿辉/ 版权:直向建筑
▼从跑道看向小树林,View from the raised running track to the woods©摄影:存在建筑/ 版权:直向建筑
▼小树林, the woods©摄影:存在建筑/ 版权:直向建筑
▼悬浮跑道与小树林, The raised running track and the woods©摄影:罗灿辉/ 版权:直向建筑
▼从架空层看向小树林, View from the pilotis to the woods©摄影:Dong 建筑摄影/ 版权:直向建筑
▼小树林与教学楼, Woods and the teaching building©摄影:罗灿辉/ 版权:直向建筑
▼从架空层看向钢楼梯, View from the pilotis to the steel staircase©摄影:陈颢/ 版权:直向建筑
▼从架空层看向小树林, View from the pilotis to the woods
©摄影:Dong 建筑摄影/ 版权:直向建筑
▼架空层活动场地, Playground under the pilotis©摄影:陈颢/ 版权:直向建筑
我们希望这个建筑能够充分适应深圳当地的气候条件,呈现出一种南方特有的气质。因此,我们在集约型建筑的体量里设置了一系列具备相当尺度的半户外公共平台,它提供了完善的避雨、防晒、通风等功能,成为承载校园公共生活的重要场所。半户外平台系统在校园多个位置与跑道相连,跑道上的师生能够透过平台上的开口看向城市街道,街道上的人们又能抬头望向校园内的“小森林”。校园内,水平向设置的公共平台、跑道、连廊与垂直向分布的体育、交通空间系统相互连接,构成一套完整的立体户外活动空间系统。
▼从跑道看向小树林, View from the raised running track to the woods©摄影:存在建筑/ 版权:直向建筑
▼悬浮跑道伸入架空层,Raised running track extends into the pilotis©摄影:陈颢/ 版权:直向建筑
▼从走廊看向小树林, View from the corridor to the woods©摄影:存在建筑/ 版权:直向建筑
▼教室, classroom
©摄影:存在建筑/ 版权:直向建筑
▼风雨操场, Gymnasium©摄影:存在建筑/ 版权:直向建筑
▼图书馆, library©摄影:陈颢/ 版权:直向建筑
在建筑的南、东、西三个方向立面上,我们设置了一层外挂预制混凝土遮阳板。外遮阳能够有效抵御深圳当地的强烈日照对教室所产生的热辐射,也能避免高太阳高度角直射光进入教室形成眩光,在保障景观视野的同时,也为师生创造出柔和的自然光环境。
▼屋顶运动场, Rooftop sports ground©摄影:存在建筑/ 版权:直向建筑
▼从小树林看向钢楼梯与走廊, View from the woods to the steel staircase and the corridor©摄影:罗灿辉/ 版权:直向建筑
▼从小树林看向钢楼梯, View from the woods to the steel staircase©摄影:存在建筑/ 版权:直向建筑
▼室外坡道交通与屋顶运动场, Outdoor rampway and the rooftop sports ground©摄影:存在建筑/ 版权:直向建筑
▼屋顶运动场及混凝土板遮阳局部, Detail of rooftop sports ground and the concrete shelter panel©摄影:存在建筑/ 版权:直向建筑
▼从城市看向北侧架空层, View from the city to the north pilotis©摄影:Dong 建筑摄影/ 版权:直向建筑
▼从城市看向东侧立面穿透洞口, The view from the city to the pilotis on east elevation©摄影:张钦泉/ 版权:直向建筑
我们相信,空间也是教育的一种重要方式。这所拥有一片“小森林”的校园,将会成为孩子们在这里学习、生活的情感寄托,也将为福田区的城市发展留下一片重要的空间印记。
▼混凝土板遮阳与悬浮跑道, Concrete shelter panel and the raised running track©摄影:罗灿辉/ 版权:直向建筑
▼混凝土板遮阳细节, Detail of the concrete sun visor©摄影:罗灿辉/ 版权:直向建筑
▼模型, model©直向建筑
▼场地平面, site plan©直向建筑
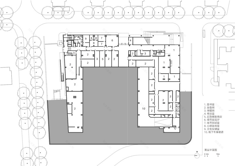
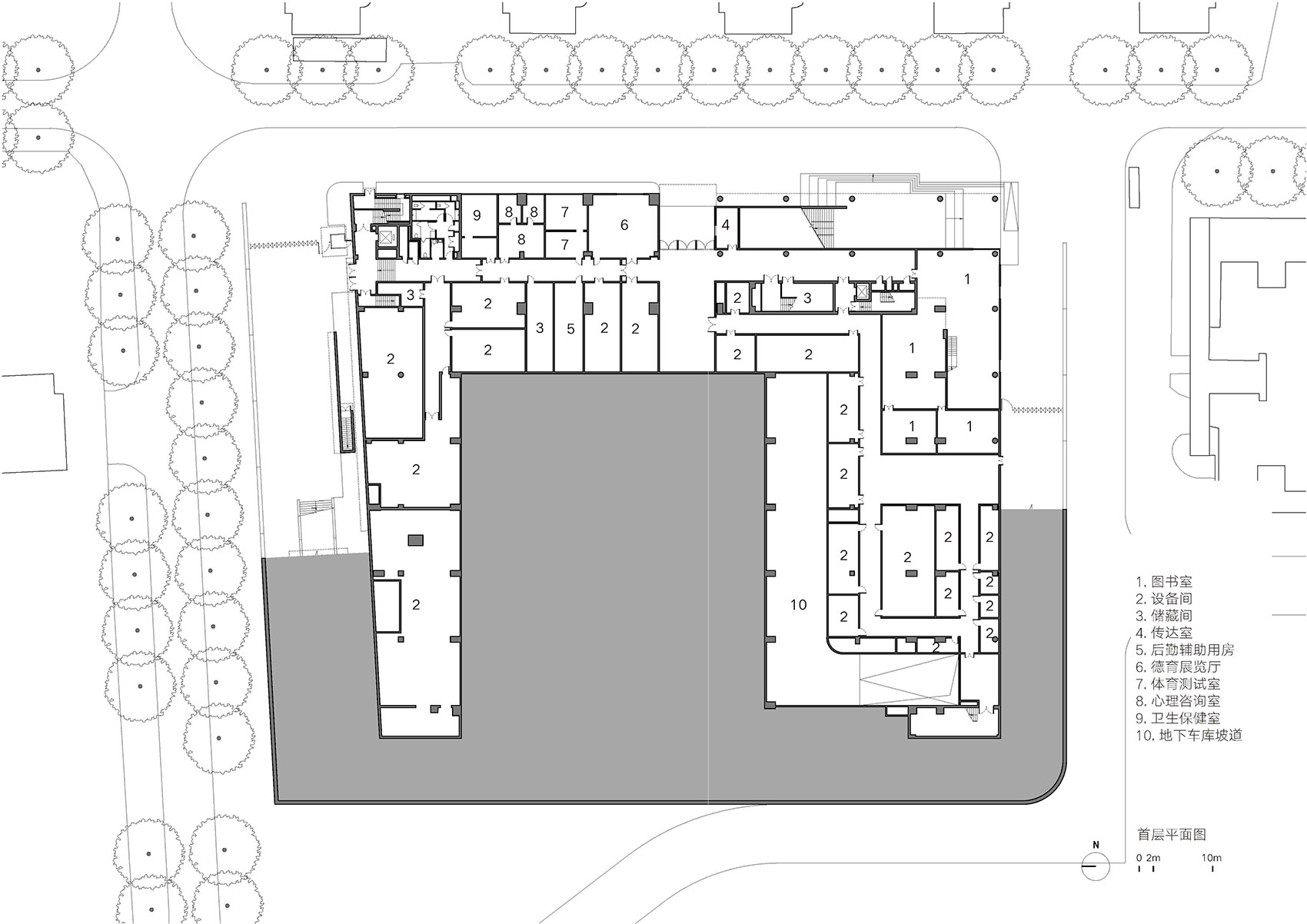
▼首层平面, ground floor plan©直向建筑
▼二层平面, first floor plan©直向建筑
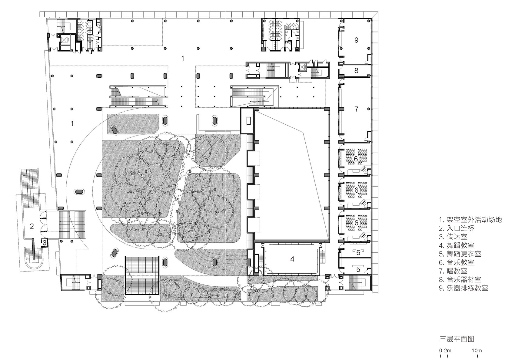
▼三层平面, second floor plan©直向建筑
▼四层平面, forth floor plan©直向建筑
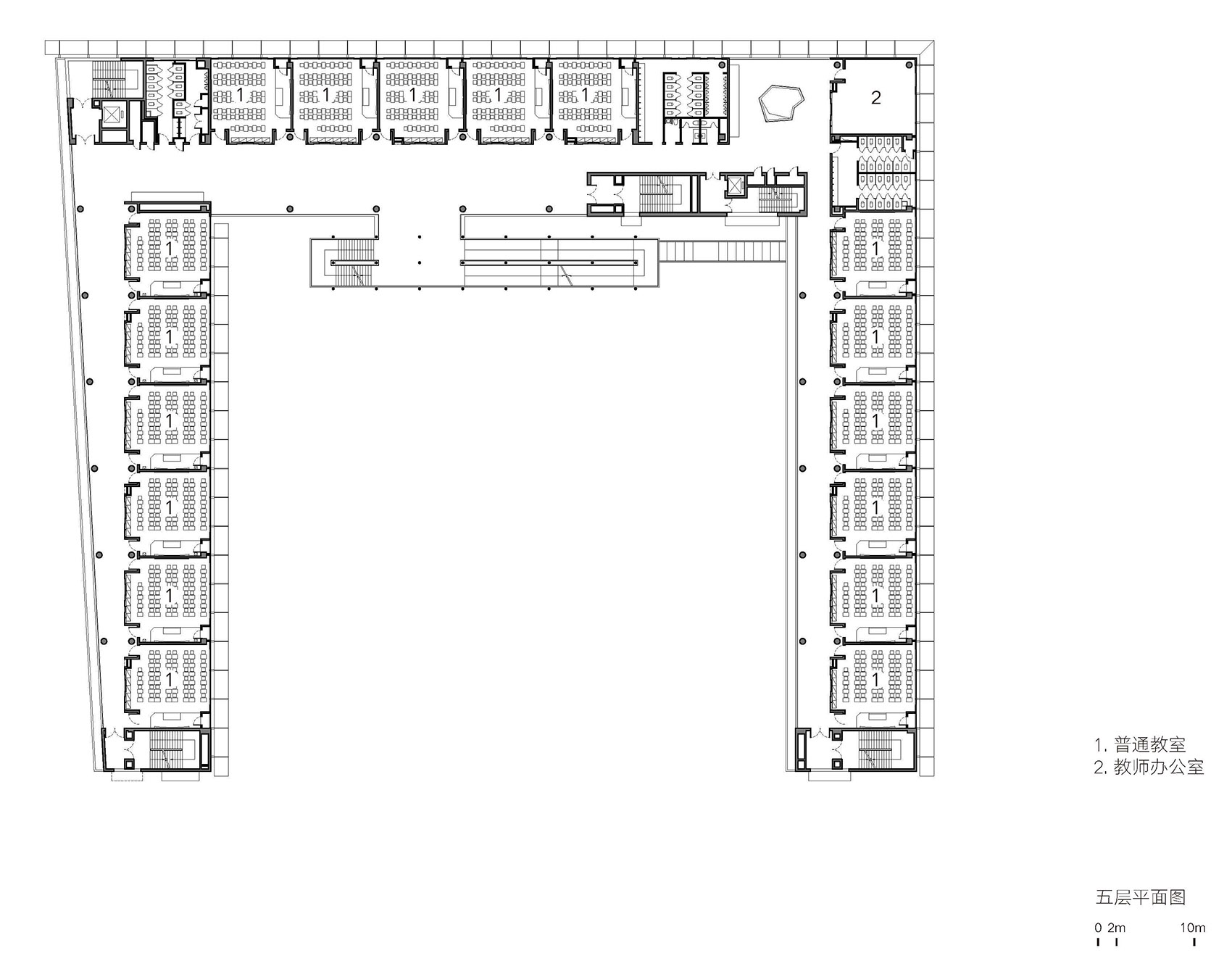
▼五层平面,fifth floor plan©直向建筑
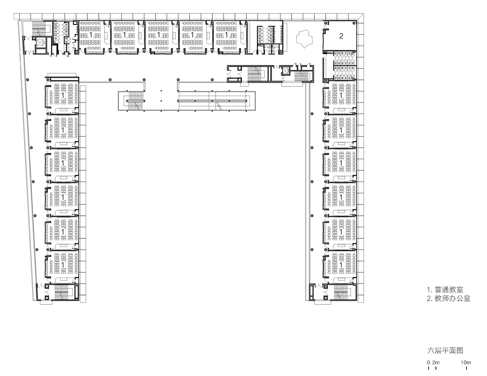
▼六层平面, six-floor plan©直向建筑
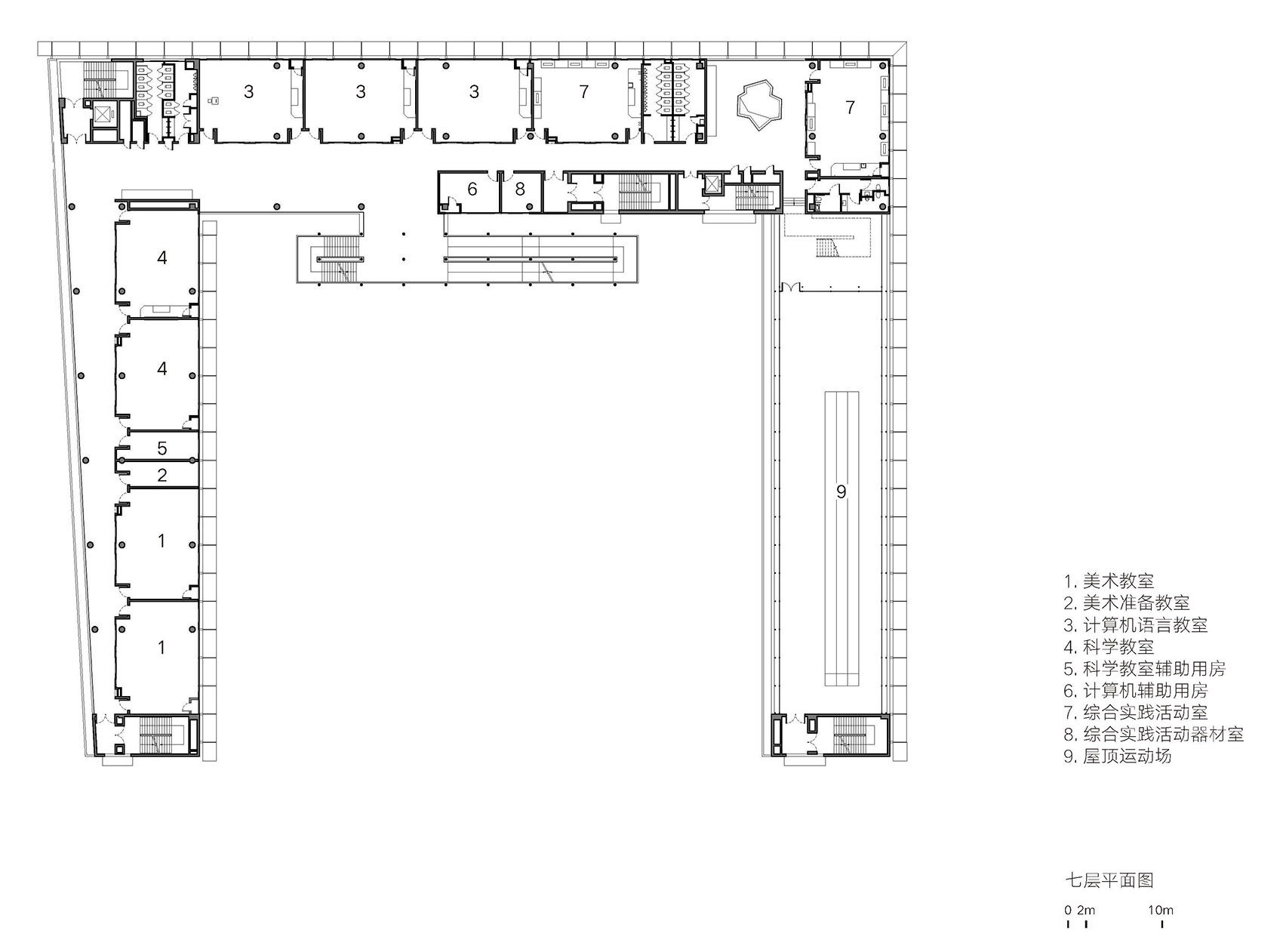
▼七层平面, seven-floor plan
©直向建筑
▼八层平面, eight-floor plan©直向建筑
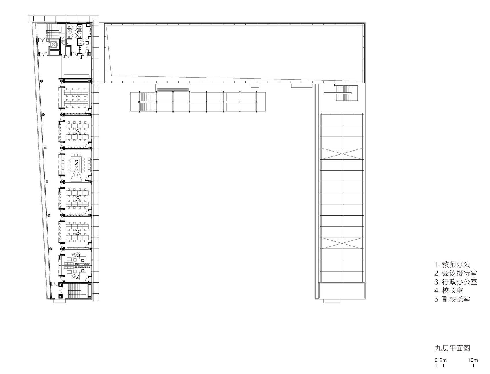
▼九层平面, nine-floor plan©直向建筑
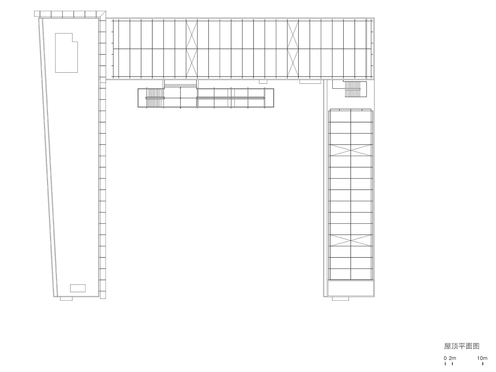
▼屋顶平面, roof plan©直向建筑
▼剖面, section©直向建筑
▼剖面, section©直向建筑
▼草图, sketch©直向建筑
地理位置:深圳市福田区景田南路 33 号,广东,中国
建筑/室内/景观设计:直向建筑
主持建筑师:董功
项目建筑师:冯超颖、陈周杰
施工管理:赵亮亮、李锦腾
驻场建筑师:赵可、黄天植、黄雄深、张杰、程洋
项目成员:陈功、陶巍、赵亮亮、马小凯、管世鹏、高雨滴、赖建希、李想、刘世达、艾心、覃琛
合作设计院:深圳市华阳国际工程设计股份有限公司
合作设计院总建筑师:龙玉峰
合作设计院项目建筑师:谌贻涛
合作设计院建筑师:梁茵、熊玮、林兴、李鹏程
结构设计:徐宇鸣、吴亚平、肖政健、刘名
机电设计:陈娟、张晶、周天养、谢振、宋靖、钟展文、雷亚雄、苏东坡、王会兵、林佩怡、王业铭、李贝贝
室内设计:李建华、谢吉龙
绿建设计:林子滔
景观设计:陈欢敏、叶向前、施惠霞
支护设计单位:建研地基基础工程有限责任公司
幕墙设计单位:深圳市盈科幕墙设计咨询有限公司
灯光设计单位:深圳市自然光环境艺术有限公司
教室采光顾问:清华大学建筑学院张昕工作室
声学顾问:黄展春剧场建筑设计顾问(北京)有限公司
标识设计单位:上谷创意设计(深圳)有限公司
业主:深圳市福田区教育局、深圳市福田区工务署
竞赛学术策划、监督与组织方:深圳市规划与国土资源委员会福田管理局、福田新校园行动计划组委会
代建单位:深圳市华阳国际工程设计股份有限公司
代建项目管理团队:郑攀登、廖明宇、陈福广、童金宝、刘玉忠、胡炜、郑立旋、古培钦、王欣杰、宁平贵、范云卓
施工方:深圳市华晟建设集团股份有限公司
结构类型:框架剪力墙结构
建筑材料:清水混凝土、超高性能混凝土(UHPC)、水磨石、钢、金属网、玻璃
建筑面积:29061.80 平方米(地上 25301.17 平方米、地下 3760.63 平方米)
占地面积:5613.57 平方米
用地面积:9550.83 平方米
设计周期:2018 年 3 月至 2020 年 12 月
建设周期:2021 年 1 月至 2023 年 12 月
客服
消息
收藏
下载
最近































































