查看完整案例

收藏

下载

附件

翻译
Architect:AMB - Àrea metropolitana de Barcelona
Location:Carrer de Barcelona, 25, 08620 Sant Vicenç dels Horts, Spain; | ;View Map
Project Year:2023
Category:Nurseries
The Petit Mamut nursery in Sant Vicenç dels Horts is a single-line educational school with a capacity for 41 students. Located on one of the main thoroughfares of the old town, Barcelona Street, the approach to the school is via traffic-calmed streets, which promotes sustainable mobility.
The main entrance of the building on Josep Duran Street is accessed through a porch that leads to the playground. This arrangement ensures a safe and protected route for children during the school's arrivals and departures.
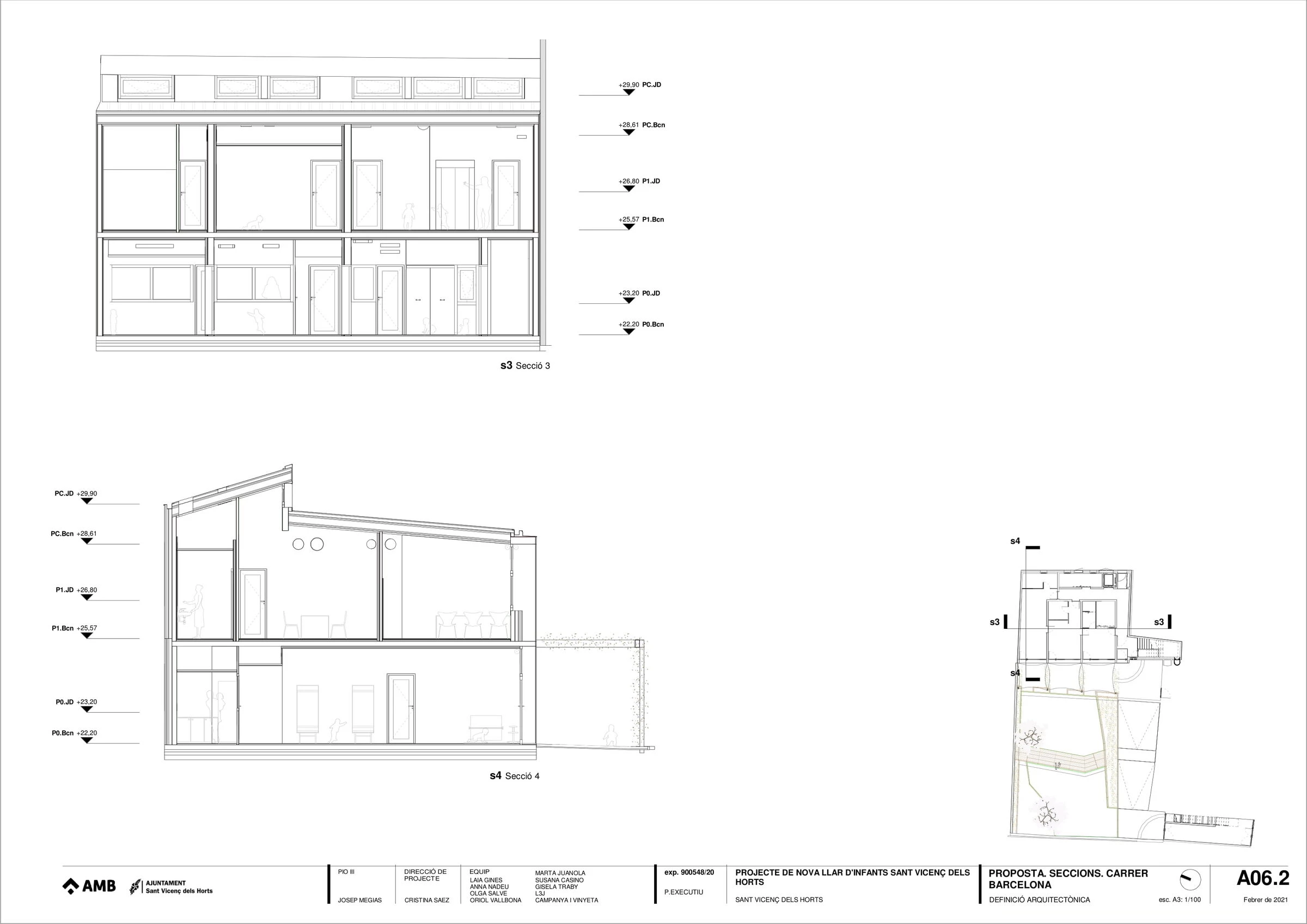
Following the urban planning guidelines of the plot, the project consists of two distinct buildings, with ground and first floors, covering a constructed area of 460m² and a playground of 420m². The main building features three classrooms (one per age group), a kitchen space, a multipurpose room, a multifunctional room, bathrooms, administration and management offices, as well as a multisensory room. The latter is designed as a space for children with disabilities, allowing them to interact with the environment through sensory stimulation. The secondary building consists of the entrance porch and the main storage space on the first floor.
This facility is built with cross-laminated timber (CLT) panels, a system that reduces the carbon footprint compared to conventional systems. Due to its increasing industrialization, it also improves construction quality and reduces the building's construction time. The predominantly wooden structure enhances the building's haptic qualities (temperature, texture, smell, and hydrothermal performance).
The building has heat transfer coefficients well below the average for A-rated energy buildings, resulting in low annual energy consumption. It generates renewable energy through photovoltaic panels and features passive regulation systems, such as cross ventilation and natural light in all spaces. A home automation control system monitors consumption, and a circadian lighting system replicates the tones and intensity of natural light, synchronized with the children's biological rhythms.
The classrooms are directly connected to the playground to encourage outdoor interaction. In front of the classrooms is a porch area with deciduous vegetation and non-permanent awnings that provide solar protection according to the seasonal needs.
To create a pleasant and peaceful playground, the party walls of neighbouring buildings have been modified, with some transformed into green walls.
The façade facing Barcelona Street includes a secondary entrance where the original red stone —characteristic of Sant Vicenç— arch from Ca la Manela, the house that used to be on the site where the school was built, has been restored and relocated.
Team:
Architects: AMB Cristina Sáez
Construction: Constructora y Rehabilitadora Secla,S.A.; Carles Campanyà
Structural Calculations: Campanyà i Vinyeta Serveis d’arquitectura SLP
Design Team:
AMB Cristina Sáez, arquitecta directora
AMB Marta Iglesias, arquitecta técnica
AMB Marta Juanola, arquitecta técnica
AMB Laia Ginés, arquitecta
AMB Anna Nadeu, arquitecta
AMB Gisela Traby, ingeniera mecánica
AMB Jordi Bardolet, ingeniero agroambiental y del paisaje
Photographer: Simon Garcia
Materials Used:
Wooden structure: Velima
Wood facade: Reus Disseny
Exterior carpentry: Roi
Classroom flooring: Tarkett
Classroom furniture: Albera
Patio awnings: Toldos Taialà
▼项目更多图片
客服
消息
收藏
下载
最近


































