查看完整案例

收藏

下载
汉宝德先生为台湾现代建筑思想的启蒙者,为纪念汉先生的贡献,台南艺术大学提供校地与汉先生家人提供相关文物,于校园内音像大楼旁新建四层楼之汉宝德纪念馆。纪念馆承袭汉先生对于博物馆的想法及教育精神,将汉先生文物展示空间与教学空间相作结合。
▽建筑概览©Shephotoerd Co
建筑物以「a cube within a cube」为概念,利用纯粹几何之清水混凝土正方量体,纪念汉先生宛如文艺复兴人(Renaissance man)般博学之生涯。参观者由水池上和缓的踏阶至正方体侧面,进入挑高13.5公尺的「学生展示空间」,抬头向上望,挑空中漂浮的实墙量体即是「汉先生文物展示空间」,自然光线透过天窗与细长的开口洒落,光影交错照映在各处,营造空间的戏剧氛围。
▽远观建筑©Shephotoerd Co
▽正立面©Shephotoerd Co
▽侧立面©Shephotoerd Co
▽外观细部© left:Jeffrey Cheng, right:Shephotoerd Co
▽入口阶梯© KRIS YAO|ARTECH
▽阶梯细部©Shephotoerd Co
透着绿意的落地窗引领参观者经舞台般的阶梯逆时针方向拾级而上,时而进出于建筑物内外,让人立于出挑的室外踏阶之上,回望来时的风景,接着再转折进入「汉先生文物展示空间」,最后经由峡谷般空间感受的楼梯通达顶层。
▽室内概览©Shephotoerd Co
▽舞台般的阶梯时而进出于建筑物内外© KRIS YAO|ARTECH
感念汉先生对于台湾文化及教育等卓越的贡献,姚仁喜|大元建筑工场谨以此建筑作品传达汉先生之精神与表征。
▽阶梯一角©Chris Stowers
注:
汉宝德先生(1934年-2014年)为姚仁喜建筑师之启蒙恩师,汉先生家人于2015年委任姚建筑师设计「汉宝德纪念馆」,兴建于台南艺术大学校区;南艺大为1989年汉先生担任召集人设立之大学。
▽建筑模型©KRIS YAO|ARTECH
▽场地与一层平面©KRIS YAO|ARTECH
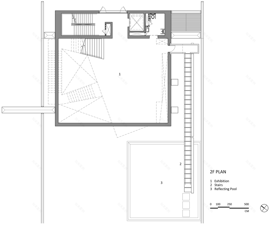
▽二至四层平面©KRIS YAO|ARTECH
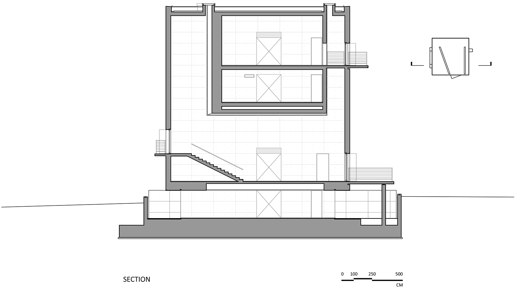
▽剖面©KRIS YAO|ARTECH
案址:中国台湾 台南
事务所:姚仁喜|大元建筑工场
设计建筑师:姚仁喜
监造建筑师:吕恭安
参与人员
设计组:刘仲豪、郑乃文、张凯智、林玫佐、宋贻典、石元亨
监造组:林睿纮
项目督导:虞永威、周俊仁
顾问群
结构:创纬工程顾问有限公司
机电:明智工程顾问有限公司
空调排烟:林伸环控设计有限公司
施工厂商:式澳营造有限公司
建筑物结构:钢筋混凝土构造
外墙材料:清水混凝土
用途:展示教学
楼层:地上4层
基地面积: 2,850 m2
占地面积:238 m2
总建筑面积:690 m2
设计时间:2015.08-2016.12
施工时间:2018.05-2022.11
完工时间 2022.11
获奖:2022 Architizer A+ 国际建筑奬决选-文化类
客服
消息
收藏
下载
最近























